在昼长夜短的丹麦,人们大约有17个小时是在黑暗中度过的,而丹麦人特有的生活哲学没有因为漫漫长夜而心情郁闷,反而多次成为幸福指数最高的国家排行榜榜首。一切的根源来自于丹麦Hygge。 在丹麦文化中,Hygge大致是指在快节奏的生活中寻找舒适和满足的感觉,沉迷于生活中美好的人和事之中,这是“Hygge”式的生活哲学,也是我们对于家的定义和理解。

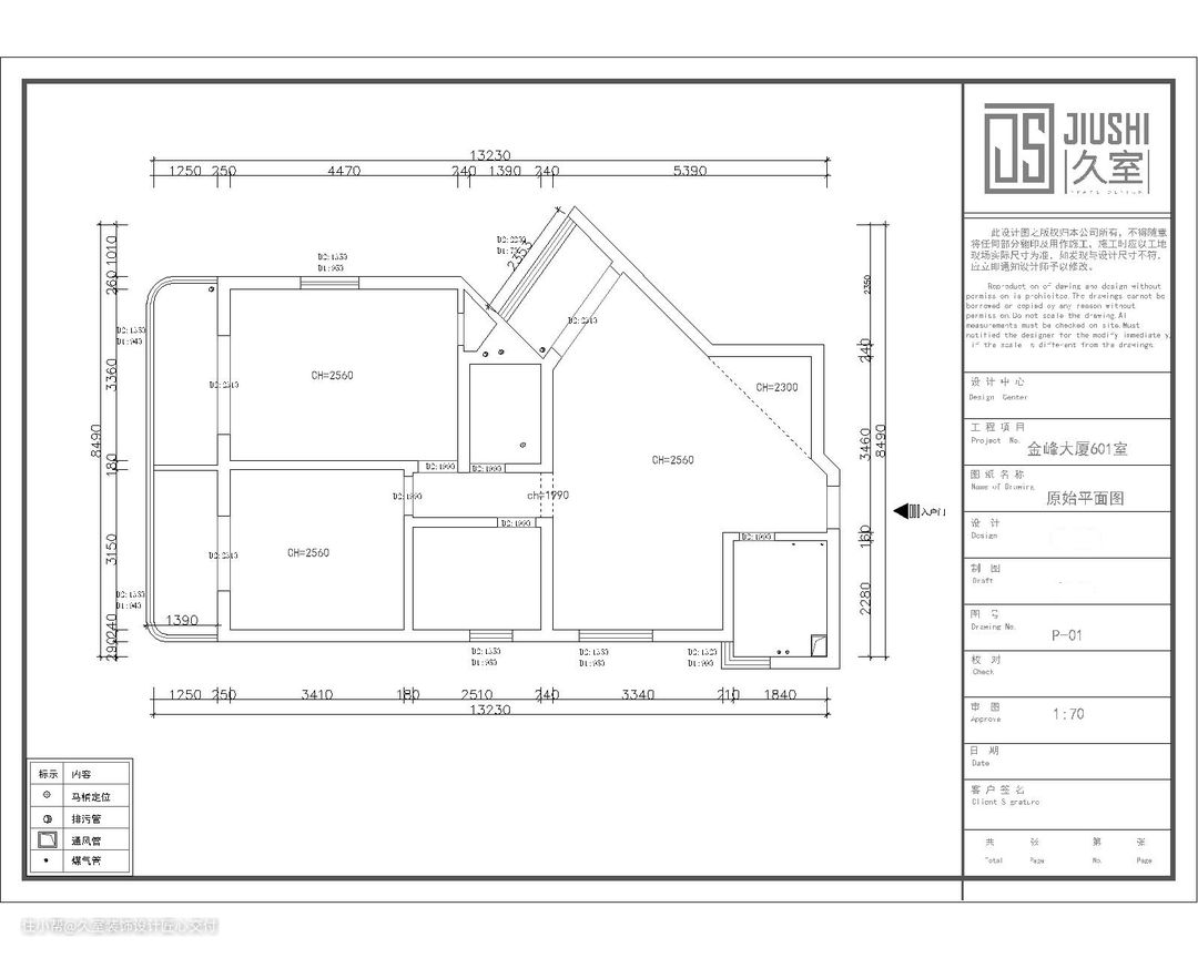
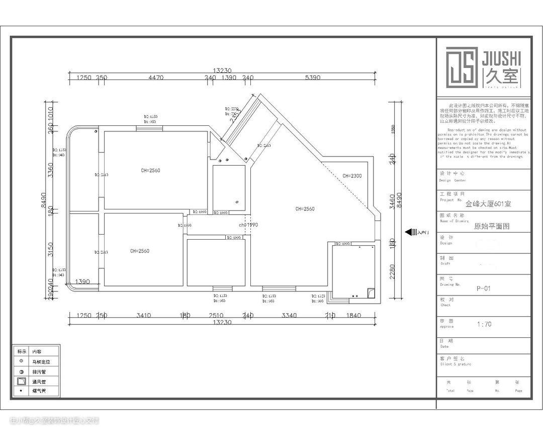
▲ 原始结构图

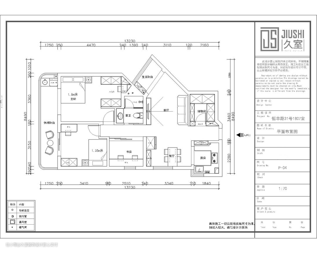
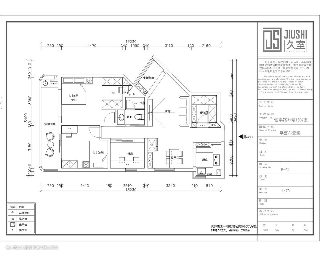
▲ 平面布置图 ① 原有卫生间面积过于紧凑,满足不了家庭的使用需求,设计中在有限的空间里巧借卧室的面积,把原来只能放进一个柱盆的卫生间增加了一个1.1米的台盆柜,增加的收纳的同时,使用上更加便捷。 ② 异形的客餐厅结构在空间利用上难以发挥最大优点,设计中把内凹角借直,打造出一个家庭收纳空间出来,小孩子的玩具,家庭中的大件物品,换季的被褥等等都可以收纳进去。

强电箱藏在进门左侧吊柜里,左侧开放式的柜体格局配上黄铜挂钩,回家的外套卸上去的同时也卸去了一天的工作劳累。右侧的定制悬挑鞋柜作为换季鞋子的补充,分体式上下柜设计,镂空台面,背后储物间的进门设计上定制了一块全身镜,用镜做门,使其完全隐藏,功能使用全部围绕玄关空间进行设计。

藤编门板和黄铜的金属把手结合,给人一种悠闲自得的《慢生活》理念,舒适且通透。这种传统材料与现代设计相结合的搭配,也是在尝试用旧的事物表达出新的设计思考。


开放式的厨房布局,打破空间上的约束,带来互动性更高的生活场景,岛台增加收纳和操作台面,受制于管道的影响,曾让业主一直心心念的洗碗机终于可以嵌入岛台里了,和餐桌平行的台面,同时满足烹饪用餐的仪式感以及工作休闲的舒适居家环境,让这里又作为一处畅饮谈心地。







▲ 装修前

▲ 装修后


带着“温暖”元素的棕色,典雅,质朴。樱桃木的暖调色块以及自然流畅的线条,由带有复古气息的活动家具配饰组成,糅合复古的时尚与丹麦北欧的清新,搭配温暖材质和柔和灯光,把此刻属于秋冬的浪漫融合进客餐厅之中。



▲ 装修前

▲ 装修后

Hygge要做的一切都是营造舒适,幸福惬意的生活环境,一个艺术感十足的餐边柜来展示幸福时刻的家庭照片、插画、纪念物、和画最合适不过。羊羔绒是天上的云朵,给人无尽的柔软,无论视觉还是坐感都能带来舒适柔和的愉悦感,在阳台拱形门洞的衬托下,搭配一盏优雅的百褶立式台灯,一段慵懒惬意的漫时光就此开启。






打通了书房和过道的空间,除了空间尺度的增加和时尚以外,最重要的是凝聚了一个公共区域,在动线的设计上尽可能让大家走进公共空间,增加彼此接触的机会,使家人相处距离变短,令人感到放松和舒适。

▲ 装修前

▲ 装修后



卫生间主要以清新为主,干净整洁。

原本主卧的床头有个窗户,床头的窗户不仅影响睡眠,还会带来家具摆放的困扰,设计中就把窗户选择封掉,达到床头背景墙的统一。奶咖色的乳胶漆,焦糖色的实木柜体组成了睡眠空间的静谧,床头的皮革加上黄铜材质的阅读灯点缀,营造出温馨浪漫的起居。






儿童房延续了整体的设计搭配,简洁的硬装配色,搭配温暖木质,组合的成品储物柜阶梯式的排列,在阳光的衬托下,向阳而生,肆意生长。




阳台的弧形造型给这个空间多了一丝别致,因为不是朝向正南方,所以阳光照射进来的时候已经是下午时分了,此时的阳光少了正午的那丝烈热,趋向于柔和,配上洁白的窗纱,微风袭来,卷起的窗纱也被这美好生活打动。




Q: 装修过程花了多长时间? A: 设计沟通上断断续续进行了两个月,确定了95%的装修细节,施工和家具进场在三个半月的时间。 Q: 你对这套作品最满意的地方在哪里,为什么? A: ① 客厅阳台的拱门 这两点的落地,原本是不在设计方案内的。一个是因为阳台的一根落水管太低,需要包管处理,常规的处理方式会出现异形,这时业主脑子里的想法是把它做成拱门的造型,利用拱形的面积区遮住管道的最低点,从而完美解决这个问题,也使得客厅因为有拱门的加持,升华了整个空间的格调。 ② 厨房的岛台 老房一般没有承重结构图,原有方案默认有个承重柱,拆除之后发现并没有,业主想索性全部打掉做岛台,增大厨房操作台面,正好原本不好放的洗碗机有了位置嵌入。 两个点,都是跳出去原本计划之外,属于意外之喜,不仅仅解决了功能性的问题,效果上也很出众。 Q: 在整个装修设计期间遇到最大的挑战是什么? A: 作为从业者和受众者都寄希望于设计方案,效果图和最终的落地效果达到100%,如果期间业主不做任何改变,我们按效果还原,整个设计过程大部分是顺畅的,当然落地会遇到困难和问题,但那些都是技术层面的问题,预算和专业度是可以解决的。这样最终出来的结果只是满足了一个基本的居家追求,不会是很高的追求。所以有些设计师会厌烦客户想法太多,打乱原有的节奏,其实住宅设计里,有时候最有灵魂的那一部分,反而是客户参与创造的一些意外,他们给家的这个空间和归宿,是属于私家空间里最有灵魂的一部分,这个落地结果不是对方案的还原,但它是一个很好的落地。
