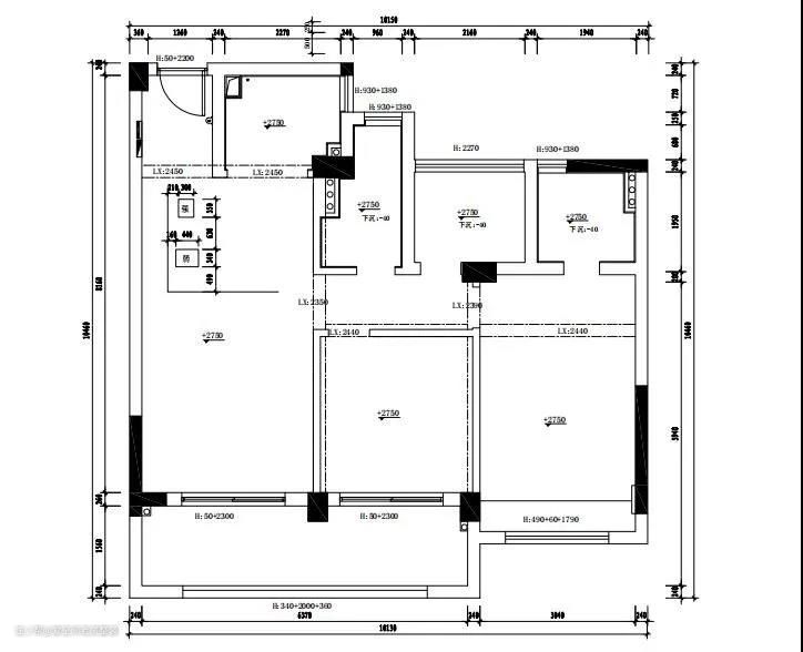
“厨房的东西很多,但我从不约束孩子的活动空间,甚至欢迎他们加入其中,一起烘焙,一起学习收纳。在实践中,可以更快的理解什么是对的,有意识的培养他们的收纳能力,告诉他们,每个物品都有属于自己的地方。”——最初沟通时,女主人对家的描述很清晰。 一进去就处处能察觉到温暖,结合屋主需求和户型特点,设计了实用又符合屋主生活习惯的动线,将原先封闭的厨房改为开放式;利用走廊面积打造衣帽间;阳台纳入儿童房使用,增加孩子游戏区,给一家三口打造极致舒适的居住体验。 房屋信息: 面积:80㎡ 户型:三室两厅两卫 常住人口:3人 风格:现代简约 装修成本:26万 原始结构图

户型上,除了次卧和厨房面积有些小之外,采光、得房率都不错。

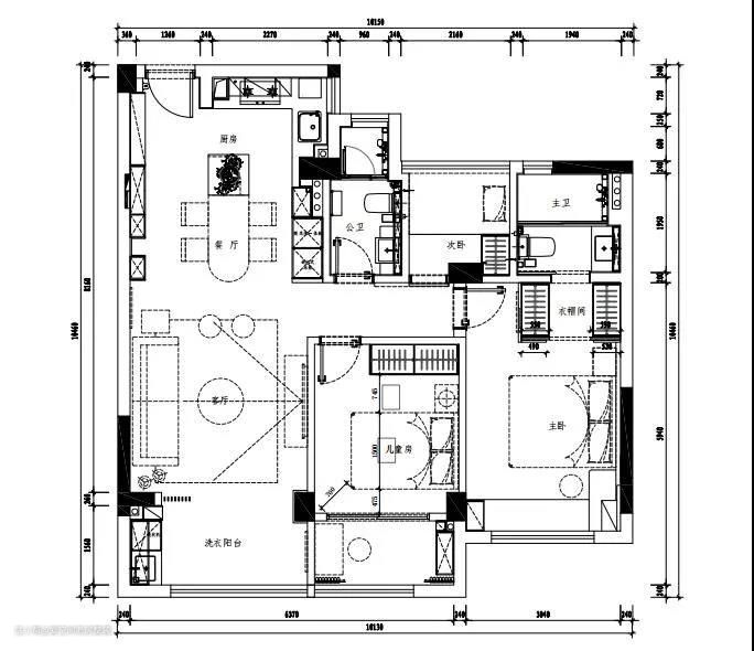
▲ 平面布局图 设计策略: 1. 去掉部分非承重墙,将原封闭厨房改为开放式。 2. 将主卧和主卫之间的走廊利用起来,打造成衣帽间。 3. 阳台一分为二,儿童房的阳台收进室内,变成了孩子的游戏区。

客厅以原木色和铬黄色搭配,原木色质感温润,鉻黄色醒目稳重,阳台带来的温暖阳光,营造出静谧优雅的氛围,是舒适生活的标配。

硬装线条回归简约,无主灯+局部吊顶,让层高更为开阔。 考虑到屋主家宝宝还小,在客厅玩耍时间较多,茶几选择轻便可搬移款式,圆滑的边角,安全系数也更高。

珊瑚橙单椅纯净浪漫,风从窗外吹来,带着春天的味道,百叶窗既阻挡光线,又能保留空间的通透。 抛开家务琐碎的日常,女主人坐在此处翻阅一本心仪的杂志,与客厅玩耍的宝宝时不时的互动一下,和孩子的相处时光里,也可体会到岁月静好。

木栅格,作为客厅和阳台的界线,营造虚实相生的意蕴。 阳台另一侧改为兼顾洗晒衣物和休闲的多功能区。洗烘一体机搭配阳台上的智能晾衣架,哪怕是封闭阳台也不怕潮湿问题。

客餐厅一体化布局,用吧台做隔断,不但可以帮助厨房分区,还能充当临时备餐区和餐桌,增强实用性,一举两得。

大理石台面的餐桌结合棕色皮质餐椅,营造出街边咖啡厅的轻松氛围,让这里不仅是餐厅,也是家里重要的交流区域。

靠墙做了餐边柜,厨房电器嵌入内部,留白设计,清新又美观。

改造后的L型开放式厨房宽敞明亮,整洁有序更方便操作。而且墙上还打造置物架来摆放各种厨具,增强兼容性,让理想中的美食有了更多的互动性和可能性。

主卧简约素净,墙面以高级灰为主调,搭配原木大床,营造出舒适安心的睡眠氛围。

木饰面的床头勾勒出生活中一方直抵心灵深处的舒适世界,直白而简洁的色彩,传递出屋主对生活不拘一格的态度。

将卧室和主卫之间的过道改为衣帽间,入口采用推拉式移门,不会占用太多空间。

既是床头柜也是梳妆台,悬空的样式新颖别致,闲暇时可以靠坐在飘窗上,看看书,或是欣赏窗外美景,让卧室更有情调。

次卧多数时间是闲置的,只有两边老人偶尔过来小住一下,简单布置大床、床边柜以及飘窗,满足睡卧和休闲,视觉上很舒适。

粉色,每个女孩从小到大都喜欢的颜色,打造一方梦幻的小小世界,度过珍贵的童年时光。 与阳台打通后,扩宽了儿童房使用面积,希望孩子们的小世界一直被阳光和幸福笼罩。

床侧整面定制顶天立地衣柜,增加了衣物收纳空间,纯白色的柜体,大气又非常美观。

公卫以灰色墙地砖铺设,淋浴区和如厕区进行干湿分离,防止水花四溅的困扰,干爽又卫生。

主卫墙地砖一体,同色系看起来亮堂又干净。浴室柜悬空很好清洁打理,淋浴区用玻璃隔断阻隔水汽,加上墙面有通风口,室内比较清爽。

