本案为1500m²的独栋别墅,房主为一家五口,三代人同住。为了给一家人尽可能大的活动空间,房主选择了极简的设计风格,无论是硬装还是软装,都简洁到了极致。空间根据三代人不同的生活方式来划分,老人需要生活便捷,孩子需要有自己独立的空间,年轻夫妻需要一个现代简约的二人空间。房子不仅要满足所有家庭成员不同的生活需求,更要让家人感受到陪伴的天伦之乐。

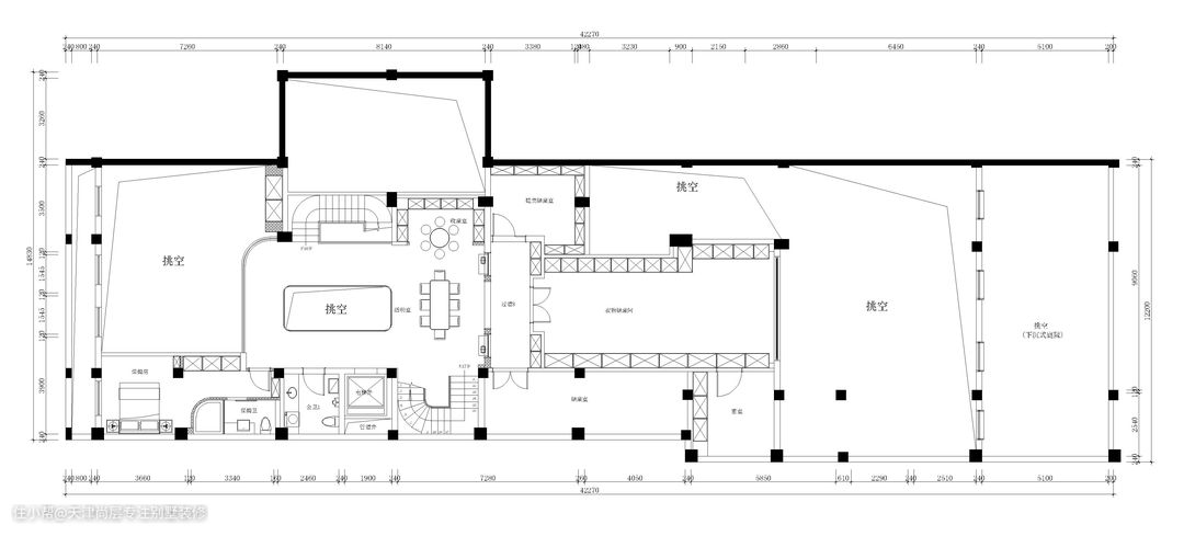
负二层平面图

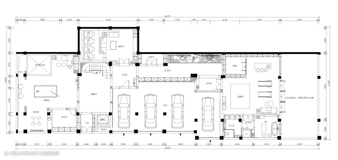
负一层平面图

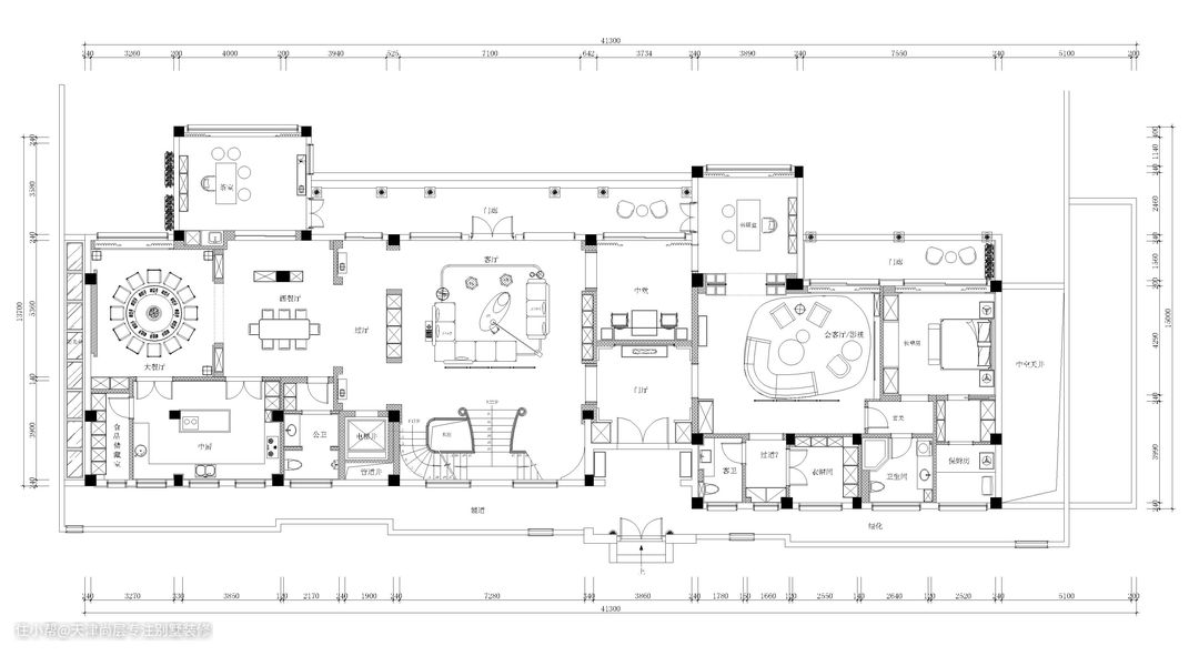
首层平面图

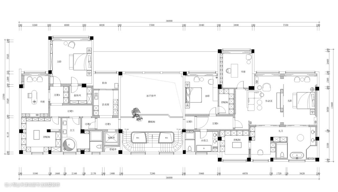
二层平面图
设计师以包容性极强的白色做底色,融合灰色搭配,巧妙地将优雅和温暖融为一体,为业主打造一处极具意境的品质居所。极简的设计风格使空间呈现精致非凡的质感,白色皮质沙发搭配灰色茶几,清新淡雅的软装,体现房主对生活高品质的追求。


客厅的挑高设计使空间在视觉上开阔、宽敞,吊灯外观简约时尚,和整体空间风格相得映彰,合理的弥补了高处空旷的问题。



客厅单侧墙体做嵌入式鱼缸设计,灵动多彩的珊瑚、小鱼为空间带来一份生机,恰到好处的中和了空间的寂静感。


餐厅以灰、白作为整个空间的大基调,木质蔓延,将精致与清雅展现于方寸之间。白色大理石桌面与地板交相呼应,再辅以简约的餐椅,使整个空间沉静而不失惬意。


全景落地窗的设计,打开视觉的畅想,思绪随之舞动飘扬,轻松舒适之感不期而至。华丽的水晶吊灯为餐厅带来良好的照明效果,用餐时尽享惬意自由的时光。

厨房在黑白灰交织中倾诉空间的表达,沉稳内敛,干净纯粹。私人订制的壁柜橱柜作为收纳空间,兼具功用与设计之美,使厨房没有一丝冗沉,简洁而不简单。


L型的操作台功能分明,双水槽的设计方便做饭洗菜兼用。合理的动线让主人在做饭时也能拥有好心情,空间诠释着人间烟火的幸福韵味。


卫生间极具现代风格,单侧做嵌入式储物柜,增加空间的收纳功能。干净简洁的空间选用双台盆设计,早晚高峰家庭成员洗漱也不拥挤。放置自然舒适的浴缸,瞬间让人卸下疲惫。干湿合理分区,功能齐全,大理石材质的台面彰显时尚大气。



走廊处选用照明灯带烘托极简的空间效果,大面积的留白更好的延展空间视觉效果,彰显房主高级的品味。

主卧位于2层,良好的地理位置让夫妻二人在卧室即可将屋外的景色一览无余。光从窗口照进卧室,整个空间彰显温柔舒适的氛围,一面储物柜的设计,增加收纳空间的同时也是精致生活的完美表现。



设计师巧妙的将坡顶与室内照明灯带相融合,以时尚的线条感衬托温馨的环境。沉稳的木质地板搭配同色系的窗帘,让主卧空间静谧舒适,为房主带来安然娴静的睡眠氛围。
简洁的空间,沉淀出次卧温馨的时尚感。木质地板墙面的运用,凸显了空间质感的同时,释放出一种沉稳安定的空间节奏,为房主带来家的舒适感与归属感。

楼梯高度,坡度适中,选用智能感应灯,灯光清晰不刺眼,精心的设计使楼梯成为家里颜值满满的存在。



休闲区是一家人最喜爱的地方。男房主是台球迷,所以在休闲区,设计师将吧台与台球区相结合,一个空间兼具多个功能,动静结合,家人之间也可以更好的交流情感。


沉稳的木质落地柜与高级灰大理石地板相结合,丰富了空间的层次感,体现出房主十分有内涵,以及高贵的品味。


茶室结合了中式的茶桌茶具以及时尚的现代水晶吊灯,大气中透露着现代时尚的空间氛围。设计师以独特的视角,添入窗外的艺术之境,在兼具功能与美学的同时,寻找感性与理性之间的平衡,给空间以优雅舒适的情绪感染力。


考虑到家中三代人不同的生活习惯,设计师将健身房合理的规划到地下二层,动静分离,房主在使用空间时也不会吵到家人休息。

影音室采用发光星空顶,满足房主一家爱好看电影的爱好,营造舒适和谐的观影感受。

本案设计师:方幼松及其团队。