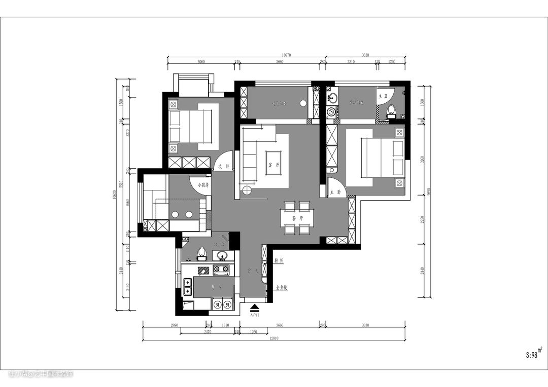
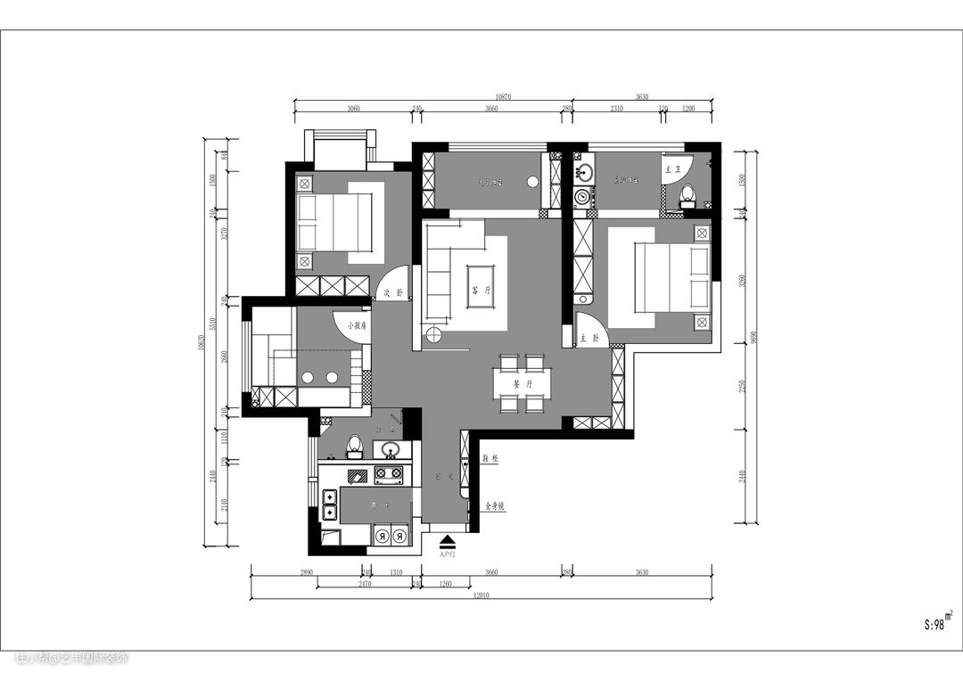
方案解析
1、一家4口居住,3个房间都保留,物业允许加建了一个卫生间。空间不大,但是整体很温馨! 2、现代轻奢风格,业主是一对年轻的夫妇带2个小孩居住!

效果对比


客厅
潘多拉灰的餐桌和潘多拉灰的背景墙相呼应,硬装整体灰色调,橙色的沙发活跃了整个空间,3000K色温的灯光使得整个空间温馨舒适!






餐厅


厨房

主卧

次卧

卫生间

阳台



1、一家4口居住,3个房间都保留,物业允许加建了一个卫生间。空间不大,但是整体很温馨! 2、现代轻奢风格,业主是一对年轻的夫妇带2个小孩居住!



潘多拉灰的餐桌和潘多拉灰的背景墙相呼应,硬装整体灰色调,橙色的沙发活跃了整个空间,3000K色温的灯光使得整个空间温馨舒适!













