本案例是四口之家,年轻的业主和一儿一女,案例位于一楼,有非常棒的层高优势,整个家看起来非常舒适敞亮。业主两人喜欢简约偏法式的风格,希望整体上简约舒适但在细节上能足够精致。结合业主需求和原始户型, 以现代家具和轻法式吊顶相结合,打造了一个舒适温馨、混搭风格的家。

原始户型图▲ 原始户型布局比较舒适,尤其客餐厅及卧室的采光非常舒服,不过厨房空间不太工整,在原始户型中直接利用的话比较麻烦;小孩房带衣帽间空间比较大,空间利用上比较浪费;主卫空间也比较浪费。

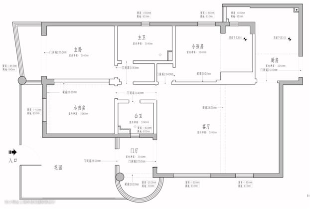
平面布局图▲ 优化亮点: 1.原来小房间的衣帽间给到厨房,增加厨房实用面积,打造适合亲子烘焙的空间; 2.主卫与主卧的过道空间重新划分,规划出L型衣帽间和独立卫生间,将原来浪费的空间充分利用起来; 3.客餐厅做了横厅设计,沙发与餐厅直接相连,动线舒适合理。

开放式的客餐厅宽敞舒适,温润木地板做人字形拼接,更能够凸显空间层次感。横厅的户型采光上比较舒服,大面积的留白和米白色的沙发搭配,在通透的光线下更显温馨利落。

平面吊顶做了轻法式线条,既能够凸显层高,又体现出细节处的精致。灯光方面采用了无主灯设计,间保留简单的筒灯内嵌入吊顶,营造均匀舒适的光线。客厅侧墙做了蒸汽壁炉,大理石造型搭配延展性的装饰画,丰富墙面空间。

客厅取消了茶几的设计,铺上厚实的灰色花纹地毯,呼应温馨的空间格调,同时也留出了足够的空间让两个宝贝开心玩耍,一家人共同度过亲自时光。抱枕的选择也是非常精致,橙色的条纹、灰色的花纹以及毛绒布料的添加,让沙发更加舒适个性。

空无一物的电视背景墙,让整个家更显简约个性,选用了木质几何造型橱柜,可以增加空间储物功能,女主人摆放上清新的花束,淡雅悠然的空间格调油然而生。顶部也添加了线性灯带,保证追剧观影时的光线体验。

餐厅与客厅相连接,以吊顶造型做了空间的划分,隔而不分,保证了流畅便捷的空间动线。温润的木质圆桌非常显干净,搭配米白色的餐椅,营造雅致舒适的就餐环境。

区别于客厅的无主灯造型,餐厅吊灯在法式石膏线基础上,添加了简约灯带,凸显空间层高。吊灯选用了简约的圆形吊灯,呼应餐桌造型。不吃饭时这里也做一家人的休闲书房使用,取消餐边柜,放置结合造型的书架,在闲暇时一家人就能舒舒服服的围坐一起看书。

开放式橱柜的设计让这里成为小朋友们最喜欢的空间,孩子的漫画书、童话书放置在下面几层,方便随手拿去。琳琅满目的书籍,摆正的整整齐齐,让餐厅也变得更加诗意。在角落放置了钢琴,一家人陪孩子度过舒缓的练琴时间。

厨房借用了小卧室的衣帽间,整体空间更大更显舒适。鱼肚白大理石瓷砖通铺墙面地面,浅米色的橱柜将大型家电通通做嵌入式处理。大面积浅色调的加入,更能够打造舒适宽敞的视觉感受。 厨房还添加了简约的长方形吧台,添加了干净的白色吧椅,一家人可以在此喝喝咖啡,做做烘焙,度过温馨的亲子时光。

主卧空间选择了白色的空调主调,搭配墙面、吊顶轻盈的法式线条,营造疏密变化的空间纹理感。一走进卧室就能感受到明媚舒适的居家日常。棕色的床头软包凸显低调奢雅的生活品味,睡前倚靠时也非常舒适。

由于房子在一楼,所以窗外的景色都能够尽收眼底,层高上也非常舒适。卧室阳台面积比较大,设计师打造了一个休闲阳台,放置单人躺椅,午间小憩、睡前阅读都适合,实用性较强。靠墙角还放置了小角柜和装饰挂画,可以放置一些小物件、常看的书籍等。

两个业主睡前都不喜欢太亮的灯光,所以卧室依旧采用了无主灯的设计,同时在床头一侧添加造型别致的线性吊灯,暗黄色的灯光更能营造舒惬休闲的睡前光线。简约的棕色床头柜呈对称分布,圆弧造型的边角美观又实用。


次卧是男孩房,整体格调仍旧保持干净清爽。白色墙面搭配白色的踢脚线和深棕色木地板,凸显简约舒适的视觉感受。衣柜、床头柜、学习书桌和小橱柜均选择了白色调,非常显干净。

黑色铁艺沙发搭配蓝色的床品,透露出几分简约北欧风的味道。吊顶选用了内嵌式筒灯,床头添加褐色的对称壁灯,保证舒适通透的空间光线。床头背景墙添加了简约的装饰挂画,别有一番小清新的趣味。

床尾靠墙添加整体橱柜,中间做玻璃橱柜,两侧做开放式厨房里,放置孩子喜欢的玩具和书籍。多处装饰画的放置也空间不再显单调。靠窗添加简易的学习书桌,保证孩子白天学习时,舒适的自然光线。

客卫以玻璃隔断划分出独立的淋浴房,干湿分离方便空间清洁。防潮白色吊顶非常显干净,同时添加线性装饰,放大空间层高,舒适敞亮。坐便区靠墙角靠窗设计,方便随时开窗通风。

主卧卫生间以白色的大理石瓷砖通铺墙面和地面,顶部射灯、LED化妆镜+底部灯带,让卫生间保持舒适亮堂。选用了壁挂式马桶和悬挂式浴室柜,底部留空方便卫生清洁。

主卧衣帽间与卫生间相连,L型的衣帽间做通顶设计,上层做开合门宽柜,方便放置过季棉被棉衣等物件。米白色的柜体搭配棕色木地板,让整个空间更显清新舒惬。

门厅处是圆弧形的落地窗,这里我们遵循业主的想法,没有做过多的装饰及布局,仅放置了一把藤椅一展落地灯,不管是午后在此惬意的享受阳光,还是晚上在此夜读,都是不可多得的生活体验。
主案设计师:朱枝亮(Leo) 国家注册设计师,国际ICDA资质认证设计,中国建筑学会室内设计学会会员,中国装饰协会会员