项目地址 | Project address:三堡家园南区 公司 | Co :铭品装饰 设计风格 | Style:现代风 面积 | Size:120㎡

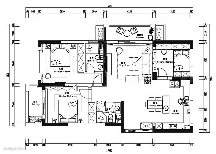
平面设计图 屋主性格比较爽朗,是一位钓鱼发烧友,喜欢经典的黑白灰色系,设计上要有大平层的气势跟空间感,能够带来足够舒适的居住空间。 设计亮点: ①敞开式厨房+餐厅组合,让空间更加宽敞。 ②客餐厅一体化增加家庭成员的交流与互动 ③厨房旁边设计了一个暗室,可以有多种用途,平时作为杂物储藏间。
客厅宽敞通透,黑白灰贯穿整个空间,开放式的布局跟大落地窗,让客厅采光充足,无主灯色设计,让整个空间看起来简洁干净,顶部筒灯跟磁吸线条灯进行照明,组合茶几,布艺沙发,装饰画在光影中调节着氛围。

周末午后在这里看看书,晒晒日光浴,非常的惬意舒适,出了三人位的沙发,两侧的单人椅也给客厅带来了一些休闲感,绿植的加入为室内增添一丝活力,沙发背景墙+木板组合,黑灰的配色与整体的风格比较融洽,墙上三联式的装饰画律动感很强,墙面更有立体层次感。

窗帘选用深蓝色系,与黑白灰做一个区分,颜色上也保持深色系,不破坏整体空间的美感。

白色纹理大力支持构成电视背景墙,两侧用黑色线条做收边,电视柜保持背景色系统一,以黑白色构成。


厨房旁边设计了一个暗室,可以有多种用途,平时欧威杂物储物间,有需要的情况下可以当做客卧使用。

开放式的餐厅+厨房的组合,让空间更线宽肠,也能够增进家庭成员之间的交流与互动,岩板餐桌搭配皮质餐椅,营造出舒适高级的用餐环境,餐边柜选用了深色的木质板材,尽显高级。

吧台将餐厅与厨房做了隔断,同时承担了厨房的部分功能。

吧台下也做满了柜体,结合橱柜,整个空间收纳充足,柜体色彩也很统一。



卧室背景墙通铺灰色的壁纸,延续客厅整体的基调,地板改为原木地板,中和空间的冷冽感,让卧室更加温馨舒适,床头两侧的壁灯+吊灯,做为卧室的主要照明,蓝色皮质床头,与窗帘做呼应,靠背两侧的环抱设计,靠起来更加舒适。

靠墙做了一排内嵌式衣柜,增加卧室的储物空间,鬼门选用黑色木质板材,搭配无拉手的设计,简洁又大气。

床头柜跟床品的配色统一色系,抽屉式的设计收纳日常杂物。

另一侧是米斗柜+梳妆台一体式的桌子,台面上摆放着智能调光灯,方面屋主护肤化妆。

儿童房粉色一改暗沉的黑白灰色系,整体由粉色、白色跟木色构成,营造一个温馨舒适的睡眠空间。

床头柜背景墙是充满梦幻感的起球画面,非常舒爽,如同儿童世界一样纯真美好。

床尾处锁了一排书柜,书桌也嵌入其中,柜体做的玻璃窗,里面摆放的物品清晰可见,拿取方便。

主卫与次卫大体风格相通,主要的区别还是太哦恩的颜色,主卫选用蓝色台盆柜,与主卧卫生间保持一致,墙面上设计了壁龛,方便放一些搭建的洗浴用品。

次卫是暗卫,台盆柜选用白色,能提亮整体空间,靠近马桶做了壁龛,可以存放一些纸跟用品。

阳台两端,一遍做生活阳台,另一边是休闲阳台,定制台盆柜+吊柜,将洗衣机嵌入其中,方便清洗衣服。

休闲室可以在这泡泡茶,非常的惬意

