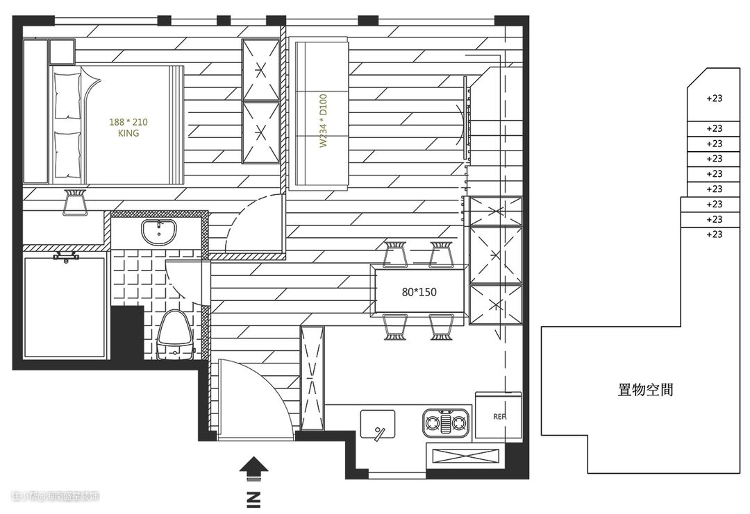
本案是老屋翻修除了翻新扩建工程,还须拆除原有物件,无论在预算考察,或环保议题,经常是设计团队再三思量难题,经过沟通讨论后,留存了状况依然良好餐厨中岛台,采用抛光打磨工序修复物件,并重整台面下的橱柜门片。 保留通往上方阁楼原楼板结构,达到置物平台再利用性能,降低二度拆除工程,仅重新将楼梯由原9踏阶调整为11踏阶,并拆除原有扶手,以线形深色铁件,贯穿整体楼间,随着一纵上升阶梯,扩增小坪数,提升高储物机能,亦轻拥了现代美式Loft开放式阁楼。 房屋基本情況 房屋位置:海南•海口 房屋面积:面积60㎡ 房屋户型:1房1厅1卫 常住人口:夫妻俩人 装修需求:最大化收纳性能,改善原采光不佳景况

Q:如何改善小面积房屋采光? 本案房子是13年屋龄老房,原始动线于一入门时,便以一道内玄关开启,不仅阻碍出入口处,造成整体行走不流畅,又使阳台采光面光源无法流进屋内,于是大幅度调整此区格局,拆除入门即见内玄关,将玄关调整至大门右侧,如此一来,延伸了入门距离,亦降低大型量体遮蔽,都成为引光入室极佳解决手法。
拆除旧有内玄关,立面后退至沙发背墙,由于屋主经商,特意挂置一幅“九鱼图”,在风水上讲究招财,右侧以灰镜与仿石纹系统板,构筑储物柜体,上下带有门片柜体,中间则打开一处于出入时,便于随手拿取的开放台面。

延续玄关微量铁件格栅,拆除原老式楼梯扶手,以黑色格栅铁件作为穿引,由天花到每一踏阶,皆以90度垂直角,随着坡度搭建一根根铁件,无论从任何视角,都可见线条纵且深密实结构,不仅构成安全攀爬上楼的扶手面,更以装置艺术之演绎,幻化为电视主墙,沙发背墙则滚涂灰色美式油漆与之相映。

电视墙往右侧继续延伸,以灰色人造石铺叙,成为客餐厅之际过渡,然则电视主景与灰色纹理比例,刻意落在5:3,占据比例5的铁件看似沉稳,却辅以虚实特质,接引并筛落光线,比例3的灰色石材,看似包覆力强,却有亮面晶莹质感,两者共构了现代时尚Loft氛围。



餐厨位置与隔局未有改动,除了讲究传统风水,调配冰箱与灶口不能正对方位,更量身订制隐藏式家电柜,使喜爱下厨烹饪的男屋主,在一列灰镜型塑烹饪区,与一道中岛区域,两两相对构成餐厨场域,具备更完善料理餐台以便使用。

不只喜爱料理,更爱享受色香味俱足菜色,为了每次佳肴上餐桌,第一时间捕捉热腾腾摆拍画面,设计师贴心从阁楼置物区,增设轨道灯源,并调整对应角度,使光直接落在料理上,让热爱分享美食的男主人,便于拍摄每一次料理创作。

两人共食是周间型态,周末众人飨食,亦是家中欢腾时刻,在餐吧台垂吊数盏烤漆金属玻璃灯,灯光流熠闪烁,纽约城微醺片刻,成为家中欢聚风景。



延续原有楼板结构,阶梯重设扶手样式,上方高度约为1.4米左右,阁楼原以玻璃作为隔屏,慎思安全考察,与黑系铁件风相融,上层改以崁入式造型铁件,构成楼面造型,达到隔屏用途。


将旅行感实现在每日睡醒瞬间,地板刻意增高为和室卧眠区,为扩增收纳区域,将原床侧衣橱,改设置为床尾一整列量体。

淡雅蓝系契合钟爱色系,引曝式局部光源,地板再添一线灯带,床边更巧妙隐藏于墙侧,有一式简单书桌与层板,从房门入口全然无法窥见书桌,使卧室更显利落。


长期差旅于美式型态酒店,已经惯于带有颗粒感的粗犷立面,以及美式品牌黑色龙头五金,特别将旅游记忆元素,都一一涵纳入主浴。

采用大地灰泥色泽漆面,也扩增盥洗台面为两人使用型态,砌一处泡澡浴缸,同时型塑干湿分离区,洗沐沉浸在旅居每一刻。

为使采光绝佳引入,即使使用黑色铁件、灰黑白系立面,仍透过格栅形式,无论从何处视角,皆共构视觉穿越感,使光与深色物件形成光影互动,在中性冷调色彩中,依然饱含日光暖度。

