对于千篇一律的精装房来说,虽然有着开放商提供的装修,但从众的设计,不论是颜值还是收纳等实用能力上都与业主的要求不匹配,本案就是一例精装房改造,因为屋主不满意原有的装修,于是找到了我们进行全新改造。

基础信息: 案例地点:江苏泰兴 设计风格:欧式轻奢 户型面积:300㎡ 户型构造:独栋复式别墅 入住: 买下这套房子是业主夫妻很早就有的计划,随着孩子逐渐长大成家,又有小孙子准备出生,一家人越来越需要一个更加宽敞舒适的空间,业主从事的建筑行业,而这套独栋复式别墅就是典型的欧洲建筑类型,让业主感到莫名的亲切,也希望内设能够打造为具有轻奢气息的欧式风格。

业主需求: 对于这套房子,业主的需求很明确,希望可以针对三代人的需求,对活动区和睡眠区进行一个清晰的区分,因为家里在不久的将来还会有小孩出生,因此最好能做到玩可以玩的开心,睡也可以睡得安稳,而业主的儿子儿媳也有自己的工作,所以最好可以根据代际之间的需求基于楼层进行了划分。

1.一楼主要是用来包含餐厨客厅的待客区,而考虑到业主夫妻年龄渐长,不适合爬楼梯,因此在一层设置独立的卧室和书房。 2.二楼是针对业主儿子一家专门设置的睡眠空间,既包含大套间的主卧,又包括未来的孙女房和夫妻俩可以独立办公的书房。 3.因为家里人口众多,所以空间收纳储物能力不能差,针对年轻的孩子一代打造的沉浸式超大衣帽间,必须能够担负起一家人的衣帽鞋储物需求。

房屋的原始结构存在哪些不足?


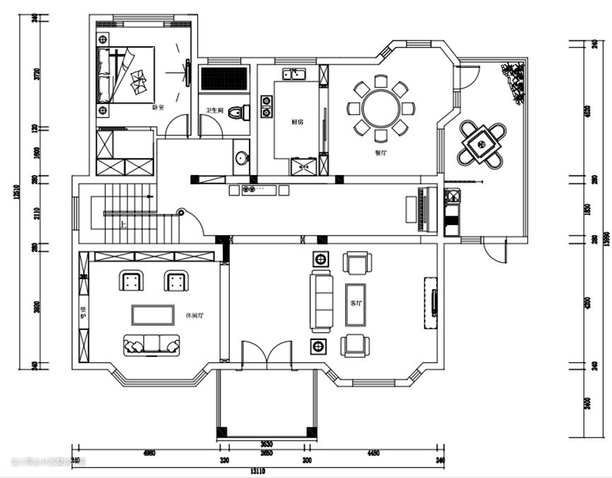
这套独栋别墅包含上下两层,一共300㎡,乍一看并没有大的空间硬伤,但实际上有大半面积划分的太过零碎,尤其是一层区域通向楼梯的长过道,有不小的面积浪费现象存在,并且承重墙的数量过多,上下功能区有太多的重复与滥余,且楼梯的占地面积比重过多。

设计师怎样在原始结构上进行合理改造? 考虑到原有的建筑结构存在一些局限性,在与业主进行多次的交流与沟通后,设计师在原有的背景墙方向,大胆做布局改造,通过华丽利落的石膏线线条构建大气雅致空间。

1.入室的长过道区域,打造造型清丽优雅的端景台,依托黑色漆光镜面的斗柜,提升空间颜值,增强过渡感。 2.客厅以典雅柔和的米白色作为背景色,并融入奢华高级的金铜色作为点缀,造型方正的同色系围合布局沙发,打造出自然大气的交流空间。 3.餐厅肌理细腻的香槟色餐桌搭配欧式方格麂皮沙发,光滑靓丽,搭配侧面的复古北欧风餐边柜,不仅考虑到了空间内的收纳功能,也满足了美学功能。 4.卧室用温婉的纯白营造出静谧安静的氛围,全屋暖色系的光影,彰显出业主对空间独特的审美和喜好。

本案的设计风格特点? 设计师依据屋主的需求,在原有的装修进行升华优化,而实用性上则要最大化提升家居空间的收纳容量,客餐厅之间的自然过渡基本都采用统一的色调与材质,局部大理石与石膏线搭配的墙面,既富有变化又绝不突兀,使得空间显得格外开阔。

设计过程中有哪些小心机?

衣帽间靠墙打造采用了分列式布局,通体铺设鱼骨拼的设计感地砖,加强视觉上的延伸感,柜体则采用金属与玻璃质感的通顶衣柜,封闭收纳区与展示挂衣区分开,最大化的增加收纳面积,空间上,隐形感应灯带的设计与奶油白色的柜体颜色搭配,让整屋显得既通透又敞亮,而分类别收纳的设计方式,既优化了室内的动线设计,又提高了空间利用率。

最满意的一个功能区?

卧室的室内书房是业主儿子最满意的功能区,采用最简单的色调,营造出轻松温馨的氛围,相比较平常繁忙的工作业务,他更珍惜与家人在一起相处的时光,通过对材质、细节的整体把控,采用黑色的镜面单人桌搭配复古的皮质办公椅,不仅大大加深了业主一家的归属感,更营造出一种惬意浪漫的居家气息。
结语 好的设计难遇难求,但只要你肯大胆的参与下方留言区的讨论,就可以免费领取我们的设计方案和建议,赶紧行动吧!
