本期的业主是一位公司高管,过一段时间公司会搬到新开发区,业主为了自己以后上班方便,于是在公司新地址附近购买了下面这套新房作为自己和家人的新家。 业主事业心极强,性格稳重冷静,喜欢职场中那种充满理智的氛围,所以要求设计师在设计自己新家的时候也要让新家有端庄、理智的感觉。不过,这毕竟是家庭居住空间,在拥有端庄稳重的感觉的同时也要让人有轻松、温馨的感觉,要让一家人在这里感受到家庭生活的快乐。

由于长期在职场中打拼,养成了业主非常有主见的性格,对于这套新房的装修,业主同样有很多自己的想法,在正式动工装修之前,业主向设计师和施工团队详细讲述了自己的这些想法,要求在设计和施工的过程中将这些想法一一实现。 1、要给业主自己预留一间独立的书房。 2、业主家里有个年纪不大的孩子,要给孩子设计一间自己的卧室,并且在这间卧室中定制榻榻米。 3、家里东西多,要多设计一些柜子作为储存空间。 4、在阳台上要设计一个品茶的开放式茶室。

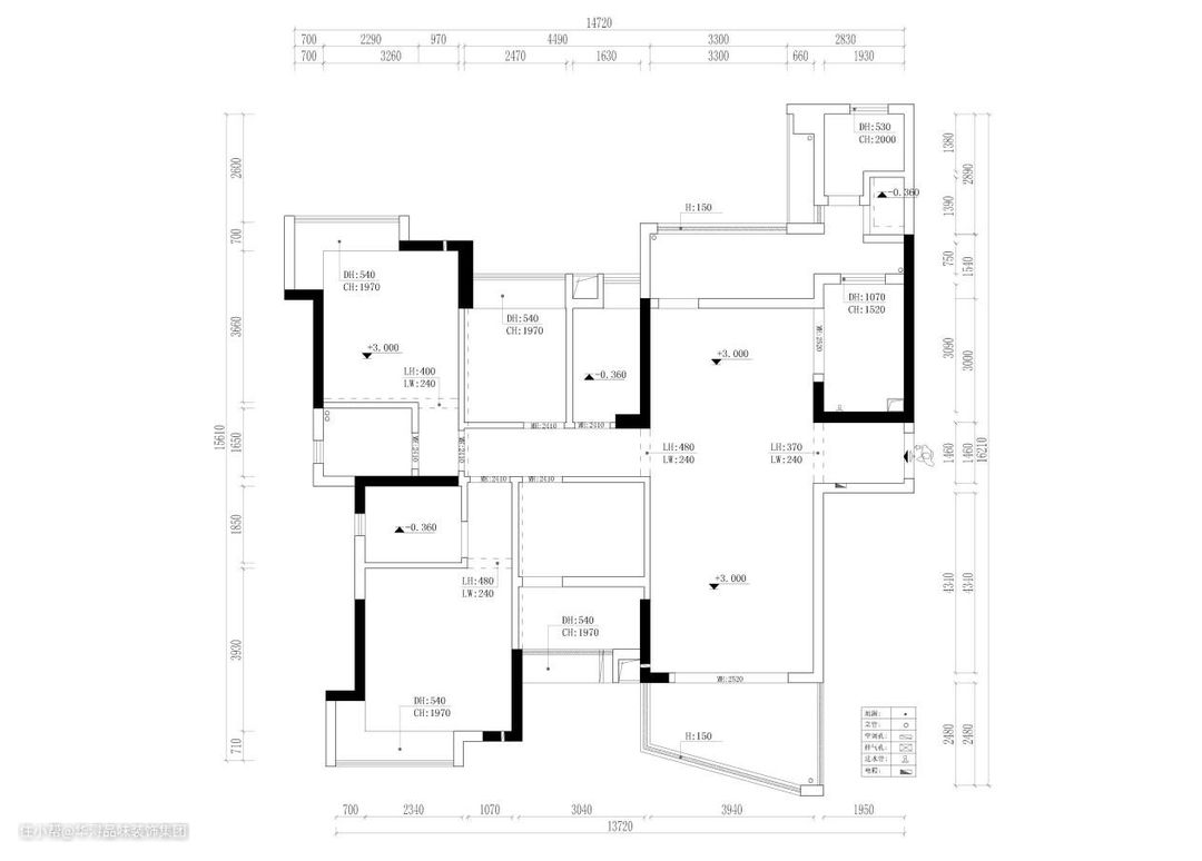
业主时间紧迫,希望尽早完成装修,所以在接到设计任务之后我们随机派出测量人员对新房进行了现场测量,在拿到测量图纸之后,设计师根据业主上述要求对新房进行了如下平面布局设计: 1、入户玄关左侧设为客厅,右侧设为餐厅。拆除餐厅和北边阳台之间的隔墙,改为用推拉门连接。 2、北阳台角落处的空间整合成一个房间,这个房间作为业主的书房使用。 3、在南阳台位置设置茶室,并利用原建筑留在南阳台位置的上下水为茶室提供水源。 4、房屋的其余空间为休息区,包含业主的主卧室和儿童房在内共划分为四个卧室。

客餐厅主体使用白色调,既能保证空间有足够亮度,同时大量的白色让房屋更偏冷色调,更容易让人产生端庄、冷静的感觉,可以满足业主对房屋风格的要求。 客餐厅的地面使用偏棕色的地砖,高光地砖反射光线让客餐厅更有现代感,同时略偏暖、偏重的色调也能平衡大量白色带来的过冷、轻浮的感觉,给人更舒适的感觉。

具体看客厅的设计,客厅中人主要活动的区域铺上了一张厚实柔软的灰白色地毯,利用地毯的质感让人有更暖和、更温和的脚感。而客厅中选择的蓝色皮革沙发,在丰富了空间色彩的同时,作为冷色调的蓝色也能更好的和空间的冷色调性保持一致。 在吊顶位置,去掉了常规的主吊灯,改用灯带和筒灯对空间进行照明,在让照明光线更均匀的同时,也让空间变得更加简洁。

和客厅这个略显正式的空间相比,餐厅空间的风格则更加轻松、更丰富多彩。餐厅靠近的北阳台使用了落地窗,透过落地窗进入房间的阳光虽然没有南阳台那样充足,但胜在光线柔和,能给人更温和轻松的感受。 在餐厅前方用白色的柜门板定制了一组餐边柜,兼具了装饰和储存等使用功能,在靠近窗户的位置,餐边柜还把冰箱包裹在其中,让空间整体性更强,视觉上更加整洁。

餐厅选用了一张黑色的现代造型餐桌,搭配了蓝色和灰色混搭的座椅,在背后用和座椅同样的蓝色制作了一面背景墙,同时窗帘也使用了这种蓝色,这在丰富餐厅色彩的同时也保证餐厅的色彩不至于凌乱,还能使餐厅的气质更加优雅。

茶室位于南阳台,采光充足,自然气息更加浓郁。在茶室中选用了一套新中式的家具,这套家具继承了传统明式家具简洁流畅的造型以及沉稳高雅的棕红色,在配合上茶桌上的瓷器茶具,顿时让茶室空间中式古典的韵味,也提升了房屋整体的文化、艺术格调。

主卧室选用原木色的实木地板铺装地面,并在定制的大衣柜上也加入了原木色木纹的元素,让这个主要的休息空间看起来更加温和。 主卧室的背景墙依旧使用了客餐厅中常用到的灰、蓝两色,在装饰卧室的同时不忘保持整个房屋风格的一致。

次卧沿用了房屋中主要用到的蓝、白、灰三色,蓝色的床头和窗帘让这个空间保持了宁静的空间氛围,同时在床头两侧的暖色床头柜和原木色的地板又为空间注入了自然、柔和的气息。 在角落中还摆放了灰色的布艺沙发,在平时不睡觉的时候也可以在这里休息。

由于次卧二面积较小,因此在设计上也就更加简洁,沿用了主卧、次卧一的原木色地板,以及房屋主要空间的蓝白两色的配色,营造了一个既简洁又温馨,同时还能和房屋调性风格保持一致的休息空间。

和其它的房间不同,照顾到儿童的心理特征,在儿童房中使用更多的暖黄色木纹材质,让儿童能有更温暖的感受,只有在这样的环境中孩子才能更加安心。 按照业主的设计要求,在儿童房中定制了榻榻米,既可作为床同时又能提供储存空间。

考虑到孩子今后的学业,设计师特意在床头侧面定制了一张书桌,供孩子今后学习读书使用。 书桌左侧连着的是一组大衣柜,可以提供超大的存放空间,在衣柜靠近书桌的位置设计成开发格,正好还可以作为书架使用,让孩子的书籍也有了专门的摆放空间。
装饰材料:瓷砖、木纹饰面板、地毯、大理石等
