业主诉求 本案是位于顺义一套loft别墅,套内面积18㎡,好在空间挑高4.2米,在利用好空间的情况下可以思考的点还是很多的。业主作为投资这个小区买了很多套,希望未来通过收租金实现“睡后”收入躺赢,那就要求我们打造一个既实用又好看,既有品质又不能太花钱的空间。额...... 我想这就是多数业主朋友的期许吧! 设计思路 在一个空的小房间搭建二层是loft设计的关键所在,所以本案重点放在了平面功能设计,4.2米的层高室内净高4米,钢结构采用120mm后瓦楞板现浇成型,隔音牢固又省钱! 整体采用原木色系搭配蒂芙尼蓝构成年轻清爽又温馨耐看的空间,主要通过定制木饰面柜体和调色乳胶漆作为空间主要构成材料,主旋律围绕着好看高品质的网红原木风打造!

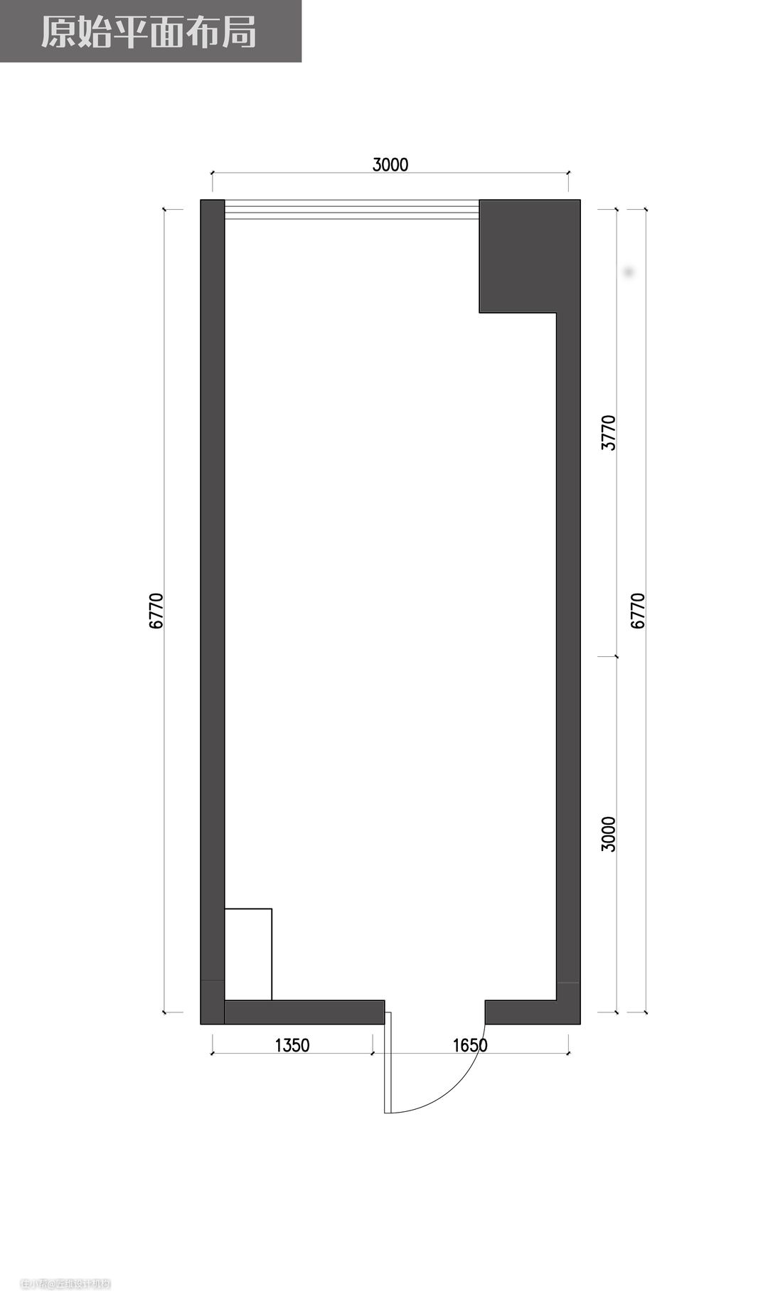
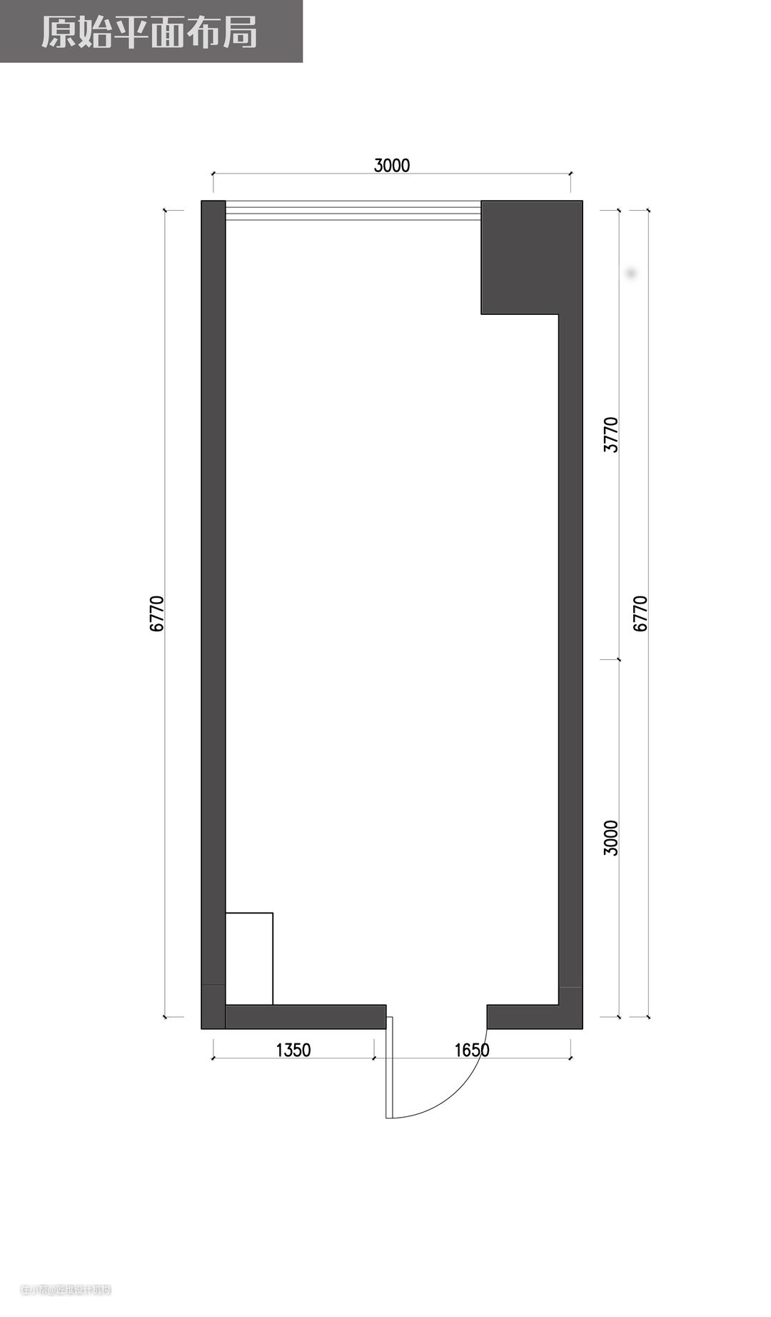
原始户型挑高4米,楼板需要业主自己搭建!

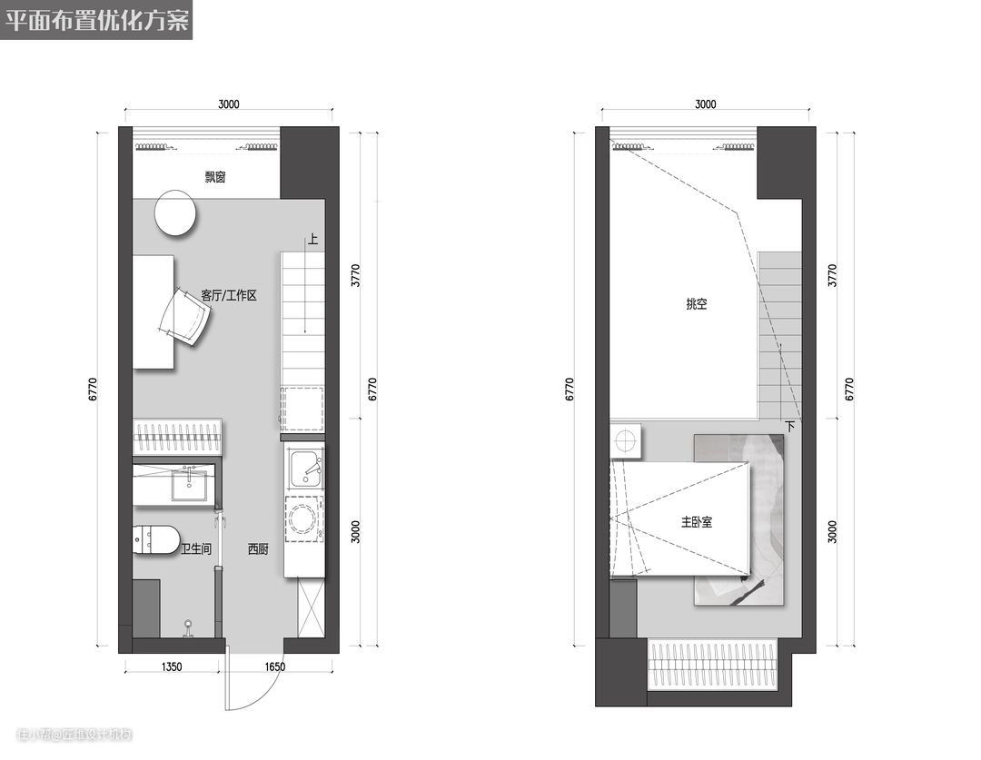
既要保证品质又要保证造价前提,我们采用了半挑空二层搭建,没有做全部二层搭建处理,这样会使空间更加开阔,居住体验加强。从入口进入设置玄关、西厨、卫生间、衣柜,基本把日常生活功能压缩到了入口区,把工作区和休闲设置在了挑空位置,满足日常工作和休闲会客需求,二层搭建卧室,基本平面实现动静分区!1


入口玄关设置玄关鞋柜收纳,连通开放式西厨橱柜(因为开发商预留的烟道位置就在玄关处),包含了做饭、收纳、洗衣机、冰箱等功能。


高挑的空间是loft的极大优势,大面宽落地窗很好的诠释着自然采光和居住的交互关系,工作之余偶尔慵懒的飘窗一阅,也是生活不可缺少的瞬间!

不同的租客需求不同的设置,除了工作区之外,我们也考虑了双人沙发布置形式,电源点位都做了预留。

飘窗加小阅读编辑构成一个阅读角,软装定制飘窗软垫加上小说和音乐的催化,不妨试试放慢节奏,睡上一个慵懒的午觉!

麻雀虽小五脏俱全的厨房,集成了冰箱、洗衣机、抽油烟机、灶台等等,在忙碌的工作之余也可为自己做一顿美好的晚餐!



二层的卧室采用5+5mm双层夹胶钢化玻璃分割,使原本十几平的空间感觉大了一倍,而淡淡的蒂芙尼蓝背景也为空间跳脱出一种清爽干净的ins风潮,吸引更多的年轻租客!


别看卫生间小巧,但也能实现干湿分离,网红白格子砖+大面积浴室镜使得卫生间的空间感立马提升一倍多,三段式的设计让年轻的情侣在忙碌的早晨也能从容不迫的应对!

淋浴区局部选用灰蓝交替图案的瓷砖做背景,呼应整体蒂芙尼蓝主旋律,设计元素更加的整理统一!
主案设计:陈厚超 设计团队:刘嘉、于佰亮、肖哲
