1、一楼的户型图是典型的枪型户型,带有长长的走廊,在布局上没有太多灵活性; 2、孩子的年龄较小,因此需要留有足够的休闲玩耍空间,设计儿童游乐区。


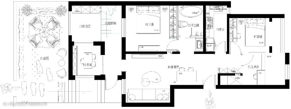
1、一楼的户型虽然不太完美,但设计师认为,这里仍然存在着无限的创造性。 2、二楼的户型较为方正,动线舒适度高,设计为适合业主一家人日常起居生活的空间。 3、空间结构基本没有做太大改动,只在一些居室之间设置了些许隔断,使各功能区相互独立。




一楼的大部分空间主要是做休闲储物区,由开放式休闲区、楼梯间、钢琴区、储物间、衣帽间、卫生间等组成。

整个空间全部设计为定制的“顶天立地”大衣柜,打造出一个浑然一体的衣帽间。衣帽间采用嵌入式灯具,并增加了衣柜内的灯带装饰,实用又富有美感。

中心位置设计一个岛台,方便临时放置一些衣物。衣帽间四周的墙面全部设计为定制柜体,只留中间的走廊位置,合理利用空间的同时,也优化了衣帽间的使用动线。

原来的卫生间不仅没有做干湿分离,洗漱台的设计也太过于简单,柱状式洗手台没有储物功能。 除此之外,卫生间的管道全部暴露在外面,影响美观的同时,也存在着安全隐患。 改造后的卫生间将管道全部隐藏起来,干湿分离,美观大方,实用性满分。

业主一家四口的日常生活空间就在二楼,整体设计风格虽然定为现代轻奢,但从设计手法来说,力求做到简约主义中的极致化布局:极致色彩,极致线条,极致元素。 从视觉的角度看,这种设计是高级又舒适的,让居住者的心灵到达最原始的地方。

二层主要用于日常的起居生活,除了客餐厅、厨卫等空间之外,还有一间古朴奢华的书房。

书房是室内的一大亮点,轻奢的格调搭配古朴温润的书香之气,整个人的灵魂像被洗涤过一样。

书房集中放置了艾先生的一些收藏品,日常在这里办公学习,也是一个不错的去处。


主卧将简约设计发挥到了极致,舍弃床头柜。 嵌入式衣柜与墙面融为一体,刚好将原户型的墙体隔断利用起来,严丝合缝,设计的非常完美。

极素极静的飘窗设计,让业主在喧闹的尘世中,有一处宁静的“禅房”。

与主卧暖洋洋的色调相比,次卧更显素净、雅致。除了书桌柜一体设计,再没有多余的物品。

这间榻榻米室是留给孩子用的,书柜、书桌一应俱全。主色调沿用次卧的配色,宁静典雅,有益于孩子的身心健康。

厨房的改造也是非常成功的,同样的户型、面积,改造前的厨房狭窄又拥挤,为了储物而定做的吊柜更挤压了原本就不太宽敞的空间。

改造后的厨房设计了适当的储物柜,满足收纳的同时,兼具简洁的美感,不会给人太强的压抑感。


二楼的卫生间采取和主卧一样的暖色调,非常适合孩子们使用。三式分离设计减轻“早高峰”的使用压力。增设一个浴缸,让一家在劳累一天后,能够得到彻底的放松。
