【写在前面】 近年,我们拍摄了大量竣工实景,每年实地走访数百户屋主,总结我们作品的特点是:即使同样户型或相似的风格,最终呈现都因不同的屋主气质而独一无二。尤其是设计服务上,我们不会拘泥于单一形式或追逐潮流,无论面积大小、预算高低,我们总能提供量身定制的个性化空间。 家装设计的作用不仅体现在前期的图纸规划,让原本优质的户型实现更完美的可能。家装设计的作用更体现在过程落地,这需要业主对设计的重视与认可。每一套满意的作品,往往都是屋主与服务团队的双向奔赴,而不是单方面的付出。本案就是如此。 项目地址:合肥·国贸天成 项目户型:大平层 项目面积:155㎡ 项目风格:轻奢 装修费用: 基础装修: 14 万元 软装&家具:12 万元 设备&主材:45 万元 电器: 10 万元 【结识华然】 屋主孙女士小区已有数百户业主选择了将新居交付于华然,孙女士在小区邻居那了解到了我们,与此同时她也去市场进行了多方对比,最终还是因公司可靠、设计师细心而选定了华然。孙女士亲切随和的性格与设计师一拍即合,对设计非常重视同时也非常配合设计方案的落地。设计师说“设计效果需要业主共同打造,孙女士的认可与信任,让这次装修事半功倍,双方对成果都很满意。”

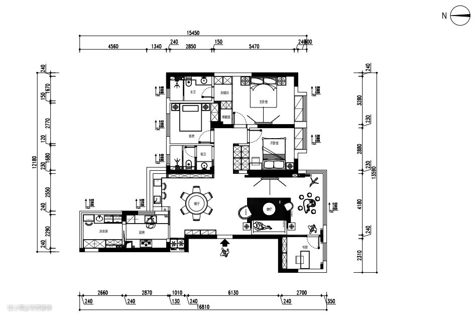
1.原始户型优点很多,南北通透户型规整,客餐厅宽敞,功能齐全。与此同时也存在一些缺陷。 2.户型厨房较小,厨房门洞过小导致采光不够; 3.通往卧室的过道略宽,视觉感受上较为空旷,需要改善; 4.主卧区仅有配置了主卫,缺少储物空间,功能性不强。

1.打通客厅与阳台,使客厅阳台一体化,空间上得以延展,增加采光的同时,视觉也更为开阔。 2.将阳台面积一分为二,凸显阳台的休闲功能,满足业主喝茶小坐等爱好。另一部分面积纳入书房,提高了实用性。洗衣晾晒等生活功能挪至独立洗衣房。 3.将冰箱放在厨房门外,同时扩大厨房门洞做推拉门,北边设备阳台改造成独立洗衣房后,用通透的玻璃移门优化厨房采光。 4.卧室过道增设背靠背的柜体,利用了过道面积增加了储物空间,隐形柜门的设计也让过道视觉效果美观。 5.调整主卧区局部墙体,增设储物间和衣帽间,实现功能齐全的主卧套房;

入户区即是宽敞的餐客厅,吊顶配合筒灯做了金属线条嵌入工艺处理,隐藏设备管道,同时修饰了建筑梁。香槟金的线条与银灰色大理石演绎着低调的奢美。

通往卧室的通道镜头 , 用大面积艺术挂画装饰,为低调素雅的色调带来一丝活力与跳跃。

客厅与阳台打通,橙色与灰色形成了很好的撞色效果。灰咖色调的沉稳与柔和打造出不可替代的清透感。



电视背景墙采用木格栅和岩板镶嵌的形式,与木质储物柜相结合,视觉效果与实用功能兼具。从底部的黑色、灰咖色到爵士白,整体色调统一,层次分明。


阳台并入客厅后,阳光的铺晒让室内空间格外明亮。


整面墙的餐边柜让各类器皿、酒水饮品收纳起来井井有条且具美感。北边窗边户下方设置了台面并嵌入水槽,光线明亮,操作便利。

简洁大气的餐桌椅、静谧的内嵌氛围灯、沉稳雅致的家具,用各自独特的气息和格调,打造出极具品位的用餐环境。

入户门边,采用了成品玄关柜,极具实用性,同时配合装饰画及摆件,也达到极佳的视觉效果


厨房的设计更考虑到业主的生活需求,双1字形橱柜设计符合烹饪的动线,最大的亮点在于扩大门洞同时用透光的通体玻璃移门解决了原本厨房采光差的问题。


主卧的设计依旧保持着沉静轻奢的主调,灰咖色硬包背景墙辅以对称的线条,护墙板上也使用金属条作为点缀。撞色的墙面与灰绿色皮质靠背打造出静谧舒适的休憩氛围。


次卧的背景墙依然采用灰绿色硬包并辅以线条点缀,将飘窗改造成连体桌,可以办公和梳妆,增加了空间的功能性。

公卫采用干湿分离的设计,用固定格栅打造半开放的干区,悬空浴室柜色和谐养眼,低调高级的墨绿色总是让人感到安心。椭圆形黑色面盆与长方形智能镜打造出沉静与高级的质感。

主要材料品牌: 墙面:摩曼壁纸 地面:金意陶瓷砖、书香门第木地板 顶面:铂雅吊顶 橱柜:欧派橱柜 木作:尚佰木门 卫浴:缇派卫浴 灯饰:凯文凯莉灯具
雍珍
