每一位北漂多年的朋友,都想在北京有个家,一套60平的小房子,虽不大,却是漂泊的据点,是这些年你对自己最温柔的馈赠...... 本套案例的业主就是一对年轻的北漂夫妻,在去年他们刚入手了位于朝阳区的二居室,在与设计师的交流中,他们难掩激动,对于新家有着很多畅想和期待...... 我们交谈的过程围绕着“舒适”两个字,在整体空间温馨明亮的基础上,他们最在意的就是如何将有限的空间变“大”,这就得涉及到空间的合理利用和规划,所以从个人习惯以及生活动线来规划空间是重点,避免将珍贵的空间浪费在无效的设计上,既保留出足够的生活空间,又能无限满足一家人的存储需求,看看我们为业主打造的“梦中情房” 业主具体需求: 💡进门需有独立玄关,在此区域需要完成次净衣、鞋帽包、行李箱以及一些生活用品的收纳; 💡卫生间需做干湿分离处理,拥有独立的淋浴间; 💡主卧需要2米大床,足够大,能满足两大一小休息需求,同时需要拥有储物功能; 💡次卧设计需同时拥有老人房和儿童房的双重属性; 💡客厅设计需满足工作、就餐、休闲以及睡眠的功能; 💡整个房屋空间都需要多设计巧妙的储物空间。 根据业主的要求,我们再来分析原有户型条件,二者综合,方能得出最优的设计建议......

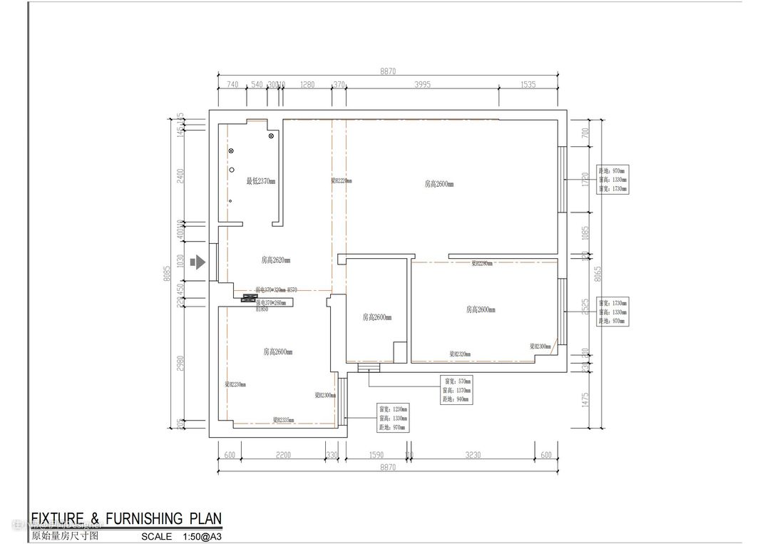
原始户型分析: 优点 ⬇ 😀两室一厅,方正户型,每个房间相对独立 1/ 轻体墙分布较多,此类户型空间利用率比较高,墙体改造较容易; 2/ 窗户分布均匀,采光较足; 不足 ⬇ 😟1/ 入户后室内空间即在眼前敞开,私密性差,玄关对景墙不完整影响美观; 😟2/ 入户门正对厨房门,玄关区域储物不足,卫生间门外空间比较浪费; 😟3/ 厨卫空间较局促,不仅洗衣机、冰箱等无处放置,而且卫生间要做干湿分离的难度加大; 😟4/ 卧室较小,舒适度不佳,全屋储物不足; 😟5/ 餐厅中央区域顶部有一道横梁,不仅影响美观,还压缩空间。 改造后剖析:一个问题对应一个方法,经过我们修改之后的设计图完美解决了房屋的缺陷并满足了业主的要求

👍1/ 入户区域设置独立玄关区,卫生间门所在的这道墙内移,由此门口区域面积增加。利用"Z"型设计,设计多功能柜,厚度800mm,一分为4,玄关鞋柜与洗手区储物柜相背而设,紧邻洗衣机柜,柜体背面设计镶嵌式穿衣镜(如下图) 不仅满足了业主对于独立玄关设置的要求,利用好了卫生间门外空间,还解决了玄关区域储物不足、入户私密性较差、洗衣机放置的问题

👍2/ 卫生间台盆外置,不仅解决高峰期洗漱与如厕的冲突,还增加了淋浴区面积,做到了干湿分离,一卫多用 👍3/ 厨房门改到餐厅那侧,原门洞外移,正好凹出一个位置放置冰箱,还缩短了厨房到餐厅的距离,方便传递菜品,还隔绝了油烟气味对次卧生活的影响,一举多得! 👍4/ 主卧门改到另一侧靠窗位置,厨房门和主卧门对称而立,保证电视墙的对称性、完整性和美观性 👍5/ 电视墙外移,一是满足了主卧衣柜的设置,二是在客餐厅电视墙这面能够有一个位置做一整排柜子,增强储物功能,也使立面更完整性,即使使小空间也不会显得凌乱无章 👍6/ 在面积有限的情况下,餐厅区域设计为多功能区,兼书房、客房、餐厅等多功能于一体,可自由切换,提高空间利用率,满足业主的要求
帮助客户收房时我们拍了照片,由于本案属于简装房,墙面以及顶部会有一些结构上的梁,会影响置物,而且也不够美观。但经过了整体规划和设计,我们把一些瑕疵的地方隐藏规避掉,留给业主的是个简洁大气,并且实用性很强的家 改造前的房屋面积狭小,所以全室就以白色作为主体配色,白色的柜体,白色的墙面,视觉空间更宽阔,就会给人创造出一种干净、明亮的质感,这个时候,再选择一小块区域配上暖色调,温馨之感马上进驻你的心房 小户型去除了繁杂物品,就给人以更多的喘息空间,置身于这样的环境,会在不知不觉间治愈你,“家”的意义由此体现......

墙体与柜体的大量融合,让你的家看上去又“大”又能“装”👍

家居装饰虽少,更得精挑细选。一张带有纹饰多样的桌布,抑或是一件精美奇特的花瓶,为小家增添一份仪式感!

玄关左右均为储物柜,外表看来好像一致,但是内部结构以及物品收纳却是完全不同:左侧以挂衣、帽、行李箱储物为主,右侧以鞋、伞具、小杂物等为主要收纳品 玄关这幅画......是业主的最爱,基于风水知识,又结合了山水生灵的意境,每次踏入玄关看到它,都觉得有点“众渺之门”的意思了,业主也对自己的选品尤为满意!


▲玄关两侧的壁龛空间足够大,完全可以好好利用,像这样放一盆喜欢的绿植,或是喜爱的摆件,回家推开门后,心情愉悦

▲玄关转角就是单独的洗漱台,利用两者之间的墙体,我们做了玄关柜与储物柜,更重要的是将洗衣机和烘干机这俩“刚需”大家伙完美地放置进去了,有效的把整个玄关空间利用起来!
客厅,是全屋的中心地带,一般都是家里面积的使用王者,客厅装修的效果决定了家里的舒适度和功能性。但本案例住宅属于小户型,客厅面积注定不大,要如何规划才算合理? 我们通过删繁就简之后,留下必要的家居设施,通过柜体与墙体融合,来增加客厅的储物。对客厅空间进行整齐划分,大量留白与良好的光线条件一同发力,给人豁然开朗的空间感,最后增加富有巧思的简洁装饰,这样一个集休闲、娱乐、待客、工作等多功能于一体的客厅就打造完成了......

▲我们给客厅选择了跳色系沙发,这使得客厅整体颜色不会显得单调,增添了一丝灵动感......

▲电视柜延续大方整洁的设计,一侧的酒柜,不仅凸显格调,也能作为家中的一个小亮点

▲橙黄色的皮质沙发,舒适又温馨,下班回来窝在上面看看电视,吃吃零食,和家人说说今天发生的事,惬意至极

▲整间屋子采光很好,阳光可以从窗户探入,从客厅一直延伸到小餐厅,连角落里都是日光充裕,这也是一种对心灵的无形抚慰呢

▲因为知道业主想保留更多的空间,所以我们选择的都是些不占位置的小绿植,足不出户也能感受到满满春意......
小餐厅靠墙与过道都可设置餐边柜,最大限度的满足收纳要求。餐厅正对着厨房,传菜十分方便。加上开阔式的设计,放大整个空间,同时还能拥有通透的采光,虽说餐厅面积小,但是完全不会感到压抑!

此处给大家提个醒:选择灯具,灯光尤为重要,好的灯具用手机拍照是不会有频闪的,价格和品质是对等的😊

▲为了弥补墙体与橱柜的单一配色,餐桌布选用了大胆花纹配色,以及独特人像花瓶,生活气息满满!

▲本来在多功能厅这个区域,有一个特别大的缺陷,顶部有较宽、较粗、较低的横梁经过,在整体布局时利用墙体改造弥补了这个缺陷,在餐桌及餐椅的位置的摆放上也是有所讲究

▲在走廊内嵌了餐边柜,一方面放置小电器,一方面进行收纳,给人一种家中的空间取之不尽用之不竭的错感

▲餐边柜的设计被我称为家装档次提升小tip,小电器的收纳尤为重要,尤其是在空间有限的小户型,厨房面积很有限,所以我们要多考虑利用竖向空间,增加利用率

男主人对酒绝对是满满的热爱👍
大部分人对厨房都有着很深的执念,因为厨房承载着一家人的一日三餐,厨房如何设计关乎着家人的幸福感来源......

▲通过墙体的重新布局,增加了厨房的使用面积,多出了冰箱的放置空间。L型的厨房,可与冰箱形成流畅的三角动线

▲厨房动线设计流畅,洗--切--炒按顺序进行,在其间,烹饪佳肴的步骤变得清晰,每一天,你都能在这样的厨房里为家人烹制一道道爱的菜肴

▲厨房中设计1500mm高的大拉篮,可以把很多瓶瓶罐罐或者小零食收纳进去,拉出来后一目了然,拿取方便,是极具惊喜的厨房收纳神器,强烈推荐👍

▲这碗柜够大了吧,不管是来2、3个人,还是4、5个人在家中聚餐,也不用担心碗筷不够用,新家装好之后,你可以随时和朋友说“欢迎大家来我家做客”

主卧以白色为基调,搭配橙色背景以及灰色床体,冷暖结合,定制衣柜加壁龛形式,既解决了储物问题又不占用卧室公共空间。 主卧室选择清浅色调,加之大量采光,营造出明亮又舒适的睡眠空间,部分区域规划为宝宝物品的放置区域,方便满足宝宝到来后一家三口合理的居住使用要求。


▲为了给予业主一个能真正放松的睡寝环境,主卧没有多余繁复的设计或材质,只简单选择了配套桌椅设施,当然桌子上方也有个大储物柜,不管是女主人想坐着化妆也好,还是男主人想坐着工作也好,这方小天地的功能足够满足。

▲ 利用墙角垛子设置长条置物板,主要是为了方便后期宝宝物品的摆放和拿取。
儿童房延续了基本暖墙色,更能体现客户室内风格温馨的需求,在床边设计与窗台相结合的储物柜取代边几,开放格的设计,业主可随时为孩子进行睡前阅读,慢慢享受静谧的亲子时光......


▲设计衣柜、书桌一体化柜体,满足基本生活需求,还增加了孩子私有物品的收纳空间,拥有独立空间的快乐童年是每个孩子的期许

▲当然儿童房还有更重要的一点哟,那就是选材必须环保和安全,墙漆是很好的一种选择,颜色可以选择,时间久了可以随意更换
本案为小户型,本身卫生间面积就很小,如果想要看起来宽敞明亮,那在装修设计的时候一定要选用明亮的整体色调,所以在瓷砖选择上,就定了浅灰色的瓷砖,这样既耐脏又不会有深色瓷砖带来的压迫感啦。

▲洗衣区对空间的需求较小,只要合理安排,就能拥有1㎡的极致洗衣区,本案利用玄关"Z"型设计将洗衣机与烘干机完美“藏入”,方便又不多占卫生间的空间。

▲内侧卫生间储物柜与储物架相结合,有人会问,为什么有了储物柜还要设置储物架呢?当然是因为储物架不会如此强势的占据空间面积,又能有效的增加储物面积啦。

伊闻:结束一天的工作,回到家之后看到业主给我发过来的生活照,交谈间收到业主毫不吝惜的赞美,满满的疲惫感就在此刻消弭,融融的暖意不自觉涌上心间,家装设计师的幸福就是来源于此吧,看着方案出炉,看着设计落地.... 每个人的家都需要用心去建设,而一个好的家装设计就是“用心”的开始,设计师存在的意义就是将业主的梦照进现实...... 我是伊闻,希望为你编织一个关于“理想家”的美梦!
