方案解析
说在前面:原木风家居设计, 没有繁复的装饰,也没有华丽的造型, 但却呈现了一种别具一格的美感, 让生活回归最初的质朴。 极简风也是极受现代年轻人 热爱的一种室内设计风格。 极简,是对设计的高度自信, 极简,是发自内心的美, 设计达到一定高度之后, 不再追求风格, 色彩和元素也不那么重要, 唯有那份纯粹,干净, 依然常驻心间!

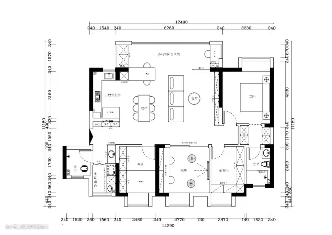
这是原始户型图,户型是4室2厅1厨3卫的结构。业主是夫妻二人居住,不知道大横厅如何设计才能美观实用,希望能够空间最大化,喜欢极简的风格,但是不想太冷清,希望看起来简约温馨,于是设计师根据业主的要求,推荐了原木极简风,业主便是很喜欢。

这是改造后的户型图,1客厅和阳台打通,增加通透性, 2厨房做成开放式的,让空间感最大化, 3主卧带卫生间,设计了步入式的衣帽间。
客厅
客厅电视墙取消了电视机,整面的收纳柜可以作为投影画面,简洁实用的布置,让客厅显得更加宽敞实用。

从这边角度可以看见厨房客厅阳台的交界位置做了一个吧台,偶尔在家做点美味,搭配些许小酒,坐在吧台上细品,情趣而又温馨;

全屋通铺了木纹的spc地板。这也是视觉上温馨自然的关键。spc地板防水,耐磨

客餐厅吊完顶只有265㎝层高,但因为是大平顶,并不显得非常压抑或者层高不够。吊顶四周做了一级叠边(双眼皮)。墙漆全房都是多乐士的白色防水乳胶漆,好清洁,价格也不高。

从这个角度可以看到三联动推拉门后面的书房,平时打开推拉门空间非常宽敞通透,南北通透。

这是从书房的角度看到的客餐厅

餐厅
开放式的厨餐厅,


厨房

主卧
卧室以浅灰色的床头墙,简洁的原木质地板,统一的原木色,让空间显得原始自然好惬意。


书房
这是书房,超长的的书桌搭配吊柜,是一个及实用与颜值并存的家。


