家是温暖的港湾,在你疲惫的时候,可以停下歇一歇;家是生活的加油站,在你无力的时候,可以停下加加油;家是快乐的源泉,在你烦闷的时候,可以停下静静心。 业主情况:老小区申请电梯安装审批下来了,想着把旧房子重新设计翻新一下,长住三个人,夫妻加长辈,女儿在国外工作,偶尔回来,需要三个房间加一个小书房,主人房想要个衣帽间,原客餐厅格局采光通风不好,格局重新设计,地面通铺木地板,喜欢木地板温润的脚感,整体设计以舒适温馨为主。

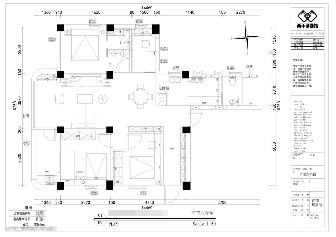
改造前的户型图: 这是本案最初的平面布局,套内面积约92平,可以看到空间的分布不太明确,无效的面积占比相对来说过大,主卧套房面积也不大,整体空间利用率不高,不管是结构上还是原来的布局上,舒适性都不高,储物需求和功能需求远远达不到自己的需求。

主要改动结构的地方有: ①、原用户门是通往步梯口的,后来小区申请下来了电梯,我们缩小卧室打造一条通完电梯的走廊,同时做一面墙的玄关柜。 ②、原是双向开放式阳台,近客厅阳台我们打掉做的封闭式,同时打造了一个休闲区域,近卧室的阳台做的开放式,安装一体洗漱台跟嵌入式洗衣机,打造一个家政的功能区。 ③、原厨房格局打通重新布置,调整了入门方向,以及动线布置。 ④、卫生间墙面打掉,采用推拉玻璃门,保证了跟厨房的整体配色形成同一性,同时做了壁龛以及干湿分离。 ⑤、靠近主卧的储物室打掉墙面,同时增大主卧的面积,打造一个步入式衣帽间,以及格出一个小书房。

▲装修前后对比 经历了一番波折,旧房焕然一新,业主期待已久的现代风也如期而至。

▲这是设计师跟业主完工后的合照,手指竖起来是对设计师以及项目的肯定。也很感谢业主对我们的支持和信任。

这是通往电梯的入户玄关,左侧为推拉窗,解决了防雨问题,还在玄关处新增鞋凳+鞋柜+鞋帽间的一体设计,让玄关的功能性增强。

原用户门是通往步梯口的,后来小区申请下来了电梯,我们缩小卧室打造一条通完电梯的走廊,同时做一面墙的玄关柜。 入户空间设计师采用整面墙设计的玄关过,中间镂空设计放置小物件,以及包包钥匙之类的,同时做的隐形储物柜功能,空间精致又实用。地面采用木地板通铺,起到了空间功能分区的作用。

▲装修前 业主希望整体的风格更加接近现代,配色更加温馨柔和,以舒适稳重为主

乳胶漆上墙,挂上装饰画,营造自然清爽的场景感,一家人放松纾压,让情绪在柔美安宁的绿意中得以舒缓和抚慰。客厅木地板通铺,采用大量低饱和度色调,令整体显得素雅干净,让人放下身心享受生活,体验惬意得慢节奏生活。

电视没有做背景墙,风格上崇尚极简为美,搭配简约得电视柜,不单调也不会过于张扬,巧妙的和空间原木的空旷清冷。

餐厅方向看过去~

沙发选用灰色硬包,硬包自然留缝配合顶部灯渲染整个空间范围,一侧加入绿植点缀,为静谧和平的空间增添一丝生机与活力。

客餐厅阳台一体化,扩大室内的活动范围,干净利落的吊顶设计,错落有致,在空间的体块与层高之间试图寻找一种趣味。


餐厅的全貌,可以看到条纹木地砖跟餐厅的空间相互交融,黑色椅子架构搭配原木色皮质硬包,增加空间的尺度感,让视觉空间达到最舒适。挂上装饰画点缀,整个餐厅大气又不失优雅。


1.5m的餐桌放在正中间,4人位置满足一家四口,四周的动线空间也更加明确,在餐厅的一边定制了通顶的餐边柜,除了可以满足充足的储物功能外,中间有大面积的镂空空间,挂上装饰品,打破空间的沉寂感。餐厅选择了现代真皮的座椅,灰靠背和黑椅腿充满了高级感,腿脚的那点磨砂的点缀,成为整把餐椅的点睛之笔。

▲装修前 原厨房格局打通重新布置,调整了入门方向,以及动线布置。

厨房根据动线做的左右型操作空间,下柜全都做了抽屉,实用起来非常方便,上柜做的储物隔层放置一些餐厨用品,左边动线由洗、炒、盛依次摆开,用起来非常顺手,可以看的出厨房的整体性还是非常强的。 ◘ 橱柜选择无手拉设计,简洁大方,视觉感轻盈,台面选择干净容易打理的白色,为了保证统一感,设计师预留有空间存放家用电器。


厨房这边也是根据整体风格的配色来搭配的,进门处利用对于的空间放置冰箱,之所有选择左右动线,是因为能更好的规划厨房区域。家电摆放的有条有序,看起来也不会突兀且非常舒服。 ◘ 厨房延续空间的整体基调,条形动线使用将光线引入厨房内,保障厨房的敞亮,基础功能可以可以充分满足平日里屋主夫妇的使用需求。


▲装修前 储物功能受限,房间布局受限,物品堆积严重,动线紧凑。

为了满足业主充足储物的功能需求,我们做的步入式衣帽间设计,整体配色跟客厅相呼应,从进门处进来起来一个隔断的视觉效果,衣柜的柜门选择浅灰木材质,把手采用黑线条规划区分,让视觉获得延伸感,使得整个空间显得更加宽敞。


背景乳胶漆上墙,加上皮质软包,配上软体的床,淡蓝色的被套,也给整个空间加上一抹新意!巧妙利用床头右边做的梳妆台,使得整个空间生机映然。

窗帘我们选用的是双层窗帘,绒布窗帘手感柔软,垂坠感较好,特备适合打造现代轻奢的空间氛围。绒布窗帘在清洗的时候不容易掉色,并且材质较厚,有很好的吸音、隔热、保温效果。

▲装修前 空间狭小,布局动线模糊,没有衣柜,满足不了日常的收纳需求。

在次卧的设计上,业主不喜欢过于复杂的装饰和颜色,主要追求舒适度,所以设计师根据业主的生活习惯,在空间的设计上整体更加沉稳大气且舒适,再搭配上吸附灯的设计,营造出一种舒服柔和的休憩环境。

次卧的风格与主卧域保持了一致。 因为空间的限制以及业主的居住需求,我们在一侧加入了单人床,在床头上方做了床头柜收纳柜。 搭配软装的阶段长辈更喜欢浅紫色一些,我们选择在卧室中做了原木元素的搭配,因为环境的主色调一致,就很容易区分软硬装颜色。


顶天立地的白色衣柜造型简约至极,但实用性满分。线条黑边框的柜门设计,巧妙降低了柜门的存在感,完美迎合了整体空间的简约基调。

女儿放顶部采采用吸附灯灯,更好的保护眼睛,也能增加室内的柔和度,营造一个极好的睡眠空间,原木色的面板,现代感十足的定制衣柜,以黑色磨砂线条分隔每个区域,美观也不容易过时。

衣柜我们选择了推拉式,偏浅棕色跟房间整体也很协调,让人眼前一亮,简洁又实用,现代大床与整体风格一致,和谐共奏。也让这里起承转合着生活的精致格调。


▲装修前 卫生间墙面打掉,采用推拉玻璃门,保证了跟厨房的整体配色形成同一性,同时做了壁龛以及干湿分离。

卫生间使用推拉玻璃门隔出干湿分离,增加采光和通透感。安装了智能马桶和浴室柜,拒绝卫生死角,淋浴房做了四周下水设计,脚部不会有积水更加干净卫生,淋浴房利用墙体设有壁龛满足业主对洗漱物品的存放。


浴室柜做的挂墙式一体盆设计,采用白色条纹材质,简洁大方,营造舒适简洁的洗漱空间。

▲装修前 原是双向开放式阳台,近客厅阳台我们打掉做的封闭式,同时打造了一个休闲区域,近卧室的阳台做的开放式,安装一体洗漱台跟嵌入式洗衣机,打造一个家政的功能区。



链接封闭式阳台走出来就到我们的洗衣晾衣以及家政收纳区域啦,尽头处做的嵌入式洗衣机搭配洗手台,上层做的悬挂式洗衣用品,好看又实用,晾衣架也是做的全自动的,今已不仅仅是一种晾晒的工具了,更演变成一种装饰品,成为阳台一道 风景线。晾衣架的各种配件也层出不穷,每一件配件都可以作为装饰品,点缀现代家庭的阳台。


书房我们在靠向一侧上方吊柜满足收纳柜和书籍收纳;下方书桌卡座一体定制,同时满足办公和休闲,留出足够大空间让整体开阔。功能合理,格局更简洁舒适。

