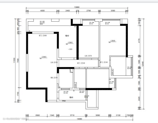
业主现状: 1.新房毛坯,家里常驻人口5人(夫妻,父母,女儿) 2.房子142平方 3.四房设计,注重生活品味 4.喜欢简简单单的设计,实用即可

设计思路: 1、入户拆除厨房和小阳台的墙,使得厨房空间变大,新建墙体预留内嵌鞋柜 2、客厅空间,增加采光和空间通透性。客厅与阳台大通。 3、外卫的窗户打掉,设计阳台门,整个生活功能区划分在一起 4、在收纳功能方面:电视墙设计了整面鞋柜,餐厅设计了整面酒柜,卧室均设计了整面通顶衣柜。 5、在装饰色彩方面:主色巧妙利用黑白灰进行搭配,加上部分的点缀色使得整个家庭氛围既时尚又温馨,使得家庭的氛围感非常浓厚。


随着人们的生活水平提高,人也在不断刷新对设计需求的高度。低调奢华的设计也被很多人追捧,如今社会,促使我们去追求更深层的享受,高贵与优雅的并存,品味与生活的结合。这一些都是“轻奢”设计理念,那如何在‘家具/居’设计中去展现呢?

整体空间显得轻奢文艺实用,灯关的照射下质感十足。让回家的人就有一种释怀感。 客厅的设计,电视柜采用的是一体化设计,让空间正宽敞而大气、搭配轮廓的氛围等,多了一份小资的温馨和格调。



简约而不简单,餐厅的细节充满艺术这些都是设计师在空间里想要尽力去打造的,为的只是让回家那颗心更加舒适自然。无色系中加上一点暖色(橙色)这些不起眼的色调,无形之中成为最亮眼那个了,也算无色系独有的效果吧。


简约是生活的态度,简单是厨房的选择,以乳白和暖白色为主色用黑色线条勾勒出空间立体感,搭配可变色温的灯光,想让厨房不整洁也不行,简约经典的油烟机镶嵌在纯白的吊柜上,赋予厨房空间设计更多灵感与想象。美好的一天从厨房的美味开始,也从厨房的秀色可餐结束。




轻奢是一种生活方式,更是业主的品味凸显,看似简洁朴素的外表,却透漏出一丝“贵族”气息,强调现代与高贵的融合,也是轻奢最时髦的一种呈现方式了。简洁的空间,为主人带了的是轻奢舒适的惬意感。利落简洁的衣柜迎合着卧室暖意的主色调,大储藏空间确保了卧室的有序整洁。




虽说小朋友的世界都是五彩斑斓,天真烂漫的更何况是个9岁的小女生呢?!为了整体房屋设计不被打乱,出于健康的角度思考(颜色越“厚重”采用的原材料化学也就越多)房间设计风格还是以简约为主,色彩也是采用了粉+灰。营造一个温馨而舒适的环境给小朋友,给她快乐的童年。




现如今的“现代”轻奢中,色彩绝大多都是选择无色系+暖色调的搭配。高级感的无色系,简约、大气、令空间质感更饱满。通过灯光、材质的搭配,不着痕迹透漏出屋主对生活的追求。卫生间更是最受年轻人们关注的空间之一,一眼看去心情舒畅,就什么都通畅了!






蜗窝家整装设计师:李坦其
