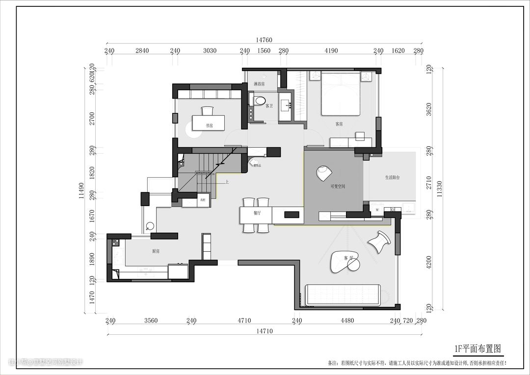
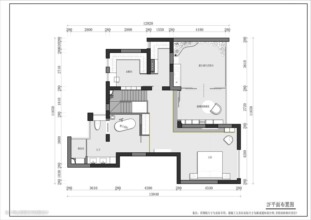
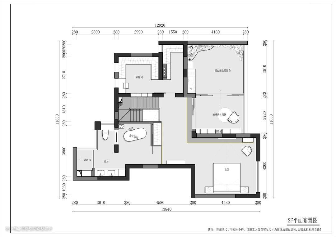
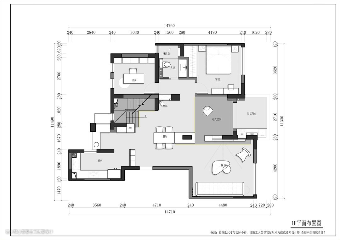
设计理念:业主是一对个性潮人,对于家,早已有了心中的方向,喜欢类似极简、侘寂风格;本案的原始户型是两层带露台,设计师根据户型做了最适合的划分。最后呈现出高级灰色系空间-----不期而遇的精致美好。 户型:三室两厅 房屋位置:白金海岸 使用面积:228㎡ 装修花费:21万 装修风格:工业诧寂风


▲设计亮点▲ ①客厅,从色彩、材质、光影上杂糅生活的气息,于无声中传达给居住者寂静欢喜的氛围; ②没有过多复杂的功能,灰与黑的明暗对比,虽简约,不简单,墙面运用微水泥,纹理质感强,光影效果好; ③悬浮电视背景轻易将空间层次递进,夹杂棕的柔和,绿的生机,折射出居住者喜爱寂静,却也有一颗柔软、热爱生活的心;
整个空间采用微水泥打造实体墙,一级吊顶做无主灯设计,布局黑线条框架联结的辅助灯带,不加任何花边修饰,没有矫揉造作的装饰,只有硬朗利落的线条,钢筋混凝土里伸展出的生命,虽柔弱却有自己坚韧的力量;在灰调空间中,工字拼木地板与棕木打造的实体竖墙融合之下,彰显极简与高级韵律。


沙发背景打造整面深灰微水泥涂饰的墙体,错间融合L型的深棕木纹板,在不同材质的勾勒下,层次井然,铺陈出空旷而充满灵活性和机动性的室内空间。

半墙式的落地窗设计,墙侧是一以贯之的灰调微水泥实体墙,再稍稍点缀一副冷色调的装饰画作,全新的构思和理念让工业风焕然一新,给人带来强烈的视觉冲击和独特感受。

沙发背景墙贴近落地窗缘处,调设一盏白金调打造的壁灯,在整体的冷工业氛围下,注入一抹浅显得活力和趣味。

冷峻的线条所打造的空间中,略微的白与高雅的灰融合对撞,整合出极致的简约与诧寂之感。

吊顶之下,延展出三层空间,半面的深棕木竖板联结一体,而其中穿插出悬浮态的电视背景墙,内嵌式的设计,与凸起的地台共同铺陈出层次感强烈的空间体系。

客厅电视背景墙隔空过道延展出西餐吧台,打造递进式黑色调的大理石台面,竖形独立墙柱将空间隔断,增强层次效应。


餐厅地面采用工字拼木板,无主灯的空间中打造线条十足的餐灯体,双吧台设计,充分满足多人的用餐空间,独立而优雅,简奢气质拉满。

餐厅尽头即在客餐之外独立打造的是可变式空间,稍稍凸起的地台,在统一的吊顶层下,将空间隔断开来,使得整个空间展现出层次更为鲜明的布局。

餐厅侧边实体墙柱中,打造嵌入式的窄长开放式柜格,同元素的黑漆木纹之下,将柜格充满,在无多余修饰的视觉体系下,彰显简约的生活气质;开放式空间打造独立一级吊顶,无主灯设计之下是四盏规则于四边的天花筒灯辅以照明,其下的墙体内嵌大倒角空间,整体的浅灰色调,在大落地窗与暖色调软装饰物中,找寻一丝生活的雅致与盈余。

厨房延续整个空间的极致工业风格,深浅不一的微水泥打造无主灯的空间,其间错落着独断式的木质与铝合金吊柜体,操作台面则之下则打造深木质的底橱柜,充分满足空间的收纳需求,整体融合而统一,冷峻而保守。

厨房之外拓展出一块西厨空间,过道尽头的百叶帘之下,打造L型的洗漱操作台面,白色调的石英石台面打造贯穿一体的木质底柜,功能性得到极大的提升,此外近层独立墙体采用内嵌式的柜格体系,将智能烤具布局于此间,没有冗余繁杂的修饰。

连结上下跃层的楼梯间则稍显温润,在一级地台的延伸角落,巧妙地布局宠物之家,用艳红线条垂拉暖光灯体,在整个灰黑调空间之中,打造小小的温馨之处。



木质纹理打造成梯级体,周围则将透明玻璃围合成安全板,在无遮挡的视角中感受着开放而统一的诧寂氛围。

毫无过多地修饰,灰调的墙柱以及浅咖色调的缓冲板,融合着木质梯体,在几何线条的勾勒中,打造极度克制却高级十足的跃层空间。


开放式的主卧空间,延续一贯的微水泥打造的层次,木质地板为此间烘托一丝自然的脱俗感,无主灯的设计,在铝合金线框勾勒成的置物架之上,点缀一副白边艺术画作,饱满之中的艺术气息,彰显出尊贵的质感。


多维的吊顶面,突出床头背景的大倒角实体墙设计,在墙体中布局黑色线条勾连的灯带体系,再增添一盏天花筒灯辅助照明,将空间的灯光体验提升至极致;在此基础之上,打造一整面的大落地窗采光,自然与人工打造的空间,控制与随性切换,两极处,享受生活的韵律。

次卧设计一级吊顶,延展开深棕木质的墙板,与床头背景墙融合碰撞,丰富空间元素,营造舒适的休憩环境。

干净利落的床头背景墙侧定制一顶到柜的设计,无把手的推轨收纳柜门,与整体的空间协调统一,无过多修饰,在极简之中创造生活的格调。

独立的书房空间,打造两面折页窗体,对称的设计元素,使空间得到充足采光的同时,和谐统一,能够找寻到独属于主人的生活规律,隔断墙之间摆放一张木质书桌体,满足生活学习、办公的需求,一盏铝合金属线条吊顶灯,将空间的灯光氛围提升开来,安适而静谧。

打造超大范围的三段式卫生间,独立马桶处在墙柱之间设计上下一体的窄框黑边长虹玻璃板,规则的矩形之中感受无规则的立面,确保私密性的同时,张扬而克制。

深灰调的大理石墙砖围饰出主空间的范围,无修饰无冗余的强线条感之间,营造极致的工业风之感。


独立的盥洗台打造双台盆设计,半实体墙柱围合此间,大理石台面之下布局木质柜体,满足生活收纳需求的同时,增添少许的自然韵味。

