95后会喜欢怎样的婚房? 黑白灰+极简风 高级美+实用性 无主灯+大白墙 组合柜+多功能 屋主 · 需求: 屋主是一对95后小夫妻 准备翻新两居室作为婚房使用 原本只打算局部调整 思考再三后决定做全屋改造 比较看重空间的时尚感 希望软装搭配上点到为止 房屋 · 信息: 坐标:上海闵行区 面积:83㎡ 风格:现代风格 布局:两室两厅 居住:新婚夫妻

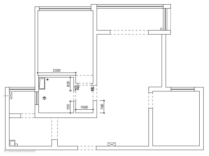
原始户型图 【改造前】 × 室内面积不大,收纳空间严重不足 × 进门后就是厨房,缺少玄关过渡区 × 阳台窗户边框多,遮挡采光和视线 × 整体风格和设计,缺乏现代时尚感

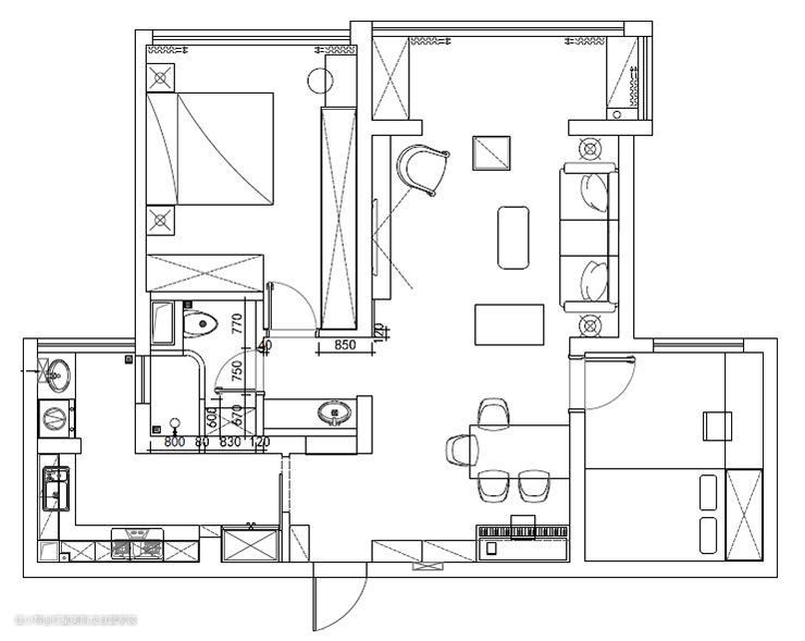
平面布置图 【改造后】 √ 拆除厨房双移门改为单侧移门,利用一半的厨房门洞新建墙体,并靠墙设计到顶悬挂鞋柜,中间镂空可放随手物品,进门处实用性大增; √ 靠近入户门的餐厅一侧墙,做组合型定制柜,开放格与收纳柜藏露有致,适当留空提供更多可能性; √ 从进门处开始,沿床尾墙面额外定制4米长通顶衣柜,主卧衣柜整体超6米;窗前不足2平米的空间,设计为梳妆台; √ 卫生间墙体整体内移40cm,放大干区面积,洗手台留更多空间,用于放置女主人的护肤品; √ 厨房阳台改为洗衣房,次卧采用榻榻米+衣柜+书柜一体式设计,增加功能区,提高利用率。

玄关改造前

玄关改造后

餐厅改造前

餐厅改造后

客厅改造前

客厅改造后
零功能变收纳巨无霸 玄关在满足功能和收纳的基础上,做到最大程度的简洁。改造前“开门见山”VS改造后“收纳巨无霸”,设计师凭空造出回家的“仪式感”。


除了留足私密性,左侧的通顶鞋柜中间和底部特意留空,分别用来放置随手物品和经常穿的鞋子,兼具实用和美感。
极简留白为空间做减法 留白不是放弃,而是取舍。设计师通过采用“少即是多”的手法,多处运用笔直的线条,进而增加空间的时尚感。

改造前-客餐厅

改造前-阳台 客厅与餐厅之间没有明显的分区,仅依靠吊顶简洁的造型,便轻松规划出客餐厅的一致性和层次感。

客厅与阳台地面同样采用没有“边界”的处理方式,地砖通铺有效缓解区域的局促感,让空间更加舒展。


留白,并非一味的空出区域,而是在简单中找到秩序,塑造空间的轻盈感,正如这长长的悬挂式电视柜,延伸视线,让面积略小的客厅更显宽敞。

浅色调蓝绿沙发作为点缀,使客厅拥有了黑白灰之外的跳跃和活力,明暗交织,错落有致。

收纳柜的N种组合方式 一组柜,就是一个世界。进门右手区域便是餐厅,设计师利用墙面定制组合式收纳柜,柜门采用无把手按压式,视觉上清爽利落。

改造前-餐厅

坚持有藏有露的收纳原则,一套柜子三种方式:封闭、半透明、全开放,细节规划严丝合缝,实用性和舒适度更高。

大理石餐桌+皮质座椅,为餐厅添上一抹高级雅致的韵味,利用不同的材质,丰富用餐氛围感。

挪空间打造宽敞洗漱台 厨房采用黑白灰色调,墙面不规则、斑驳的纹理营造空间的个性基调,同时提升了整体质感。

洗手台做加长设计,延伸40厘米,台面拓宽后,日常生活的便利性大大提高。浴室柜颜色与客厅沙发一致,空间色彩少而精。

洗手台做加长设计,延伸40厘米,台面拓宽后,日常生活的便利性大大提高。浴室柜颜色与客厅沙发一致,空间色彩少而精。
6米宽衣柜堪比衣帽间 无主灯设计,增加空间的视觉高度,顶面不做任何装饰,明亮、温和又素雅,任凭四季变换,日夜更替,这里始终安静如初。

黑色金属线条灯垂直落下,拉伸视觉之时,与衣柜门把手相呼应,简到极致,便是最高级的美。

次卧是整个家的储物担当,作为不常居住的房间,它的功能以收纳为主,榻榻米+衣柜+工作台兼具多种功能,不做任何多余修饰。
改造前-次卧



设计师有话说: 每一个空间,都是居住者生活方式的体现,正因为如此,每一个家的布局、意境、氛围才有所不同。结合新婚夫妻对家的向往,本案运用黑白灰勾勒出极简现代空间,弱化墙面装饰,采用大量留白的设计手法,让空间因为“空”,而拥有无穷无尽的想象力。 本案设计师:美凯龙家装设计师金丹凤
