业主需求: 1.有多人聚餐的需求,希望一楼空间设计开放式,有宽敞的宴客区。 2.客厅为竖厅,原生采光条件较差,希望通过装修改善整个空间的采光。 3.家里杂物较多,收纳能力需要得到保障,整体空间简洁又不失设计感。 设计理念: 为了让整个空间视觉上宽阔,选择多保留开放式空间,尽量减少闭合的功能空间,从各处细节中体现设计的人性化。

一层平面布置图

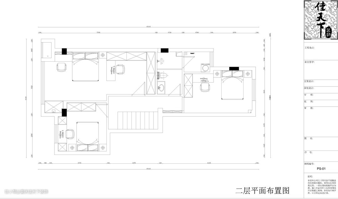
二层平面布置图


整个客厅以浅原木色为主搭配白色吊顶,采用无主灯设计,层次丰富的吊灯、暖色温的灯光、多个光源让空间即有氛围感又不失明亮。

黑色电视墙与浅木色主调的搭配,浅灰色的沙发和橙色抱枕的搭配,黑白拼接的茶几的搭配,颜色搭配上体现出设计师的细节。



使用大叶植物做点缀,在冷淡的主色调中增添自然的色调,多上几分清新气息,更显得优雅与格调。

运用LDK一体化的设计,将客餐厅和厨房空间打通,在一定程度上也增加了采光面,同时也增加了空间的通透感。 圆角岩板餐桌,橙色和绿色的撞色高脚餐椅,空间更加活泼,细脚家具减轻家务难度。

U型厨房工作台,满足三人同时在厨房工作,吊柜和地柜的结合,厨房的收纳能力满分。中间的墙面安装隔板,沥水架,可收纳小件物品、调料等,空间最大化利用。

主卧整个空间以莫兰迪色系为主,温柔的颜色搭配更适合卧室的需求。

放弃传统的鸡肋床头柜,定制开放式与封闭式结合的功能柜,上方可做书柜、展示柜,下方收纳物品,空间更整洁。

主卧定制了L型的超大衣柜,满足女主人衣物及家中物品的储存。柜体连接定制了办公桌,方便业主在家办公的需要,充分利用了空间。

次卧墙面采用清新的天蓝色,整个空间瞬间明亮了起来。

靠窗定制书桌,保留窗户的位置,不影响空间内的光线流入,也保证了学习工作所需的光线。

进门定制到顶衣柜,满足日常衣物的收纳,搭配黑色长拉手,使用方便。

客卧设计更简约,衣柜和书桌结合,空间利用以实用为主,没有多余的累赘。




卫生间干湿分离设计,用玻璃隔断分开了马桶和淋浴区,功能区明显,方便又实用,玻璃隔断空间更通透。

阳台位置嵌入洗衣机,上方定制柜体满足收纳需求,鸡肋空间瞬间得到有效利用。

楼梯下方空间设计成储物区,外观上更佳,同时也满足业主的增加收纳空间的需求。

