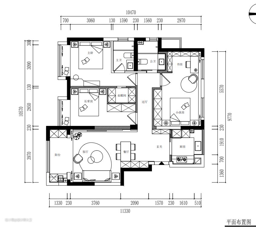
项目地址 / Address:宝龙世家 风格 | Style:现代风 项目面积 | Area:113㎡ 三代同堂的居家模式,小孩学区房。在空间划分清晰的基础性上,还在每个区域都设置了专有的收纳空间,避免了把一整个储藏间塞满而找不到东西的情况发生。公卫向北房间借用空间,扩大公卫面积,以便老人与小孩使用公卫的舒适性。小孩房与书房打通,增加小孩房的趣味性与舒适度。主卧借用老人房的部分空间,做了一个女主人非常满意的衣帽间。整体在黑白灰、米茶咖这六个基础色的基础上,加入了克莱因蓝这个跳色,让整体空间多了一份趣味。

客户喜欢现代黑白灰+轻奢。第一次见面的时候,由于客户对自己的需求很茫然,加上客户时间紧,导致客户和我没有聊到一起去。男主人是比较注重工艺的,自己去我们工地参观之后,主动联系我们,我们再次去到客户房子那边碰面沟通。经过上次的大致了解,我发现客户非常注重小孩的成长空间,原先开发商保留的书房空间主要也是提供给小孩使用。于是我把北面两个卧室打通,变成小孩房+书房这样的卧室套房,这个方案让客户眼前一亮。
入户视野是走廊区域,利用厨房外墙跟过道做了一面的玄关柜,加入装饰灯带的设计,提升了储物空间,凸显空间高级感。

客厅是家人沟通的主要空间,屋主喜欢干净简单一些的装修,带一些青蛇的元素,设计师在设计上提倡简约,在设计上提倡简约,把空间元素、色彩等装饰材料缩减到最小,达到去繁就简的效果。

原有的阳台包进客厅,让原有的空间得到延伸,空间视野开阔。

黑色皮质沙发凸显了空间的现代感觉,墙面黑色木栅加木饰面做造型,层次分明呼应。

搭配绿植,给室内增添一丝的生跟活力


客厅没有放电视柜更好的放大了客厅空间,电视背景墙上下采用了实木的木栅格直接帖原始墙面,电视底下用人造大理石地台代替电视柜,有前后错层形成悬空效果。

餐厅就在客厅的另外一侧,一体化的设计,电视背景墙延伸至餐厅墙面,更有空间感。

另一侧餐边柜,上柜用来展示,放置红酒,酒杯等等,中间台面用来放置厨房的小电器等。

因为是三世同堂,所以需要一个宽敞的收纳空间,厨房做了U型布局,放置了大的冰箱,各种厨房电器,还有很多的收纳空间。

主卧以灰咖色为主色调,大气明朗的直线线条,给人舒适沉稳的感觉。

背景墙做了灰色的硬包+木饰面,跟房间整体色调很搭,颜色有助于睡眠。

借用次卧的部分空间,做了一个满意的衣帽间。

次卧留给父母居住以灰色木色为主,简约大气,功能上保留应有的收纳空间。

小孩的房间跟书房打通,增加了空间使用的舒适度,在整体灰白的基础上加入了克莱因蓝色的跳色处理,让整体多了一份趣味性。

业主非常注重小孩子的成长空间,原来的书房空间也是要留给小孩使用的,最开始小孩房+书房这样的设计方案也让业主眼前一亮。

公卫向北面的房间借用空间,扩大了公卫的面积,以便于一家人使用公卫的舒适性。

主卫的设计时尚,根据业主的需求没有做传统的淋浴。而是选择了浴缸。

