本案例业主通过多年的奋斗打拼,在城里买了新房子,房子面积很大,后期打算把自己的孩子和老人都接过来一块居住,在设计风格的选择上,业主更加偏向于一种简约的设计理念, 因为要考虑兼顾到三代人共同的居住感受,所以现代简约风是最为适合的一种风格。 根据业主要求,设计师采用现代简约风进行设计,在房间内大量使用了黑白灰的配色,黑灰色大理石岩板使得室内环境显得整洁又干净,在卧室搭配了蓝色等多种不同色调的墙布,使得室内空间也不显色调单一。 在整体设计元素搭配上,设计师去繁就简,无论是哪一个功能区都采用大量的留白处理,黑金色装饰条作为跳跃式的点缀,保持了室内酷意十足的现代感。

为了提升一楼整体面积,设计师将厨房和餐厅两大功能区移到了地下,这样也使原来厨房较为狭小的空间问题得到完美解决。 水吧和开放式的书房都和客厅进行了整体综合设计,让主要室内活动空间也融入了书香和休闲气息。

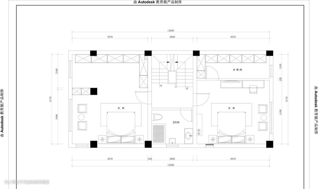
主卧超大面积的衣帽间配置能够大大提升衣物储存空间,提升生活质量。二楼卧室的整体布局清新爽朗,套间的配置也让每一个小功能区都得到了更好的区分。

在室内空间划分上设计了阳光房,可谓是匠心独具,因为有了休闲阳台可以大大提升生活品质。

黑灰色大理石瓷砖进行地板的通铺,让地面看上去面积更显辽阔。框架式的吊顶正好将中央空调做了内置处理,沿着吊顶四周 圆形筒灯的配置也能够起到良好补光作用。 向阳处大大的落地窗赋予了客厅更高的颜值和更霸气的外表,温暖的阳光透过薄薄的轻纱打到室内来,也为客厅镀上一层朦胧的色彩。

皮质沙发表面更显光滑,积灰更易打理。沙发选用浅蓝色和砖红色撞色的处理,让视觉上的观赏度更强,新鲜亮丽的色彩也让客厅显得酷酷的。

黑色金属质感墙口包边色调深得纯粹,深得高雅,也更显一种奢华质感。

在简约式的整体吊顶中间又做了一处圆形吊顶的个性化设计,在下方灯光的映衬下显得俏皮十足,突出了餐厅的与众不同。 同样是两面墙壁都设计了大型窗户,餐厅的采光程度一流。圆形餐桌采用黑色色调,看着低调沉稳,仿佛能够看到入住后一家人围在桌前就餐其乐融融的景象。

在二楼通往三楼的楼梯处,每个人都能感受到一种大气的设计理念。楼梯采用和大厅同种色调和材质的大理石地砖,使得整体性更强,效果也更好看。

为了避免空间设计的单调,在上楼处还设计了壁挂式的电视机,可以随机播放一些电影片段,增添室内人气。 两侧的玄关柜也能够增加储物空间,提升空间利用率。中间的大量留白空间能够作为后期孩子娱乐的天堂,跑跑跳跳的空间很大,同时要注意安全。

整体的室内搭配酷酷的,品酒室更要酷意十足。靠墙打造了对称质感的酒柜,大玻璃门、内嵌式灯带、亚克力高光板白色柜门、黑色柜体,种种轻奢设计元素良好搭配,让酒柜不仅是一个储物工具,更成为了不可或缺的装饰物。

深棕色木地板让主卧看上去暖暖的,更有休息的感觉。米色、深棕色护墙板双色搭配赋予背景墙更强的层次感,垂线式的床头灯也是打破常规的设计理念,显得更加时尚。

浅蓝色的墙布让次卧的整体氛围显得轻松惬意,没有过多的其他装饰品,大量留白设计也更加整洁简约,给人充分的想像空间。 室内留有充分的活动空间,床尾处设计的写字台能够提供办公空间,很是实用。

白色大理石瓷砖形成卫生间大部分面积的铺设,格调更显清新。小部分灰黑色撞色格子样式的墙砖也赋予了卫生间更强的变化色彩。 靠墙角45度采用玻璃隔断框选出淋浴区,不占用很多面积,地板做了防滑处理,更显细节设计用心。
所用材料:黑色大理石地砖,白色乳胶漆,饰面板,蓝色墙布等
