项目地址:江苏省苏州市 常住人口:3人,业主,母亲,外婆 房屋情况:600m²独栋别墅 设计风格:中式设计 装修时间:从设计-竣工入住约1年6个月 理想的生活是将挚爱囊括其中。与大多数90后男孩不同,本案业主不追求现代的潮流文化,反而对东方文化更加情有独钟;与金融学的理性逻辑不同,业主更看重浪漫、柔美的表达,希望自己的新家形神兼备。他希望追求的生活是有厚度和宽度,能外延到比俗世更高的层面。 业主从事金融行业,是土生土长的苏州人,从小在姑苏城内长大,对于苏式的园林有着不一样的感情,在房子的装修风格上,也向设计师表达了偏爱中式风格的意愿,并且全程参与了新家的装修和设计,希望打造一个都市青年眼中的东方住宅。长住人口是3个人,业主和母亲、外婆生活在一起,一家三口都很热爱中国传统文化,尤其是业主,对于传统的中国道教也非常有研究。所以设计师根据其喜好,为其量身打造了这一座拥有东方独特韵味的诗意居所。 【业主需求】 1、喜爱中式装修,整体风格以传统中式为主,营造独特多俗的品味; 2、庭院需要重点设计,打造中式园林式景观别墅建筑; 3、别墅占地面积不小,希望能够重新规划动线轨迹,让家庭成员的活动动线更加合理; 4、琐碎的墙体比较多,小空间划分太杂乱,希望能够让公共空间看起来宽敞、明亮; (地下一层平面图) 设计师在地下一层设计了采光天井,一旁的空间规划为阳光房,兼具书房和休闲区的功能,剩下的空间预留作为休闲使用。

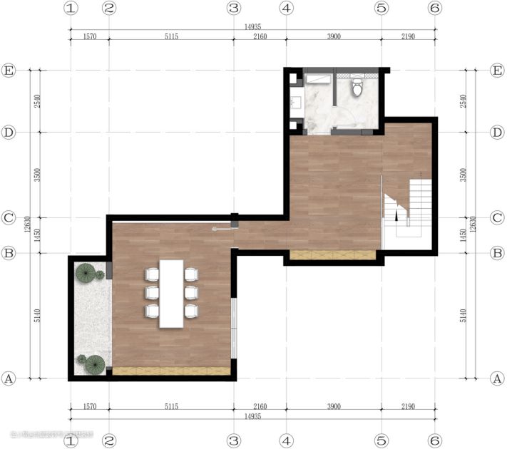
(首层平面图) 首层规划公共区域以及外婆的卧室,东侧为我是套间,带有独立的衣帽间和卫生间,楼梯西侧是公共区域,客厅和餐厅厨房都规划在这片区域。

(二层平面图) 二层主要是母亲的卧室套间还有客房。拆除了不必要的墙体,打通空间,作为母亲套房里的衣帽间和洗手间。

(三层平面图) 三层是业主自己的私人空间,配备起居室和卧室套间。起居室可以作为休闲使用,并且放置了书桌也可以作为一个工作区域来使用。

【户型规划】 1、设计师将本案例定义为中式风格,将传统的东方文化和中式元素融入房子的设计理念中,打造一处有品位、有内涵的私家住宅; 2、庭院的部分设计师做了重点设计,中式元素中又融入了日式庭院的风格,规划了庭院的景观设计; 3、设计师重新规划了房子的动线,地下一层和首层作为会客区域,2层3层作为家庭成员的私人空间,达到动静分离的效果; 4、设计师拆除了首层的部分墙体,餐厨区开放式设计,空间采光良好,在视觉上看起来宽敞不少;
别墅的门口种植了绿树,树影随风而动,两只汉白玉石狮端庄而立,踏上几步台阶,推开“玉京府”的大门,穿过悠长的廊道,走进前院,顺着竹道往前走,中式和日式美学一体的小院豁然出现在了眼前,门前流水,白色砂砾均匀铺就,水声潺潺,别有一番桃花源的世外气息。

竹轻而不佻,品格高雅,业主和家人平时就偏爱独坐幽篁的清静。因此,从前院到中庭,设计师特别设置了一段竹林步道。虽然不算茂密,但也有了“初极狭,才通人,复行数十步,豁然开朗”的悠然意境。

竹林之后可见中庭的小桥流水,静坐于观景台上,看树叶兀自飘零,听竹叶婆娑轻响,以一院观四时,感受随季节、气候变化而变化万千的景象。走廊的设计上,以江南瓦片,沉稳木质,自然石材进行装饰和点缀,将传统的庭院特色全面的还原,江南月下,宁静夜晚,自然惬意。

亭台楼阁静立四方,绿植青草点缀其间。东方的婉约柔美在空间中酝酿,心绪随着自由的气息延伸,烦躁随流水悄然游向远方,一份宏大舒适的畅快之感由内心在体内扩散,闲适愉悦的心情也随之而来。

推开门,穿过绿意盎然的悠长绿竹廊道,一方桃园圣地般的小院映入眼帘,设计师为一家人打造的浅水湖面以及砂砾景观石,湖底利用鹅卵石通铺,清澈干净,白色沙砾铺就的蜿蜒小道,潺潺溪流叮咚作响,意境悠扬。

穿过小院,走进玄关,映入眼帘的一方青铜大鼎,静立在石台上,散发着古朴厚重的气息。它让人感受到了拥有深厚底蕴的东方文化气息,经历了千年岁月依旧璀璨耀眼,同时也彰显着业主独特的非凡品位。

门框全部采用统一实木的材质,色泽饱满,木纹逼真,木质的材质不易开裂变形,整体风格统一和谐。顶面利用一盏射灯作为重点照明使用。方鼎四周用玻璃隔开,四角都有照明灯,无论从哪个方向看,都可以展现最佳的观赏状态。

进入客厅,木质材料贯穿整个空间,公共区域遵循中国古建筑的营造制式,以中轴布局,从榫卯结构铸造的人字脊顶,到绿意延伸的墙面,再到坚实的木质地面,将东方的传统人文重现,给人沉稳庄重的感觉,东方的儒雅气质在空间中酝酿。以徽宗的《瑞鹤图》为背景,给空间的意境融入了更深的层次。

设计师将客厅两面的窗户打通,通过落地窗来增加空间的采光。从玄关到客厅,从浅绿到墨绿逐渐过渡,绿色成为空间的主色调。深绿色的墙体与木饰、檀木家具搭配,充分奠定了“木”的基调,为整体空间增添了浑厚而又大气的客厅氛围。

室内的每一处景色都和室外的自然景色相互连接,木质材质充斥在客厅,彰显中国人的沉稳与低调。墙上挂了一幅泛着岁月痕迹的画作,加上一株单峭的花枝,客厅多了一些艺术气息,丰富了空间的层次,颇有意境之美。

家具的摆放遵循中国传统的对称式设计,两侧分别摆放一组檀木座椅,椅子造型轻盈别致,是皇宫圈椅的造型,继承了明式精髓,规格远高于普通圈椅,气派威严。配套的小茶几与椅身相似,器型工整,造型洗练。

客厅的茶几也是实木的材质,地面上铺了一张舒适柔软的地毯,很好的减少了噪音,中和了端庄大气的家具带来的严肃感,空间多了一些舒服、放松的气氛。

单人座椅的扶手处的木纹雕刻工艺做工精巧,造型优美,灵动飘逸,栩栩如生。

在小茶几上摆放一株绿植,搭配中式家具,东方的意蕴中又多了一些自然、灵动的气息。

设计师将餐厅空间分为中餐厅和西餐厅。业主作为地道的姑苏人,在纷繁叨扰的现代生活中,唯有美食与爱不可辜负。中餐厅自然是同样以中式的装修风格为主,木质的餐桌餐已极具质感,餐桌是圆桌的造型,更符合一家人围坐在一起用餐时的温馨场景。吊顶也是木质的材质作为装饰,搭配一盏照明吊灯,上面的空间饱满且有层次。

除去木质材质的装饰,墙面使用了大面积的蓝色作为装饰,在沉稳低调的中式装修里也是一抹亮色的存在,避免空间因为木质的使用而过于单调昏暗。蓝色与白色相间的墙面,增加了清新、干净的整体格调。

在楼梯间和中餐厅添加了推拉式木栅门模糊分割,在区分了中西文化的同时,又将空间串联为一个整体,使空间更加宽阔舒适,可谓极尽巧思,个性十足。墙面和客厅一样挂了同系列的挂画,增加空间的艺术气息。

中餐厅则偏向时尚现代的风格。和操作台、西厨都连在一起,动线合理,做完饭方便放置饭菜,人少的时候在这里简单吃个饭也是不错的选择。

中餐厅是方桌,搭配四把简约舒适的餐椅,一旁的落地窗给餐厨区带来不错的采光环境,大理石的地板方便清理,坚硬耐磨,彰显了时尚的现代气息。

和餐桌连接的岛台作为生活的核心区,可以观看庭院之景,也可以一日三餐,办公闲谈。业主早些年在国外留学的时候,最想念的就是母亲做的饭菜,离家了才知道原本平常的饭菜才是无比的珍贵。

作为中国人,尤其是喜好浓油赤酱的苏州本地人,平时业主自己也喜欢做饭,所以厨房的设计也是家里的重点区域。西厨家里最有现代气息的地方,整体黑白灰与绿的色彩搭配,展现出设计的巧妙之处。开放式的空间,朝南的落地玻璃窗保证了整个西厨的宽敞明亮。狭长的岛台和四人小桌的组合,是家里人彼此沟通互动的中心。

这里的背景色调和会客厅保持一致,形成空间与空间之间的连接和和谐。在这里,主人有时候也会进行办公,四处草长莺飞的景色,让主人的心情更加安静。

看似整洁简单的西厨空间,其实大有乾坤,西厨上边的灰色墙面全部做了隐藏壁柜,不影响美观的同时又多了很多收纳功能,方便放日常用的厨具。冰箱也放在西厨一旁,硬装的时候就预留了冰箱的空间,是内嵌式的位置。

一字型的操作台动线合理,空间足够业主平时做饭使用。在墙上预留了3组电插孔,平时使用厨用家电时在厨房就可以启用。

主卧是一个套房,功能齐全,分为卧室、卫生间和衣帽间。整体的设计风格也是按照中式的装修做的,床头背景铺贴了壁纸,单侧是孔雀,正中的是百鸟之王凤凰,也是吉祥的神鸟。窗前摆了一张蓝色沙发椅,躺在这里可以尽览楼下美景。

卧室的吊顶是古式人字顶,古典的架子床作为主卧的主要焦点,将传统的东方神韵淋漓展现。床头两侧挂画、地面铺了水墨色的地毯,整个空间表达出古时文人雅士的高洁之姿。

木架床两侧的遮光窗幔非常实用,白天在床上小憩的时候可以拉下窗幔,遮住强光;起来的时候方便收起,不用去拉动卧室的大窗帘。

床头柜和架子床是同一系列的木质材质,两个抽屉可以放一些小物件。上面摆放一盏床头使用的台灯。靠墙一侧空出的位置放了一个木质的挂衣架,主人回到家的衣物可以挂在挂衣架上,多了一些收纳的功能。

全景落地窗给主卧不错的采光环境和视野。放在窗户边的蓝色沙发椅以舒适为主,颜色清新,给卧室增添了活力。休息的时候躺在沙发椅上欣赏窗外美景,好不惬意~

套间里的卧室单独设置了一个简单的推拉门,和卫生间、衣帽间有个简单的分隔。通铺的木地板触感温润,纹理自然,和整体的色调搭配协调。

次卧是母亲的房间,设计同主卧类似,以简洁舒适为主。母亲的房间以手绘的素色牡丹为背景,喜鹊停于枝上,预示着吉祥如意的美好祝愿。让自然惬意的氛围得到进一步的传递,打造东方美学之质感。

同样的人字型天花设计,彰显空间的尊贵和庄严。在母亲的卧室设计中,为了让生活更加便利,设计师将书房和休憩融于一室,规划在窗户边,这样可以保证书房区拥有不错的采光环境,可以满足日常的需求。

母亲平时喜欢练字,为了让空间的文化气息更加浓厚,设计师在墙上挂了一副字,下面则是一张木桌,做装饰使用,在书房区正对的位置,一抬头便是这幅字。一旁是一张舒适的白色单人椅,方便平日在房间里休闲。

卫生间的设计和材质彰显现代时尚的气息,干湿分离的设计,利用透明玻璃隔开马桶区域和淋浴间,方便日常清理卫生。暗红色地砖、黑色墙面、深蓝色橱柜、白色洁具,四种颜色的搭配使卫浴间成为颜色碰撞最多的地方,却又完美地融合在一起。

镜面是8边型的造型,几何感十足。洗手台悬空设计,离地面30公分高,防潮的同时平常打扫起来也方便很多。洗手台是白色大理石的材质,墙面是黑色大理石,黑白的反差色搭配让洗手间看起来更加高级和轻奢。

书房以沉稳的色调进行点缀,业主酷爱读书,读书可以让人心静,自然也就促成了主人的性格。从温婉休闲的沙发区,到错落有致的藏书架,主人内心和空间获得情感上的联结。在靛蓝色的空间沉浸下,书房的温情变得更加温暖。

在窗户的设计上,设计师融入了布幡作为点缀,将传统东方的雅韵进一步提升,体现主人对传统文化的热爱。设计师格外关注室内室外的联动,光影的渗透,穿透过纱幔,将光入屋内……空间的东方美学意识油然而生。

书房里装饰的物件也不少,沙发一旁摆放的瓷花瓶是几年前业主在海外淘回来的,一直非常珍爱。还有喝茶用的小茶具也是业主使用了很多年的物品。吊顶做了木制包边,无主灯设计让书房在视觉上没有遮挡,空间彰显开阔宽敞的格调。

一张宣纸,两方镇尺,东方文化的精髓就这样填充进这方空间,注入我们的骨髓之中,传承着东方文化,延续着东方精神。

深褐色的木质书架桌椅、淡淡书香,氤氲出了书房厚重沉稳的氛围,与浓厚的文化气息。一座香炉,散发着淡淡清香,抚平了我们焦躁的心境,让生活归于舒适祥和。

茶室顶面延续了客厅的人字顶,一张“上善若水”的字画诉说着主人的心性和品质。盛唐时期最常见的朱砂红用在四周墙体,却没有带来红色应有的躁动,而是更让整体空间趋于宁谧。两侧的落地玻璃窗将中庭的雅致风景纳入室内,无论是品茗、阅读还是写字,满目皆自然。

私人订制的落地柜用来摆放日常的藏品和书籍,增加了展示和存储功能。

窗户一旁的位置比较空旷,所以设计师在窗边做了景观装饰,一张方桌,一瓶植物,清新淡雅,气韵非凡,很好的点缀了书房,丰富空间的层次。

茶室正对庭院,绝佳的位置让身处茶室的家庭成员可以随时欣赏庭院的景色。

阳光房位于地下一层,设计师做了采光天井,让太阳光照进地下室,空间明亮舒适,很好的避免了地下空间昏暗阴潮的烦恼。整个空间大面积的墙面都选择了绿色,也是为了让地下室看起来更加清爽通透。

阳光房是业主休闲娱乐的地方,这里用来接待朋友或者日常办公都可以。自然绿色的墙面搭建起空间的格调,采光天井下面做了景观装饰,利用松树和白色小石子搭配,空间彰显独特的东方美感。

本案设计师:李亚芹_ 荣获奖项: 中梁天御设计大赛一等奖 庐山魔鬼训练营炫色餐厅金奖 中茵.御墅湾杯设计大赛二等奖 设计理念: 艺术来源于生活,而影响生活 设计以人为本,化繁为简,并取其精 设计家是改善生活的策划者,也是潮流的创造者。
