项目坐标地址:北京市大兴区 屋主年龄:27 设计时间:2021-5 竣工时间:2021-10 女主人回到家时,盼望透过承载暖度的现代家具,将那段温馨放在眼前,女主人说,很喜欢大自然和艺术,回到老宅子后,选定居住在这里、庭院里有小池流水,五环边是闹中取静的地段,延揽外部绿意,打造能沉淀心绪,又具有生命力的LOFT家,期望生活藏有撼动于心的微小感知,由木质调与深浅不一的蓝色系。 微风轻拂,以简约线条、活泼温暖的色系,使这套民宅于宁静间带有活跃,线条和色彩成为视觉的导引。 解决难题:储物空间过少,不能满足居住的储物收纳需要,原自建房缺乏系统性的统筹设计,居住氛围为0. 根据场地现状条件完善基础设施、配备生活所需的基本功能,提升居住条件 利用模块化的家具形成小组合模块,便于灵活组合、 利用层高,增加垂直空间利用率 利用抬高空间增设储物模块,增强空间可用性 打造层次感,创造功能区明确、指示清晰的空间视觉体系。

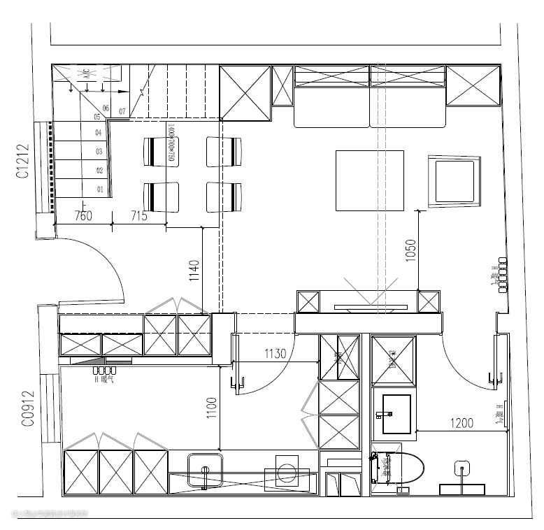
平面布置图: 1、传统的民宅,坐北朝南正房设计,无现代居住氛围,如厨房、卫生间、功能区域; 2、收纳空间完全不足,衣柜收纳利用平面及立面充分利用; 3、墙体改动,增加玄关区 ; 4、利用房屋本身的层高4.5m。搭建楼板,改造成LOFT,放置睡眠区; 5、增加排污管道,使厨房卫生间便捷实用; 改造后平面图,墙体改动还是比较大的,拆除玄关鞋柜区域墙体,新增厨、卫生间、LOFT睡眠区等。
改造前后对比:简洁的现代家具设计塑造了客厅乃至这个LOFT整体的精致布局。 钢化玻璃,大面积的定制层板柜体营造令人羡慕的储物收纳解决方案,优雅地展现主人对年轻时尚的挑剔热爱。超喜欢这个阁楼空间,每一个角落和每一个墙面都在想更好如何利用它,温暖的聚光灯如何与蓝色的墙面 形成鲜明对比,这是一个金村里后,走进这个房间,就会让客人“哇”的空间。 仅天花板就可以让您叹为观止——我们把80年的原木可视化,仿佛就在旧世界的感觉,涂刷一层清漆,但又不是现代的气息,巧妙的立旧。定制沙发,且沙发下还可以储物、悬挂的吊柜,甚至后面的沙发靠背上方,都可以储物。#楼梯#LOFT#玻璃扶手#原顶#玄关

完成后玄关。隐藏式 LED 灯突出了定制的蓝色乳胶漆和玄关鞋柜。 墙壁上的丰富木纹和蓝色乳胶漆营造出一种平静而舒缓的坚固性,其重量被栏杆的钢化玻璃墙对应物所抵消。灰色元素平衡了温暖的棕色装饰件,建立了色调对比和阴影。 #玄关#现代#楼梯#玄关柜#百叶窗帘#平房设计


#玄关装饰品#玄关插座

个组合沙发打破了深色胡桃木覆盖的客厅和浅灰色的内饰。沙发下面类似于榻榻米的形式,不仅可以坐塌,下面还可以储物,一张长方形桌面以抛光木饰面为休息区的中心提供了鲜明的装饰。积聚于客厅和餐厅的功能,无聊时整体还是设计,打破了常规的设计手法。很少见的一种小户型设计思路在这里体现。有会客区、用餐区和书架以及可以伸缩的遮阳帘——任何 20 多岁的人都想拥有这套别致的阁楼为家。#客厅#LOFT#客厅沙发#定制#自建房

低调的现代射灯照明围绕着一层客厅餐厅的周边,均匀地照亮布局展示柜体。#电视背景墙#射灯#色温3000k

电视嵌入在一个装饰柜内,电视柜大大体现了女主人收纳与展示并存。在客厅和餐厅柜体组合的后面,柔和的 LED 照明在周围发出迷人的光芒。#收纳#小户型收纳#沙发#平房设计#自建房设计


客厅和餐厅放在一起区域,可以作为家庭小户型设计,功能发挥双重作用。温暖柔和的嵌入式射灯照明方案与迷人的木饰面相得益彰。#餐厅#客厅#挂画#电视#现代电视背景墙#现代挂画#原木#储物收纳


装饰软配提升屋主对生活的细节追求,#现代装饰#书籍#花艺#装饰品#储物隔板


最早设计方案想从天花开一个天窗,后担心屋顶是瓦片结构会漏水,施工难点多次纠结之后就取消了,不然就可以弥补了这个空间缺乏天光的不足。特别是对于阁楼空间的顶层。屋主喜欢天窗通透的概念——从客厅到卧室,利用天然条件的斜屋顶造就的空间。#施工期间#客厅#立面图#效果图

SU软件,方案推敲。设计师必备,CAD深化图纸将所有细节在施工期绘制在方案里。#设计软件#效果图
干净整洁的厨房,灰色门板装饰配白色瓷砖,而木色的平开厨房门,成了厨房空间的点睛之笔,使这个空间成为你马上想烹饪一次。#平房设计#厨房改造#烹饪#厨房瓷砖#厨房储物#厨房电磁炉

光滑、自然的灰色调饰面抵消了正常奢华的金色饰面。不锈钢灰色水龙头和灰色厨房水槽点缀着白色石英石后挡板和台面。在厨房通道和庭院之间的窗户营造出开放的视觉效果。#平房设计#厨房改造#烹饪#厨房瓷砖#厨房储物#厨房电磁炉

在家居设计中注入柔和的灰色吸塑门板,升级一个简单的媒体单元、饰品,并在厨房里引起生活该有的氛围。#平房设计#厨房改造#烹饪#厨房瓷砖#厨房储物#厨房电磁炉#冰箱


#现代厨房#宜家装饰
客厅中间对称餐厅区。透过木质调和装饰品,体现高学历对艺术要求的表现型态,层格的立体精致度,给予直线不同张力,在此摆置餐桌与餐椅,正好突显薄形的美感,配上LED射灯的照明细腻有度的和谐性。餐厅的桌面为正常的750mm,纯实木的桌椅带来更传统的感觉和舒适感。

四把餐椅拉到沙发与电视中间,成为一个简单的中心。休闲、会客功能,两种功能在一个区域的层次。

白色蓝色以及时尚的家具之间的碰撞。在这里创造的温暖空间与舒适生活方式融为一体。#电视#电视柜#餐厅

#自建房设计#餐厅#装饰#平房设计#餐桌#暖气#储物隔板

抽象多色彩挂画熠熠生辉。

#装饰#收纳#色彩搭配

毛巾杆在淋浴间沿着墙壁向上爬,在那里它们与白色瓷砖(100*300)氛围适当协调。

浴室没有采用更华丽的马赛克或其他装饰。但定制的浴室镜子在小房间里打开了一种空间感。



谈时尚!这个阳刚的空间利用带有闪亮蓝色,原木的裸露、凉爽的现代家具和带有俯冲直线和线条的灯发挥作用。木材支撑楼顶 - 但不是那么粗制滥造的。这是全国或全北方一种建造房屋的方式。

见证了一代甚至多代人的成长,这个原来老旧的空间利用现代的设计结合手法,装饰墙面,木梁,原木的裸露结合凉爽温馨的现代家居和配饰,带有俯冲直线和线条的灯发挥作用。#原木#平房改造#玻璃栏杆#楼梯扶手

现代和旧世界现代感和年代感巧妙的碰撞,也是一种设计方式,说明了一点,有些东西未必需要全新,有时就需要混搭。#平房改造#老房改造##复式LOFT

钢架焊接的楼梯,搭配木地板及钢化玻璃栏杆。现代氛围十足。
装修过程花了多长时间? 答:从推敲,设计,推敲,在设计,确定方案2个月。施工3个月 说说是什么给了你灵感,打造出现在这个作品的? 答:利于房体本质结构,设计现代化的房屋,现代与陈旧的混搭。专业统筹性的设计,增加居住氛围。 你对这套作品最满意的地方在哪里,为什么? 答:从0到无,其实看照片就知道是多年没住过人的北方小瓦房,当屋主说要重新设计后要入住时,也是一个大的挑战。 对平面布局做了哪些优化改动,为什么? 答:原先没有厨房,卫生间。客厅卧室都在一个平房里,钢结构浇筑二层。 在整个装修设计期间遇到最大的挑战是什么? 答:夏季8月份的北京酷暑炎热,师傅中暑3人。 回头再看这套房子,设计当中有什么遗憾的地方吗? 答:在坡屋顶开启天窗是一个特别大的亮点,奈何考虑长期的实用性,丢弃了这个施工作业。当天窗阳光照射在床上,与普通立面的窗户照射,是不一样的感觉。这个户型特点极具设计元素。 为了满足客户的个性化需求,你在设计过程中做了哪些事情? 答:屋主希望家中要有居住氛围,其实也是意味深长,设计要有温度,有要生活体验,要切合村里民宅的基础做设计。所以我们在风格的选择上选择了现代与立旧的混搭,其上家阁楼的空间很足,也符合屋主的需求。在设计的过程中,蓝色系与灰色系,木色颜色的搭配让空间协调。同时从家具的选色上下功夫,着重氛围感的打造,把控地板与家具的颜色不符统一。
