本案为127平方的四居室户型,风格为现代轻奢型,客厅区域,整体装修在硬装部分化繁从简,为了给业主一处舒适的空间,在灯光和软装方面做了精细的搭配。


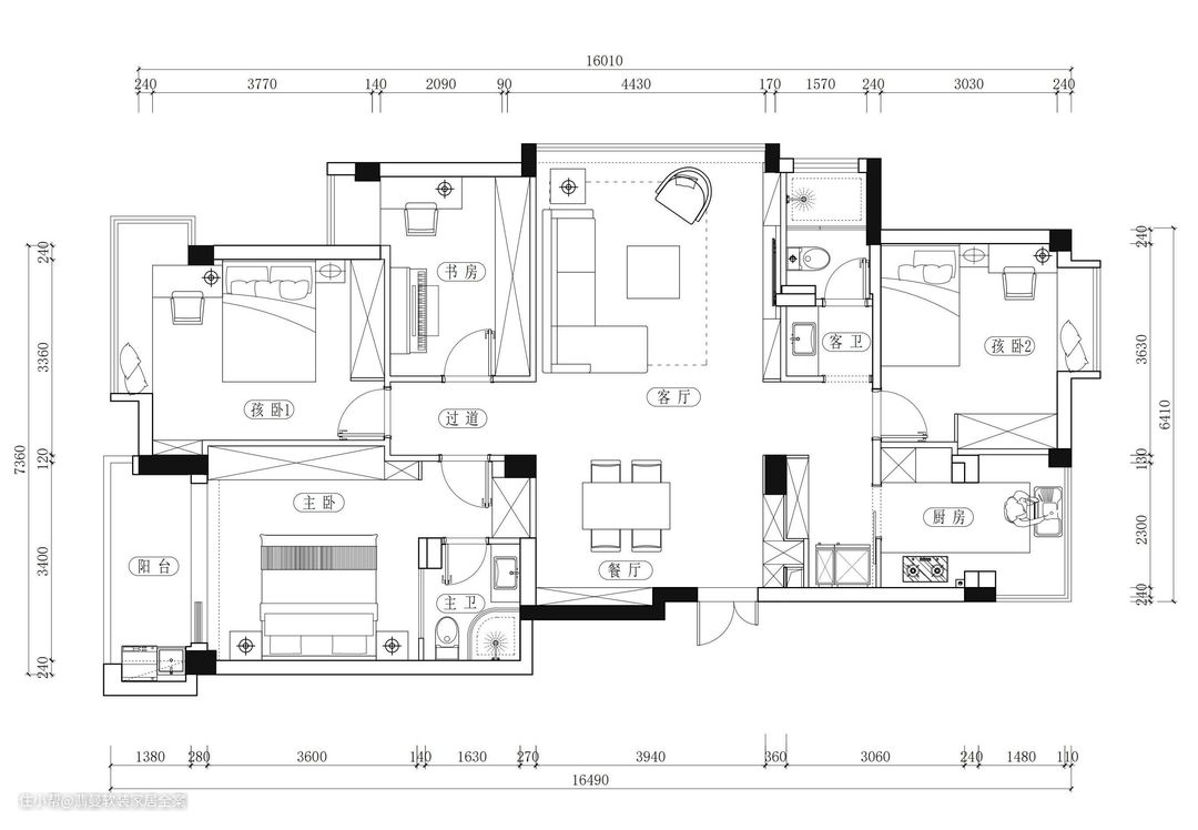
项目地址 | Project address:都市枫林 设计风格 | Style:现代轻奢 面积 | Size:127㎡ 空间配置 | Space:四房两卫两厅
客厅电视背景墙做成了整面墙的储物柜,将电视墙镶嵌于储物柜中,摆件整齐的摆放在里面,形成了展示柜的效果,自然的灯带以及螺旋的灯点亮整个空间。

黑色皮质的沙发搭配上跳色的抱枕,一高一低圆形的茶几给客厅空间填充的更加完整,与地面上的圆形地毯,形成了三段的层次。


黑白灰以及木色为主的客厅空间,给人一种简约的格调感。沙发背景墙采用拼色,竹木纤维集成墙板和花纹的大理石门面相结合,天花的延边线条,整体上提升空间魅力。

大面积落地窗带来充足的自然光线,空间舒适惬意,灰色软包与木饰面的结合,给人温润舒适的居家感觉;
餐厅设置在客厅旁,这种两厅共处一室风格既节省空间又具备多样功能性。

整个居室的风格以浅灰色为主,再加上墙面和顶面的点射光源作为烘托,使得身处这片空间既可充满温馨感,同时在色彩的衬托又不失高级感。

精致的餐桌椅,以及餐桌上摆放的餐具,就是最舒适的就餐环境。

厨房内部是设计成了U字橱柜的布局,厨房拥有大面积的窗户,采光透气良好,以灰色为主的厨房空间,显得简洁而又大方。

各种线条及黑色的电器提升空间魅力,将电器镶嵌在厨具中,使用起来更加安全,便捷。

主卧室内落地窗的窗帘柔化了户型的棱角,而床和两侧床头柜的布置也最大限度地契合了户型,显得自然且协调。

定制打造的白色柜子,满足了空间的储物,黄铜质感的灯架与桌椅脚,凸显生活品味,雅致又时尚。

主卧以灰白色为基调,简洁大方不杂乱,主卫采用大面积落地窗,时空间更加有通透性。

床头柜上放置一盏白色的羽毛状台灯,提升了卧室的温馨的感觉,增加卧室的温暖感。

次卧设计成儿童房,上下两层床铺增加了空间的储物能力,整面墙上贴有墙纸,空间富有粉色的浪漫色调,孩子拥有自己的专属空间,是孩子最好的成长。

床铺上的被子也选择粉色的色调,床上整齐的摆放着孩子喜欢的玩偶,是每天陪伴孩子的最好伙伴,陪伴孩子成长。

卫生间设计成简约干净的空间,干湿分离的空间格局,使得整个空间更加整洁,便于清洁,天花上的线条灯,使得空间更加明亮整洁。一幅斑马形状的窗帘,也充当装饰画的效果。

次卫是一间暗卫,墙面与地面用白色瓷砖来提亮整体空间。淋浴区做了淋浴房,有效保证干区的清爽。

