访问APP
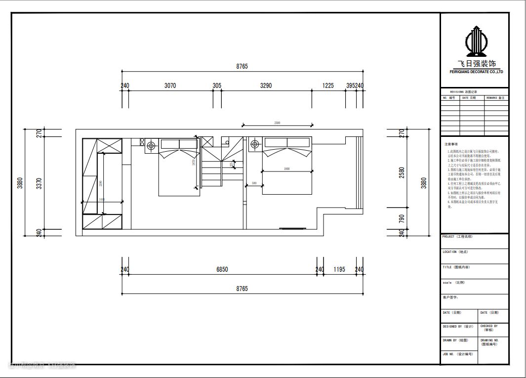
客厅
主卧
次卧
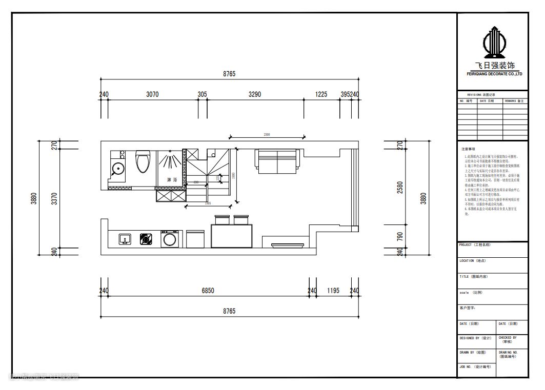
卫生间
方案解析
效果对比

现代简约风格,网红楼梯48㎡挑高loft小户型

南京飞日强装饰
关注
户型
二居
风格
现代简约风
面积
48㎡
位置
南京市
方式
全包
预算
14万
软装
4万
硬装
10万
方案解析

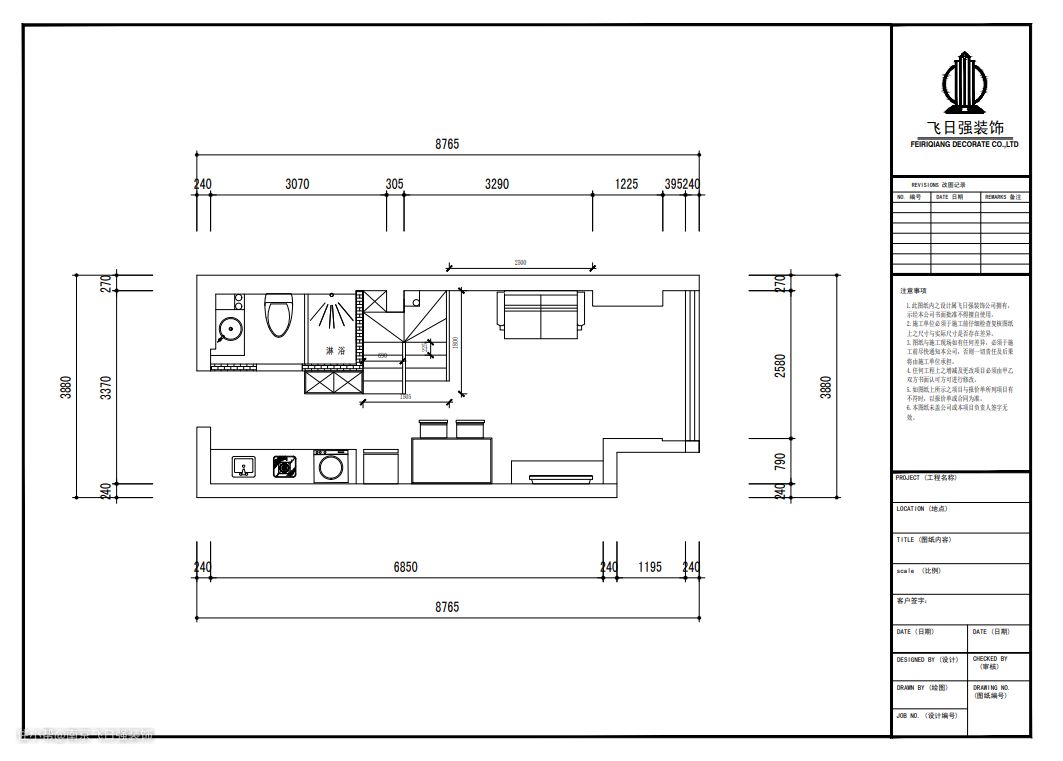
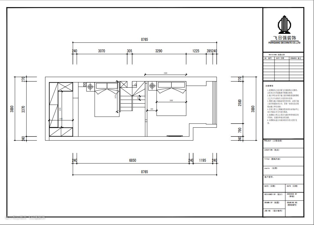
户型解析 【项目地址】:中粮悦广场 【 设计师 】:王龙 【项目面积】:48㎡ 【设计单位】:南京 ✦ 飞日强装饰 【设计理念】:做设计 在尊重原有建筑结构的同时 结合每个业主个性化的需求 去合理化的修改 让冷冰冰的建筑通过各种装饰变成温馨的港湾

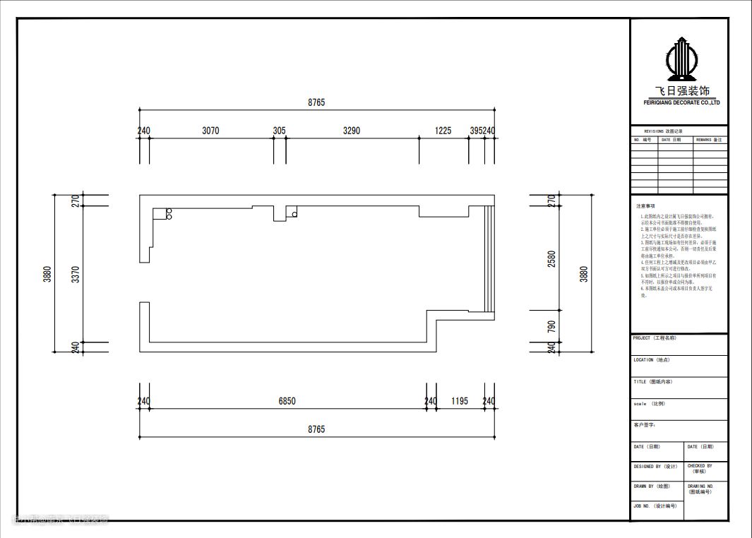
本案是坐落于南京市江宁大学城社区中粮悦广场小区,户型建筑面积48㎡loft挑高公寓,4.8米挑高,中间加隔层一分二,两层空间动静分离,非常适合小情侣或者单身贵族哦。💖💖💖

效果对比

📢 户型局限❓ 建筑面积48㎡空间面积不大,要实现更多功能需求,就需要合理的规划空间布局。

📝 屋主需求 ◆ 整体风格定位现代简约风格,希望整体配色不要太花,整体以素色为主,可以适当做跳色搭配 ◆ 女主希望收纳空间充足,收纳衣服、鞋子、包包,卧室空间比较小,尽可能多的增加收纳空间 ◆ 一楼客厅要设计的大气,带一些网红搭配材料,让整体感觉更贴近现代都市感觉。 ◆ 二楼只需要一个卧室,尽量做的通透一些,让空间看着宽敞一些。 🥇 设计改造思路 ◆ 💯 隔层楼下预留2.4的高度,让楼下整体层高拉伸一些,让平时活动的空间不压抑。楼上休闲的空间适当压缩。 ◆ 👠 在楼梯的选择上建议使用网红通透玻璃扶手,让客厅的空间感更大一些。整体楼梯选择浅色木纹地板。 ◆ 🎸 一楼地面选择浅色大地砖通铺,让整个空间感变强,挑选深色家具形成色彩对比。整个空间不会头重脚轻。 ◆ 👗 二楼空间整体打开,主卧室利用玻璃隔断隔出来,实现既能做到空间区域划分,又能不挡光线。让整个二楼空间开阔舒适。

客厅

💌 客厅设计:

大地砖通铺到阳台,整体空间感更通透。大落地窗搭配纱帘更有感觉。

浅灰色背景墙搭配黑色沙发很显高级感,压住地面浅色地砖,不会显得头重脚轻。整体很舒适。

全屋最亮的就是网红楼梯,自带感应灯设计,通透玻璃扶手不仅让人感觉空间通透宽敞,更有一种时代亲切感。

电视背景以简单的素色乳胶漆为主,顶面简单的单眼皮吊顶,让整个空间干净整洁。

主卧

💌 主卧室设计:

主卧室与客厅呼应,浅灰色床头背景墙,搭配黑色皮质床与床头柜,简单舒适。搭配纯白色床品,整个空间非常素净让人安静舒适。

二楼顶面有大梁,避开大梁摆放家具,活动空间刚刚好。床头柜上方设计了一盏吊线灯,让整个卧室更有氛围感。更有生活气息。

卧室隔墙一半实墙一半玻璃隔断,既起到了阻隔的效果,又不遮挡内部空间的光线,

丝滑浪漫的薄纱,若隐若现非常有感觉。

次卧

💌 二楼休闲空间

二楼内部空间敞开式休闲空间,地面全部通铺浅色地板,搭配一套懒人沙发很有感觉,闺蜜、情侣在这里一起畅谈小憩都非常温馨有感觉哦。

纱帘后面是一个隐藏空间哦,利用二楼过道位置设计了主人的衣帽间,不仅空间充分利用起来,更节约了二楼空间。

楼梯位置也不浪费,设计了一组展示柜,茶色玻璃更有感觉。通透玻璃扶手让整个空间不那么压抑,金属线条的搭配更有感觉。

卫生间

设计团队

设计师:王龙 职务:飞日强首席设计师 经验:8年 毕业专业:建筑装饰 擅长风格:现代简约,混搭风格,极简风格,轻奢风格,美式风格,新古典风格,新中式风格,欧式风格等。 设计理念: 做设计 在尊重原有建筑结构的同时 结合每个业主个性化的需求 去合理化的修改 让冷冰冰的建筑通过各种装饰变成温馨的港湾 个人特长:较强的空间想象能力,对色彩对比和搭配有丰富的经验和理解,擅长结构构成的改造,对流行元素有较强的把控和敏感的嗅觉