本案例是三口之家的紧凑小户型的改造项目,套内面积只有50平方的90年代上海老房。 小户型改造的难度在于空间的合理利用,在满足居住的条件下,尽可能的规划更多的收纳空间,并且还需要让整体空间通透明亮。 对于风格,屋主非常喜欢当下流行的日系奶茶风,在与设计师深入沟通之后,确定了温柔的奶咖色+日系的收纳布局的设计理念,让小空间既有超多收纳,还拥有温柔奶咖的理想家

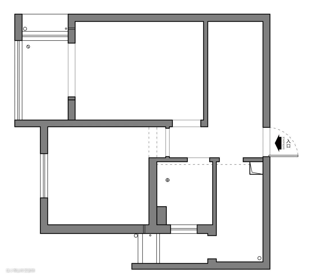
原始户型是大一房的结构,正对门是厨房和储藏间,原始的主卧被改造成了客厅,但是屋主现在是3口之间,需要满足2室+客餐厅的结构,所以原始的结构并不适用于当前的居住。

户型改造: 1、把原始的客厅+储藏间打通之后,重新规划为客厅+卧室结构 2、厨房与进门玄关柜进行组合,把厨房整体改造成为开放式厨房 3、卫生间重新设计,把原来的洗衣阳台规划为淋浴房,并且利用厨房的过道空间,设计为干湿分离形式

进门玄关定制了玄关柜,把入户与客厅进行了隔断,这样既创造了一个入户的收纳空间,又增加了客厅的隐私性

为了避免产生的压抑感,使用高柜+矮柜的组合形式,在面向于玄关一侧是鞋柜,在面向于客厅一侧则是电视背景墙

为了尽可能的增加收纳,在面向厨房的一侧,购买了成品的超薄鞋柜,18cm的厚度完全不影响过道的通行

经过测试,80cm长度的鞋柜,放下12双鞋完全不是问题

餐厅的整体配色以原木+白色为主,营造出自然清新的感觉

在靠墙一侧,设计了通顶的餐边柜,来增加餐厅的收纳空间,并且在80cm高度以上采用开放格+收纳篮的形式,让拿取物品变得更方便。

不知道大家有没有注意到,本案的地毯都是屋主自己挑选,幽默的话语让整个家都洋溢着欢笑与童趣,厨房地面采用300*300mm的小花砖,墙面与吊柜都采用白色,尽可能让空间更明亮通透

因为厨房没有窗,所以把热水器设计在了水槽上部,而油烟机一侧的吊柜则可以直接通到底,避免了热水器占用吊柜空间

原来的储藏间墙体重新隔断之后,扩出来一个迷你客厅,为了把阳台的光线引入室内,在隔墙中开了一扇超大窗户

客厅整体配色以淡奶咖色作为环境色,搭配同色系的沙发与地毯进行相互映衬,并且不规则的白色茶几和北极熊边几,都让这个家充满着温馨

因为屋主有练习瑜伽的需求,所以把练习区也放置在了客厅,并且把镜子放置在窗户正对方向,通过镜面的反射让客厅的采光得到进一步提升

墙面的书画装饰是屋主的收藏,使用了一盏壁灯作为强调

来一张客厅的全景

透过窗就来到与客厅相连的主卧空间,为了尽可能的引入自然采光,选用了带长虹玻璃的门

在窗前放置的是屋主的化妆台,藤编+原木的材质与环境融为一体

卧室整体维持着暖黄色调,从原木色的木地板,白色的柜柜体,奶黄色的床头背景组成了主卧的舒适格调

原来放置在北阳台的洗衣机规划到了南面阳台,搭配小花砖与梦幻窗帘,让这个家政区更像是一个休闲空间

家政区一共由最左侧的家政收纳柜,洗烘干套装,洗衣台组成

舒适的一角

卫生间的干区与厨房使用同一条通道,创造出一个独立的干区空间

卫生间湿区使用白色条纹瓷砖+水磨石瓷砖,一切都以实用明亮作为设计依据
