🔶🔶🔸🔸本案户型是2室2厅1卫1厨,其中2室是钢结构搭建后的主卧和次卧,由于户型面积不大,所以各个空间没有门的阻碍,尽可能还原房间的空间感,同时还能增加一家人的互动性,家庭氛围也更加和谐。

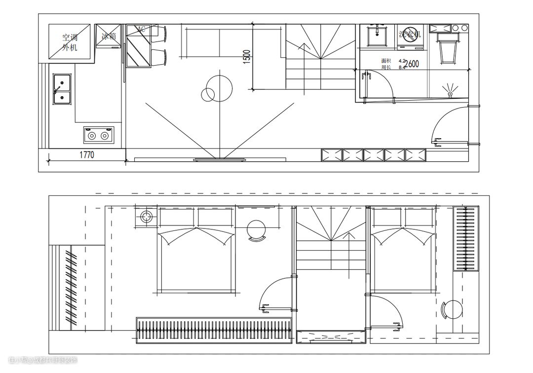
🔷🔷🔹🔹房子套内32平,建面68平,面积不大,需要满足两居室,钢结构要求全搭建,楼梯是作为两层楼的过度空间,整体风格选用的是现代简约风设计,色调优雅简洁,干净大方,让人久久不能忘怀,流连忘返……
💕将设计融入人性,将家具带入悠闲自在的情境💕 简约栖居生活,从当下开始,品味时光里值得珍藏的点点滴滴……






🔺主要材料部分🔻 瓷砖:广东佛山瓷砖 800*800*-东鹏瓷砖800*800 强化木地板 :博信达12厚强化木地板-圣象地板1.0厚木地板 强化木地板踢脚线:强化踢脚线- 实木踢脚线 楼梯踏步地板: 博信达12厚强化木地板-圣象地板1.0厚木地板 楼梯踏步强化木地板踢脚线:强化踢脚线-实木踢脚线 瓷砖刷背胶 : 德高背胶-德高瓷砖背胶400*800瓷砖 洁具三件套 : 箭牌马桶+箭牌花洒+箭牌浴室柜 门槛石 : 良彬建材 实木套装门:成品套装门 卫生间/厨房单推钛合金门:1.4cm厚 沐浴房:防爆钢化玻璃 入户鞋柜: 厂家定制-颗粒板-实木多层 阳台储物柜:厂家定制-颗粒板-实木多层 衣柜:厂家定制-颗粒板-实木多层 300*300集成吊顶:奔康吊顶 扣板阴角线:奔康吊顶 壁龛:现场红砖制作壁龛 橱房地柜/吊柜:鑫柏林厂家定制 水槽(含龙头):不锈钢水槽+龙头+角阀
玄关,是家的第一道风景线,也是留给人第一印象的空间,更是整个房间的颜值担当。设计合理、装修优秀的玄关,不仅能很好地展示主人的生活品位,其使用功能也能给生活带来更多便利。 好的玄关设计,能够帮家里带来财运和好运,令人一进门便觉得眼前一亮,精神为之一振,还会使客厅顿时焕发光彩。



玄关,整体色调是米白色和原木色搭配,通顶柜体的设计让储物空间大大增加。下方镂空设计方便摆放拖鞋之类的;中间镂空设计便于放置包包、钥匙或是清新绿植;靠近客厅的茶色玻璃柜门让整个玄关空间看上去高端、大气、上档次。

客厅,色彩设计上,以活力橙、简约白、睿智黑为主色调,一眼看上去给人温暖明亮的感觉。电视背景墙采用的是大理石岩板,再搭配筒灯的设计,营造出优雅、浪漫的居室氛围。




由于空间有限,一楼功能布局上,基本没有安置隔门,一体式的设计让空间的通透感更足,空间自由感更到位。
餐厅,由于屋主是90后的小情侣,前期设计了一个简易的餐吧台,后期如果人员增加,可以定制成品的餐桌放在客厅中间,节省空间的同时,还能满足功能性的使用,一举两得哦~


为了缓解空间的单调,设计师特意在灯饰上花了小心思,选用了抹茶绿和白色水晶创意灯,让空间色彩更加丰富,氛围感十足。

厨房,整体是L型设计,推拉门选用的是吊轨式设计,方便日常清洁打扫,房间采光效果也更好。



值得一提的是,厨房台面材质是大理石,白色的质感方便日常清洁打扫,也让空间更加美观干净。
主卧,整体色调简洁干净,以简约白、原木色作为主色彩,金属色辅助期间,营造出优雅大气之感。

房间里,摆放了一张1米8的大床,一侧墙面设计的时通顶衣柜,内含挂衣区、叠衣区、隐藏式储物区,收纳功能齐全,生活起来十分方便。







靠窗户的区域,可以作为一片自由空间,后期摆放一张心仪的地毯,看看书、喝喝下午茶,细细品味生活的小美好……
次卧,都是在阁楼上方的卧室,所以色调和风格与主卧一致,勾勒出一种别具一格的协调美。



值得一提的是,房间内有大梁,很大程度上压缩了空间,但设计师巧妙将其利用了起来,在梁下设计了书桌和储物衣柜,犄角空间瞬间完美呈现在眼前,让人一眼便喜欢🥰

楼梯间,采用旋转式楼梯设计,原木风格布局,玻璃扶手卡槽设计,完美连接一二楼空间,舒适自然。

可以看到,楼梯下方改造成了储物间,让整个房间看上去更加整洁美观。




楼梯间,设计师还设计了创意氛围壁灯,简单雅致,空间感十足。


