该实景案例是位于烟台莱山区凤凰湖公园北侧的住宅项目碧桂园凤凰山庄,是建筑面积274㎡的大平层住宅,房屋本身是毛坯房,北面一览无余的湖景是该项目的最大特色。 跟业主的缘分结识于住小帮,业主在住小帮发布了自己家的户型,希望可以得到较为满意的回复,在看了我们给的解析后比较有兴趣,私信联系了客服,简单沟通了一些新需求后,第二天我们就安排设计师跟客户见了面沟通。 业主要求:男主人是商业精英人士,36岁,性格沉稳,向往自然,闲暇时喜欢读读书或咖啡时间,家中时常会有招待客户/朋友等需求;女主人是30岁的大学老师,性格活泼外向,朋友颇多,时常邀请三五好友到家中聚会或研究烹饪等,喜欢新潮事物,平时打理家庭较多对家中需要。父母偶尔会过来帮忙照顾两个小朋友,家里有两个可爱的小女孩,以后对衣物收纳的要求会比较高,还需要两个孩子单独的学习空间。 设计理念:设计师根据客户喜欢的感觉,颜色,材质等将此方案命名为雅奢,以典雅温馨的基调打造这个房子。

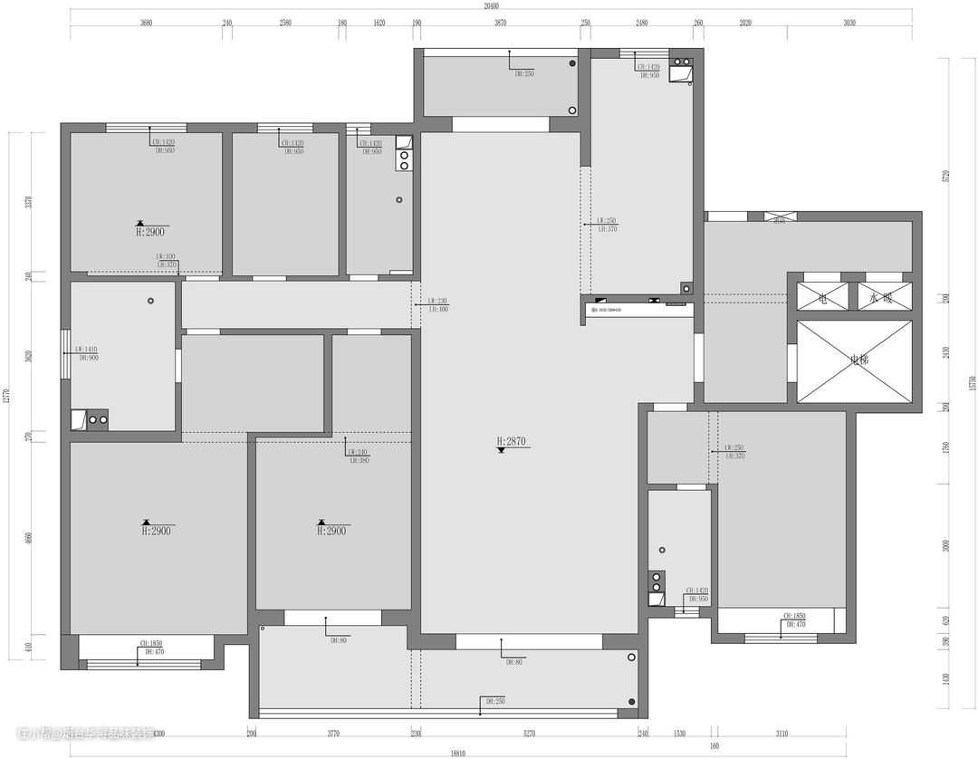
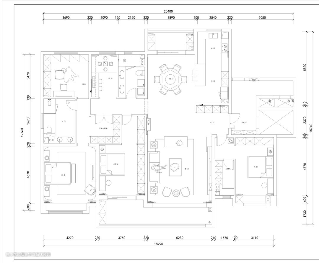
▲平面布局图

第一次方案 设计亮点: 1、注重收纳布局:玄关设计储物柜、电视墙定制收纳、开放式厨房U型布局、内嵌式双开门大冰箱,套房式主卧满足休息 收纳 洗漱三大功能,两个女儿房是孩子各自喜爱的颜色为基调,既能满足孩子学习的空间又充分的考虑了未来一个储物收纳的功能; 2、长阳台一通到底,抬眼便是山湖海,分别通客厅与次卧,扩大空间面积更显气派; 3、卫生间干湿分离设计,满足主卫空间,客卫改造成洗漱,洗衣房一体化,满足客户的生活需求; 4、临近主卧的次卧改造成衣帽间,外加女主人需要的梳妆功能,提高主卧的生活舒适感;

最终方案 细化部分: 1.将餐厅换成圆形桌子,取消了原本的餐边柜(厨房的收纳空间完全可以满足) 2.次卧室在原先的基础上增加了一整排收纳衣柜,满足了大女儿的收纳功能。 3.电竞房取消了原本的榻榻米,扩大了卫生间的空间,做了双台盆的洗手盆,方便孩子上学使用不拥挤,也将原本在阳台的洗衣功能调整在了卫生间。
阳台装修前

阳台装修后

客厅装修前

客厅装修后

效果图




效果图

沙发的选择,一定要和客厅背景墙很好的融合,周围则不妨选择一些白色的装饰和绿植来装饰,视觉效果会更好。 室内背景墙用暖灰色的搭配最为常见,这种搭配比较简约,且不易过时,最重要的看上去会比较时尚,适合不同的空间使用,可以说是一种十分百搭的设计手法。

现代化的艺术品,可以选择一些雕刻类、艺术挂画等,或者是选择浅色系的家具等等,这些都会让家居环境更富有现代气息,而且也会十分时尚。

背景墙自然淡雅的暖灰调,呼应整体设计语言,沉稳内敛,自然的纹理,整个空间韵味别致。采用护墙板装点,配合筒灯的修饰,装饰画依傍在墙边,精致中带有业主随性洒脱的生活态度


独特的装饰手法,给人一种不受拘束和束缚的感觉。在这样的环境下,房子不仅要住得舒适,还有个性的追求。

丝绒质感的沙发,简约中不缺精致感。轻奢风格注重设计手法上的简洁、大气,但并非忽视品质和设计感,大理石、丝绒、皮饰、瓷砖乃至木饰面等,经过巧妙的混搭与组合,让空间的奢华感上升到一个新的高度。


效果图

视野主线聚焦在电视背景和沙发背景,材质运用主要是瓷砖、木格栅、岩板、硬包和线型灯光。超高空间里吊灯起到修饰作用,空间给人的感觉大气不张扬,没有采用过多的设计元素去修饰,主打色调黑、白、灰,整个空间看上去纯粹、理性、大气。
效果图





面积足够敞亮的安逸,布下了西厨与中厨,并且实现中厨的独立,进一步拉升生活格调。中厨U型布局的实用,归纳了大量的储物空间;清洗区置于窗前,敞亮的自然采光、美好的窗外景色,悄然间就忘却家务的疲劳。深浅双色搭配,立体而有层次感,形成更加稳重精致的视觉效果。


西厨中延承重墙体拉伸出的岛台设计,给夫妻生活带来情调,亦满足轻松随性的家庭、朋友聚餐。靠墙体的区域可以放一些小家电,简单的早餐机在这里就完全可以满足。

主卧室将北向的次卧纳入做成了衣帽间,在空间上将门的位置调动了一下。进入主卧便是一个L型的通顶衣柜,可以将一些穿过一次没必要洗的外套放在此处。玻璃柜门将柜体显得更有层次,可以放一些女主人的包包,挑选也会比较方边,柜体颜色延续了客餐厅的色调,整个房子更加统一。

进去主卧室后便是超舒适的南向卧室了,飘窗的宽大以通透大玻璃封窗展现,整体浅色空间的优雅,点亮整体视觉空间,优雅大方。全屋的家具也是选用一个品牌,在材质和颜色上更加统一。


主卧卫生间采用干湿分离式设计,墙排壁挂马桶能比较有效地防止后期马桶堵塞的情况发生,上方的防水柜门也能很好打理,囤一些平时用的纸巾刚刚好收纳。

北向的卧室被纳入了主卧,通体的L型衣柜超大储物功能,后期业主有单独买了一台梳妆柜。


女孩房整体采用粉色调,运用嫩嫩的粉色,营造温暖梦幻的童话氛围。床头柜上方挂着的蝴蝶吊灯精致无比。壁灯光线为柔和的暖黄色,这样即使是深夜醒来也不会因为过亮的灯光伤到眼睛。





踏进房门,一种清新可爱的氛围扑面而来。舒适的空间采光与白纱结合的窗帘,给人感觉一片岁月静好。床头后期摆放写字台,浅浅的中空设计,让自然光透入,给到孩子更好地学习光线。床尾墙面以简约造型烘托氛围感,一整面墙的大衣柜,女孩子未来的衣服肯定有地方放了~




客卫平时主要是两个女儿使用, 外加洗衣功能, 双台盆的设计既不冲突,也显得空间大气。


预算清单



问:最满意的设计亮点是什么? 1.整体为三室四厅,并配有休闲娱乐空间,与西餐台空间临近,可满足主人日常多种使用需求,如会议or派对。其中主人房是视野开阔、空间舒适的设计。 2.在活动动线上,访客与主人路线做了很好的规划,也增加了业主空间的私密性。 3.在光源上,考虑到从室外自然光到室内照明的结合,在北向空间适当增加辅助照明的数量,在南向很好的利用了充分的落地窗营造的自然采光,让空间设计达到很好的平衡。
