新房很大,两百平米,哪怕儿子以后结婚了,供一家人生活居住也是绰绰有余。姚女士咨询了好几家家装公司,看了许多装修设计方案,都觉得不够满意,距离她内心的期待值,始终差一点点,正是这一点点,让她决定来铭品装饰,看看大品牌的设计能力! 经过沟通,我们发现,姚女士对新家生活的品质感要求是很高的,非常有自己想法,她想要的舒适理想新家,最终通过铭品设计师的妙笔描绘了出来。 看过了铭品的设计方案,姚女士直呼感觉到位了,她当即拍板决定,将装修工作交给我们,让专业的家装公司为她构筑美好理想家!

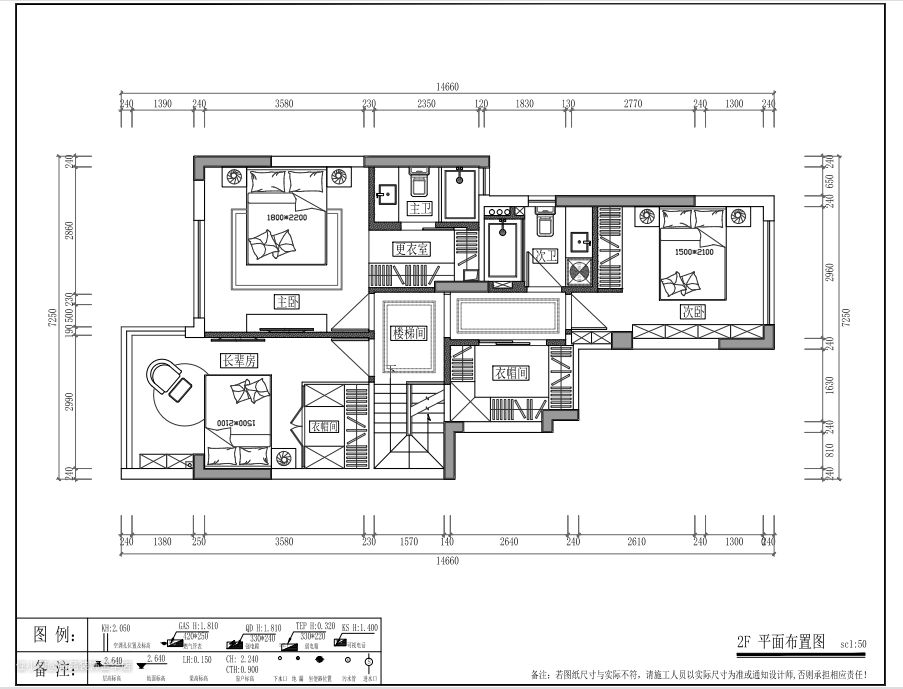
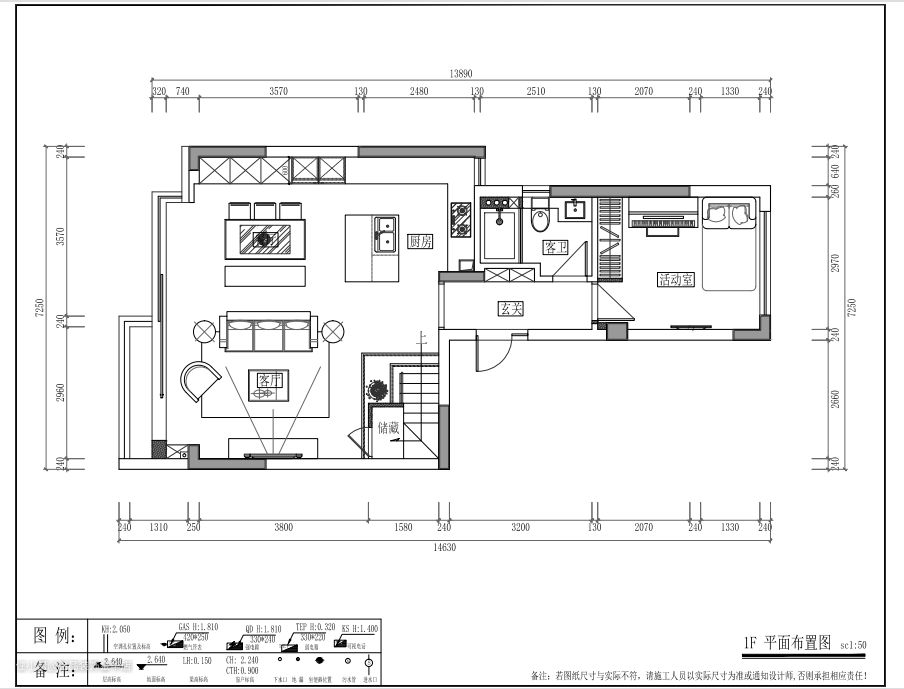
//设计亮点// 1、一楼作为家庭活动空间设置的客餐厨;二楼作为主休息空间,安排了主卧有限的两层空间,在合理的设计理念规划下,让生活更游刃有余并充满无限可能。 2、一楼客餐厅一体,横厅布局,视觉上就显得更加通透开阔。除了空间感好,这套房子的功能性也是比较让人满意的。 3、二楼作为主休息空间设置了主卧和次卧,休闲区为一体的主卧套间设计增加私密性的同时动静分区,让家居功能完善、更加舒适。

新居室的客厅,非常宽敞舒适,开阔型的空间,一眼望去,就能将整片客厅空间收入眼底,简白色的主基调,素净又合眼,搭配群青色的定制沙发,生活的舒适感妥帖到位。

色彩搭配深浅有致,群青色的醒目感,无形之中给人心神宁静,放松自然的舒适状态,姚女士非常喜欢这种清雅格调,不俗且美观,一家人都非常喜欢。

沙发不靠墙,就能腾出位置给餐厅,整体形成洄游动线,空间价值最大化利用。

电视背景墙是原木+胡桃木的柜体组合形式,低调又个性,搭配恰到好处的收纳格,层次感十足。百叶窗带来光影上的美~

餐厅设计在了厨房与落地窗的中间,风格简约,美观时尚,这里的设计姚女士非常喜欢,与厨房的距离非常近,一家人用餐时间,围坐在一起,感受温馨亲密的气氛,其乐融融。

百叶窗外就是舒适的晚景,拉上帘子,一边享受美食,一边欣赏晚霞漫天的悠然,赏心悦目,生活的烂漫闲适感,特别棒!

餐边柜和橱柜做了衔接,统一的闭合式白色柜门,让空间更显简洁。

厨房的设计,采用了开放式布局,与姚女士崇尚的生活理念不谋而合,空间更宽广,视野开阔而自然;

一切的厨房活动,都可以在动线走道里轻松完成,若想再增添一些生活品质,摆上一台咖啡机,来上一杯香浓咖啡,也是感觉非常棒的,这里的空间宽裕,再摆上三五台家电,也不显拥挤。

大空间里特别设计了一套岛台式的水吧台,既可以满足厨房濯洗清洁的需求,又可以用作聚会吧台之用,夜幕初上之时,好朋友围坐在一起,倒上几杯美酒,畅谈生活趣事,生活的滋味自然就丰富了。

卧室的设计选材,非常考究,温润的木地板,夜晚中将灯盏点亮,酝酿出静谧的氛围,温柔又细腻,轻拢上迷蒙的纱帘,沉浸在梦幻恬静的梦境里。

床头背景墙透着舒适感,硬包拼接木饰面,大地色与原木色的结合,温温柔柔。丰富层次感的同时,灯带营造温馨氛围。

大大的落地窗让空间更显明亮,床尾没有做其它造型,保持简单即可。

从这个角度可以看出,进门做了主卫和衣帽间。


这间是父母房,床头墙做了灰色壁纸+原木的拼接,整体色调偏暗沉,床选择了亮眼的丝绒红床,沉闷单调的卧室一下就被点亮了,有种梦幻轻复古感。

靠墙和靠窗处分别做了柜体,满足日常收纳需求。床尾挂了电视机,方便老人睡前看电视。


次卧的用途,姚女士准备当作客房,当家中来了客人时,需要一间体面又舒适的客房,这间设计有质感的次卧就挺适合,床品织物,格调氛围,都是舒适的商务风,有品位又有档次。

黑色沉静、助眠,希望卧室在好看的同时能够舒缓情绪,所以衣柜、背景墙和窗帘都选择酷酷的黑色,打造一个全方位宁静的治愈空间。

卫生间实现三分离效果,各功能区独立存在又紧密联系。台盆区做了加长设计,留出的台面可以放置更多洗漱用品。

这套新居室最大的特点就在于,室外有一处空地,我们将它设计成一处可以享受下午茶的闲适场所,伞棚一架,清冽的冷萃咖啡一泡,摆上几份可口的小点心,这样的下午茶时间,实在太加分了!谁不想拥有呢?!

