本案屋主是一对年轻小夫妻,作为年轻人,并不喜欢复杂的装修风格,但也不想过于简单,希望在预算有限的情况下满足日常生活所需同时兼顾到空间的整洁品质感。 结合屋主的喜好及生活习惯,整体以现代简约的造型为主,摒弃复杂的设计和装饰,沉稳自然的基调,辅以色彩明亮的家具点缀,使整体空间简约不失设计感,营造了简约舒适的居室氛围。

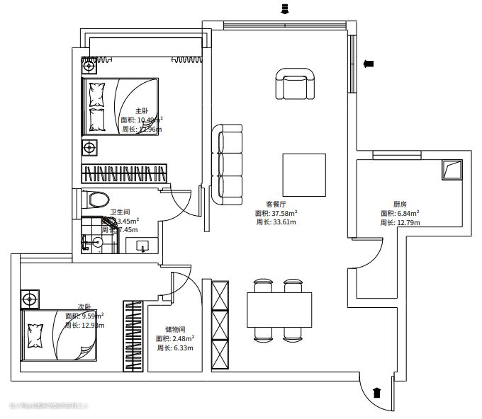
本案户型较为周正,整体通风采光都很好,所以未作户型调整。 充分利用每个空间结构布局,最大限度地将空间规划成最舒适的状态。
客厅整体简洁的基调,全屋通铺浅灰色地砖,拼色布艺沙发搭配极简的岩板茶几,辅以抱枕、休闲椅活跃色彩的点缀,使得简洁的空间中不显单调,沉稳中不失活泼感。

#现代简约 #客餐厅一体化设计 #到顶餐边柜

客厅整体简洁的基调,全屋通铺浅灰色地砖,拼色布艺沙发搭配极简的岩板茶几,辅以抱枕、休闲椅活跃色彩的点缀,使得简洁的空间中不显单调,沉稳中不失活泼感。

#客餐厅设计 #电视墙 #电视柜 #简约吊顶

客厅跟阳台打通,做了落地窗的设计,阳台做了到顶的柜子,并定制书桌,将空间合理的利用了起来!
客餐厅一体化设计,更显宽阔通透,选用岩板餐桌搭配皮质餐椅,清新的色调在冷调灯光的照映下,营造了清爽简约的用餐氛围。

#餐厅 #餐边柜 #瓷砖通铺 #吊灯

#餐边柜 #岩板餐桌

靠墙整面的餐边柜,极大的满足了空间收纳需求,中间留空与开放格的设计,无论是放置一些小家电还是装饰品的摆放都能满足,美观与实用兼具,使得整个空间更加井然有序。

#餐厨空间 #入户 #餐边柜 #玻璃推拉门
L型的厨房布局,动线流畅,上浅下深的橱柜搭配在满足储物需求的同时也丰富了厨房空间的层次感,形成视觉上的清爽干净,结合浅色系墙砖,既便于日常打理也更显明亮整洁。

#橱柜 #橱柜设计 #现代简约 #上浅下深

#厨房设计参考
卧室延续空间的整体基调,以简约舒适为主,柔软的皮质床自带舒适之感,极简的衣柜不仅收纳性超强视觉上也更显整洁有序,没有过多的复杂设计,简单而舒适。

#主卧 #飘窗设计 #主卧装修 #简约吊顶

宽阔通透的大飘窗充分满足室内的光线,采用拼色窗帘作为空间色彩的点缀,为室内带来明亮感与活力的气息。

#飘窗 #飘窗设计 #飘窗柜 #现代简约

#飘窗设计 #纱帘 #飘窗柜
卫生间的一字型结构决定了其分区布局,采用玻璃隔断做干湿分离,灰白半墙式的墙地砖呈现出洁净的视觉效果,壁挂式浴室柜安装台下盆,没有卫生死角便于日常打理,整个空间看起来整洁且有序。

#卫生间 #现代简约 #干湿分离

#玻璃淋浴房 #干湿分离 #现代简约
设计师问答: 问:装修过程花了多长时间: 答:硬装+软装进场一共三个月的样子。 问:说说是什么给了你灵感,打造出现在这个作品的? 答:与屋主初次沟通我们就一拍即合,屋主高度的信任和接纳,就足以让屋主将新房信任的托付给我们变得有意义! 问:对平面布局做了哪些优化改动,为什么? 答:本案户型较为周正,整体通风采光都很好,所以未作户型调整。 充分利用每个空间结构布局,最大限度地将空间规划成最舒适的状态。
