简约≠简单,它是经过设计师无数个深思熟虑、精心推敲而出,以少胜多、以繁胜简,这才有了独树一帜的现代简约风格。 ▲今天要给大家分享的这套案例,把现代简约风拿捏得很到位,还实现了超强收纳,快来一起看看吧! ▲这套面积为100㎡的现代简约案例,屋主是一家五口(三代同堂),因为有老人和小孩,家里的杂物特别多,希望可以多规划一些储物空间。 ▲设计师考虑本案位于小区一楼,在不影响居室功能和空间感的同时,提高居室的采光和储物收纳柜。

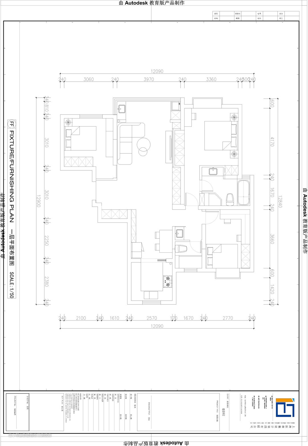
// 户型分析 // ▲原始布局属于三居室户型,户型较为方正,但因楼层较低,空间光线一般,利用率也不是很好。 ①主卫面积小,舒适度一般。 ②整体储物功能少,无法满足屋主及家人需求。

// 设计亮点 // ▲从屋主需求和生活习惯出发,重点空间规划如下: ①玄关:入门两侧分别做了玄关柜和隐形门调整,提高空间的整体感。 ②客厅:电视背景墙借助“S 型”墙体布局,增加客厅、主卧储物面积。 ③餐厨:将冰箱移至餐厅,完善餐厨储物和使用功能。 ④公卫:增加公卫的干湿区的隔断,让空间布局变得更加合理。

▲在原户型中,玄关的右侧是父母房的入口,动线不是很合理。设计师调整卧室门洞至客厅位置,利用木格栅隐形门减少门洞的突兀感,增加隐私性。 ▲顶天不立地的玄关柜深40公分,上方连接吊顶不仅提升了储物空间,也避免了落灰;底部悬空高20公分方便随手摆放拖鞋;中间深40高45长90公分作为收纳展示区。

▲玄关只放鞋柜out又太浪费,不妨连接玄关柜设计一面深40长90公分的顶天立地衣柜,作为大衣/外套收纳区,收纳空间多2倍!

▲考虑本案位于一楼,阳台与客厅之间做了移门隔断,保护隐私也不影响过道和餐厅区域的采光。 ▲阳台两侧分别规划了清洗区和收纳区: ①右侧洗衣机、烘干机采用了上下叠放处理,更节省空间;上方收纳柜内,存放着平时的清洗用品和工具,柜内采取分类收纳,拿取时方便快捷。 ②左侧一体式台盆柜+吊柜,方便清洁的同时也增加了储物功能,将阳台空间利用至最大化。

墙体巧设“S 型”布局,空间收纳绝绝子! ▲电视背景墙结合主卧空间增加一面深60公分的储物柜和展示柜,既可以充当入户时的玄关景又不会占用公共空间面积。

▲两侧按压式柜门省去拉手与墙面完美衔接,整洁性更强;中间柜体利用隔板将内部空间分隔多层,搭配隐藏的灯带光源和灰玻给居室带来精致、优雅的高级感。

▲设计师为了缓解玄关和过道处“横梁压顶”的尴尬,用吊顶把各空间做了分区处理,搭配简约的石膏线条使空间看起来更加自然。

▲玄关延伸至沙发背景墙处,设计了一面木格栅护墙板,利用其独特的线条,使居室平开门可以巧妙达到“隐藏”的效果。 ▲浅灰色木格栅搭配卡其色皮革沙发呈现出一种淡然、素雅的温馨感。

▲餐厅侧面墙壁定制“餐边柜+储物柜”,并预留长1m高1.8m设计嵌入式冰箱,为了避免单调,采用黑色把手为空间增加了几分层次感。

▲考虑餐厅空间不是很大,设计师选用了一张1.6m长的餐桌靠墙摆放,节省空间还方便实用。 ▲极窄边三联门可以很好地将油烟隔断,保证餐厅的采光度,开阔明亮的布局也让家居空间看起来更加通透。

▲高90深60公分的餐边柜搭配上方插座,可以作为西厨料理区。 ▲冰箱与餐边柜中间预留一面宽45公分的通顶式拉柜,可以储放平时的瓶瓶罐罐和小零食,非常方便。

▲屋主一家喜欢吃川菜,考虑平时油烟问题,保留原始厨房布局,借助橱柜区设计嵌入式蒸烤箱及洗碗机,增加使用的便捷性。

▲不得不说,厨房的配色真的很有质感,黑白灰搭配纹理丰富的地砖简洁又富有层次感。 ▲墙地砖分别选用同色系的美缝减少空间的突兀感。

▲U型厨房结构不仅有宽敞的活动空间,大量的橱柜和抽屉也为厨房提供了强大的收纳。 ▲“洗切炒”三区合理划分后,动线更加流畅,高效提升烹饪效率!

▲主卧借助电视背景墙设计入墙式大衣柜,总体长3米深60公分的储物空间完全不输衣帽间,扩容还美观,超实用。

▲白色纱帘淡雅随意,不仅在视觉上起到加大空间的视觉感,也可以与整体的家居风格融为一体,为居室整体增添光彩。

▲上方隐藏式射灯搭配浅咖色软包背景墙氛围感满满,在光源的映衬下,让室内呈现出舒适放松的氛围。

▲次卧主要作为儿童房使用,虽然面积不大,但配置很齐全,除了榻榻米床和衣柜外,还有转角书桌和收纳区。

▲为提高空间的使用率,设计师将公卫使用频率比较高的干区外移,分分钟解决屋主及家人的用厕“早高峰”。

利用长虹玻璃给小户型扩容,拉伸层高 ▲干区的玻璃隔断和卫生间的平开门,可以完美实现光线与隐私的共融。 ▲而竖线条纹理,可以直接从视觉上拉伸空间,通过纵深感拉高居室的层高,再加上半透明的材质和磨砂膜的组合,看上去显得室内更为宽敞。

▲主卧卫生间内部以浅灰色为主,搭配白色台面和深蓝色柜体,视觉感干净清爽。 ▲设计师利用过道墙面安装了一个电加热毛巾架,浴巾或毛巾挂在上面可以快速进行烘干,减少室内潮湿。

▲原卫生间只有3.2m²,设计师根据男女主的需求和生活习惯,借助主卧空间增加双台盆洗漱区,为日常洗漱时长起到了分流的作用。
回顾本案,整屋装修干净明亮,配色简洁舒适,看似“空无一物”的空间,却暗藏了强大的收纳能力,并呈现出高级治愈的视觉感,值得借鉴!如果你也喜欢本期内容,欢迎点赞收藏!
