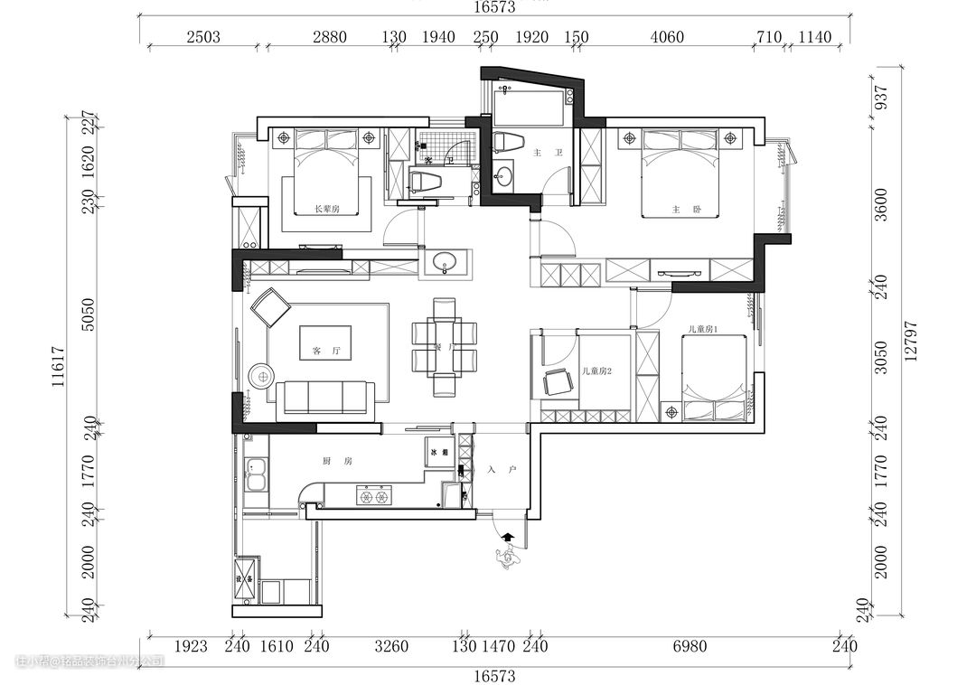
原户型为三房,主卧预备两夫妻居住,次卧给长辈住,就只剩下一个房间。作为二宝的妈妈,W女士希望带给儿女平等、舒适的居住环境,因此交给我们的第一道难题就是如何增加一个新的房间。另外,两夫妻希望家里的风格耐看不容易过时,空间宽敞不拥挤。

经实地测量,业主家是常规的三室两厅户型,于是我们决定在原结构比较宽裕的客餐厅位置增加一个房间,并借用原儿童房部分空间来增加尺寸比,团宠妹妹的房间就新鲜出炉了。 不过这样一来,新房间就没有了窗户位,我们巧妙地采用长虹玻璃做隔断,既保证了隐私,又解决了通风和窗户问题。 常住人员较多的情况下收纳也是至关重要,我们在能利用的空间基本装满柜子,拥有大容量的同时兼具美观性。

改造后的房子功能性不减反而增加了不少,动静区域合理划分,实现了业主高品质的住宅心愿。 ①合理规划了全屋的收纳系统及颜值性,让4室2厅大户型房子做到了完美空间布局和储物; ②入户玄关增加了超实用性的内嵌壁龛,方便了日常出行之类; ③改变客厅的布局增加了新房,给家居生活提供了更多的方便; ④卫生间干湿布局合理规划,使用起来更阿基方便。
入户短廊设计成了小玄关,规格不一的壁龛给日常出行随手挂包包或小钥匙之类的提供了很大便利!

在收纳中,我们主张有藏有露。入户定制玄关柜,中间部分做成敞开式,相当于壁龛,留给包包、大衣、钥匙等高频率使用的物品,底部留出换鞋空间。

经典的高级灰+白色,一眼看过去的整洁优雅,黑色茶几和皮革多人位沙发调和整个空间的层次。

大大的落地窗,阳光可以直接照射入客厅。墨绿的窗帘与装饰画上的颜色相呼应,让空间更加活泼有生气。

电视柜藏露比控制在8:2,更加符合我们大部分人的使用习惯,也能让房间看起来更加整体。

我们用外露式筒灯和轨道灯取代了主灯,房间显得格外通透宽敞。

一整面的橱柜,完美提升了收纳功能,不规则内嵌壁龛确保了设计美感,平时摆放一些小摆件还可以装饰室内风格。

内嵌电视及电视机柜形成了上下一致的设计效果,提升了空间的整洁性和储藏价值。
餐厅位置我们也打了一排柜子,嵌入式设计和墙面齐平,可以看到我们对每套柜子都进行了差异化设计,这里的小格子刚好适合放一些摆件。

简单的长条大理石餐桌,搭配黑色金属吊灯,现代感十足。对面墙上的装饰画我们选了很久,放在这里太漂亮了!

在餐厅后面隔断出简单的小房间,平时也可以用来当做储物室,长虹玻璃作为隔断材料,即不会影响光线,又能恰好起到隐私性。

运用简单的线性照明,避免客餐厅空间的单调,背景墙上挂了两幅同系列的挂画,壁龛和挂画的装饰下营造了轻松惬意的就餐氛围。

厨房的空间也相当大,半墙半吊柜的设计营造了完美的空间。半墙瓷砖与大理石瓷砖还是做了轻微颜色上变化,金棕色背景墙瓷砖搭配浅灰偏白的地面瓷砖,两者之间相得映彰!

谁说厨房只能是一个人的领地,家人们一起择菜、切段、聊天,也可以将平凡的时光变得充满人情味。

所以我们在保证储物之余,保留了足够的腾挪空间,备菜区安装了吊灯来补充光源。

屋主两夫妻打算卧室是用来纯休息的,所以硬装设计上以简单为主,选用绿色+白色为主,搭配原木风地板整个室内透露着一股纯粹自然与质朴,时光荏苒,白首相携,估计也就是如此了吧!

主卧我们用了雅致的灰色,搭配原木纹理地板,营造轻松慵懒的感觉。

床尾的背景墙采用一整面式的橱柜,完美提升了室内收纳功能,同时假壁龛设计方便后期用来摆放电视或者其它小摆件,灵活性相当高~


梳妆台脚桌了做旧色黄铜,有点复古味道。

电视墙依然打了整排的白色柜子,保证储物功能。

儿童房基于主卧的设计风格,多了一些色彩和活泼感,现代自然主义手法,简单的几何形状,无主灯设计;

通体衣柜采用纯白色柜门及少许原木元素,又在中间增加了小橱柜功能,方便孩子存放学习课本。底部悬空的设计还能够用来摆放孩子的玩偶,充当收纳功能。


公卫干湿分离,洗漱+马桶+淋浴+浴缸分工明确。浴缸底部还设计了暗格,方便收纳一些不常用的物件!

