房子紧靠青山湖,地理位置和周边环境都很棒。 业主夫妻都在阿里巴巴总部工作,到这里也很方便。 目前这套房子用作休假使用。因此风格定位上确定为简洁度假风。 改造后的院子也散发出十分休闲健康的气质。

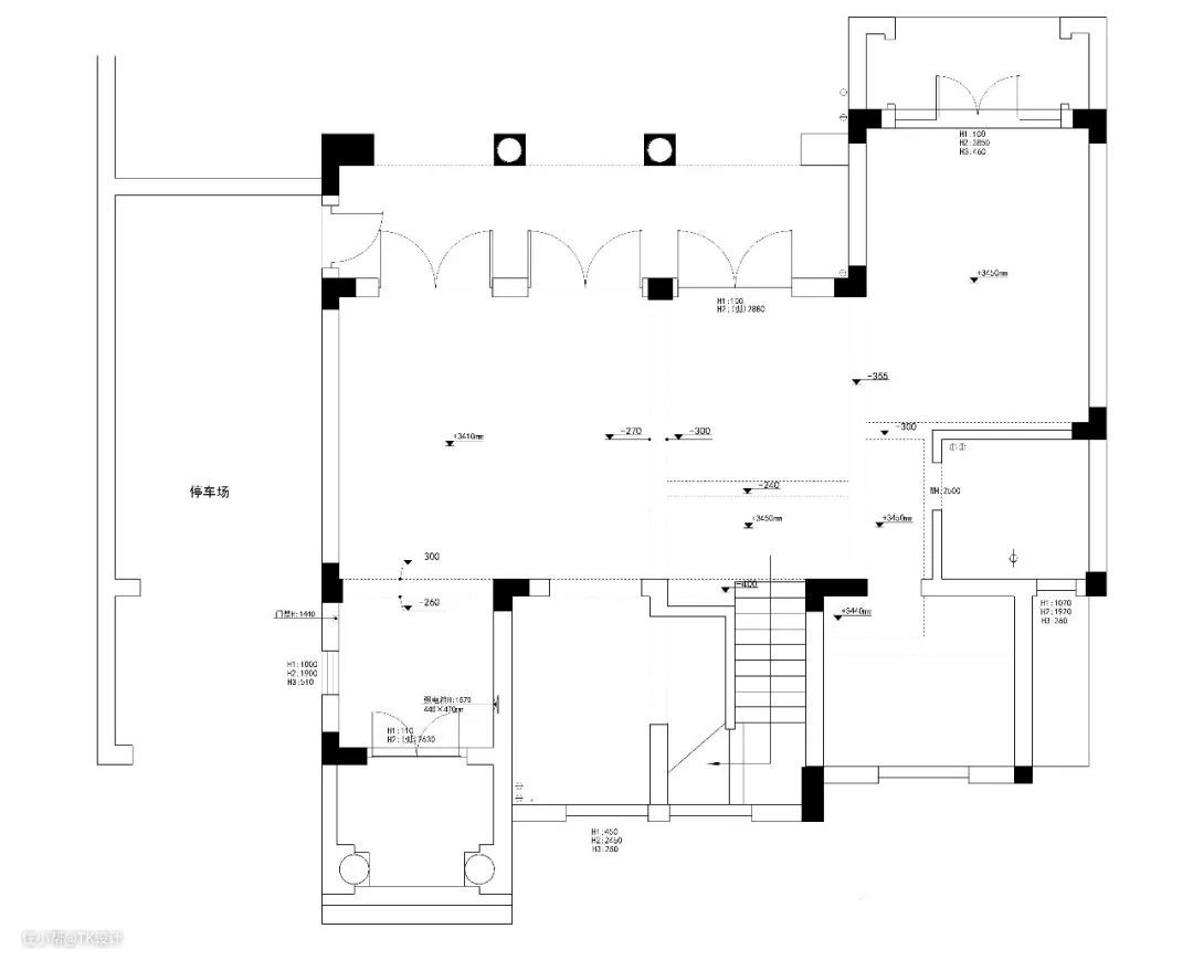
(原始结构图)

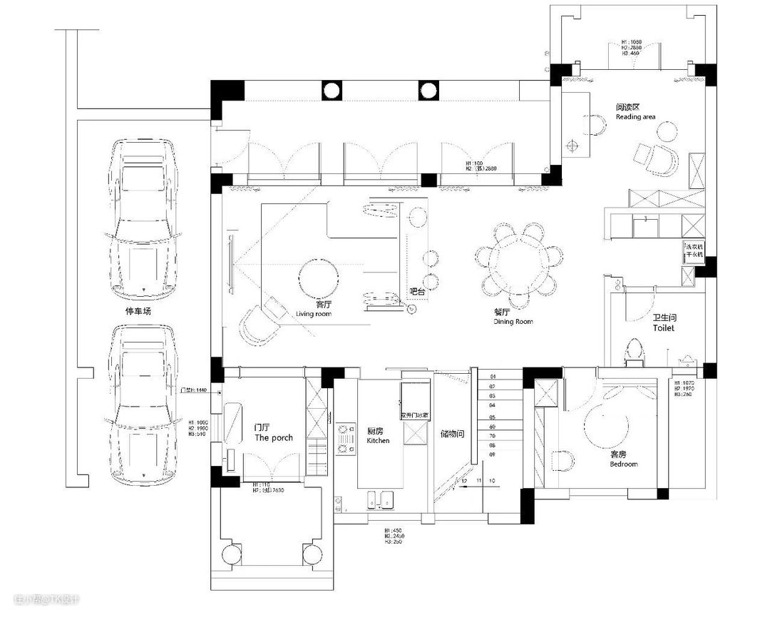
(平面布置图) 原户型相对合理,因此并没有做过多调整。 仅针对客户的生活习惯规划出洗衣房,以及在客餐厅部分采取吧台分割空间的做法,整体看起来更清爽舒适。

(原始结构图)

(平面布置图) 结构上没有过多改变,仅是优化布局。露台一侧的房间都作卧室使用,采光和通风得到保障。主卧做成大套间隐私性更强。通过调整客卧和外卫的墙体,做出了一间“客卧私有衣帽间”,方便使用。

客厅用了浅色大体量沙发,可以满足多人观影。活泼的圆几便于移动和玩游戏。


电视墙是一大块木饰面,观感十分温暖。地面做了深色大理石和钢板空格组合的长条型台面,能够摆放许多设备。电线裸露有点多,可以考虑购买集线盒进行收纳。

电视墙一侧增加一个壁灯,形成视觉上的补充,借助房顶上的灯路造型,对应地面划出过道。

几何造型的地毯,亮眼不显纷杂。

小惬意的藤椅。

餐厅和客厅之间做了一个吧台,既可以补充客厅的座位,又可以分割两个空间。吧台留出直饮水水槽,方便日常使用。错落的吊灯增添线条感。




最美的一个角度。 楼梯下作了个储物间的暗门,和厨房的移门门套联合一起。 餐厅的吊灯是整个设计过程中最后选配的,前期没有找到特别满意的单品,反复预构了多次现场效果,最后的效果很赞。



U型厨房。 木色橱柜搭配小白砖,清新简约。



针对客户的实际需求,一楼卫生间的干区兼做洗衣房。 洗衣机与烘干机搭配使用,台盆也采用了可以足够洗衣服的大尺寸。上方吊柜下面加了灯光和挂衣杆。

阅读区,刷了一面黑板墙,便于小朋友写写画画。一旁的搁架可放置常看的书籍。


阅读区的单人沙发。

现场制作了工作台与书架,书架下方依然有灯光。

书房偶尔客串客卧。

入门玄关,一侧是长凳和衣架,另一侧是整面衣帽柜。

在玄关鞋柜的位置留空了一层,可以随手放置小物件儿。


木色与白色营造出自然清新的氛围,移门后是衣帽间。

靠近露台的一侧使用玻璃门搭配轻薄的窗帘,采光很棒。


穿衣镜。小花地毯鲜亮活泼。


衣帽间是两头开门的格局。一侧和主卧连接,以灰色的玻璃移门作隔断;另一侧连接到一个小露台。 考虑到放置衣物的美观和实用性,衣帽间是开放设计,放弃了柜门,以轻纱作遮挡,视觉上轻柔不压抑。


与主卧风格大体一致,色调稍微严肃一些。

同款玻璃移门,背后是个小衣帽间。


设计师很爱的吊灯,线条感十足。 此外,木饰面下方仍预留了T5灯管的位置,以作补充光源。

暂时还未入住的儿童房。房间另外一边放了许多玩具和一顶小帐篷。

二楼外卫优先考虑了小朋友的喜好,使用了小白砖,十分清新。





在二楼主卧和儿童房上方搭建出来的小阁楼,作为一小方活动区。 整个楼梯和公共区域轨道都步置了感应灯。


花园是整个设计和施工过程中最期待的。以往许多案子的花园都是找专业园林公司做的,最终效果并不是很如人意。恰巧这期间接到好几套类似的设计和施工委托,于是团队开始在做院子这条路上打怪升级。


休闲平台。地面铺设了防腐木,无论是地面还是花池侧壁都嵌入了射灯。天色暗下来后,十分有氛围。

花园布局和功能十分清晰。



花园右侧利用循环水泵做了个小鱼池,水池区使用花岗岩,分割成块中间填放了鹅卵石。 在第一稿花园设计方案中,在水池区的位置是准备搭建一个工作小屋,后来考虑实用性便舍弃了这个想法。最终呈现的花园更加简洁。
TK设计
