访问APP
客厅
餐厅
主卧
厨房
卫生间
玄关
方案解析
茶室

95㎡简约日式风,三居室改成大套间

重庆俏业家装饰
关注
户型
一居
风格
日式风
面积
95㎡
位置
重庆市
方式
半包
预算
50万
方案解析

业主两夫妻都是公务员,平时工作繁忙,希望装修出来的家成为放松身心的栖息之所,不需要花哨装点生活,简单、清爽就好。女主人偏爱日式,所以整体风格很轻松就定了下来。设计师以大量原木主导日式的温馨格调,立体框线叠加简约的空间质感,让日式的经典元素在本案表现得淋漓尽致。

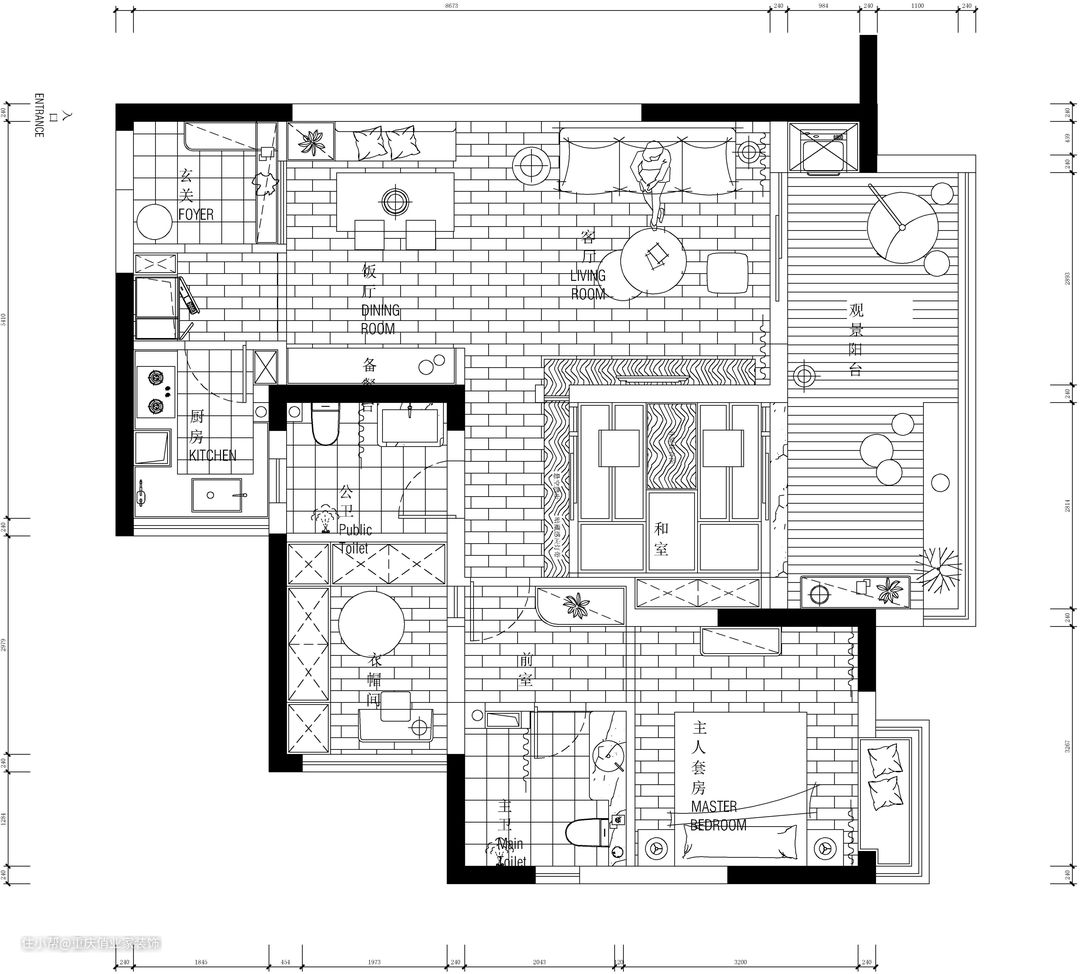
原始图

平面布置图 原始户型中规中矩,整体结构比较方正,玄关小,非承重墙较多导致空间割裂感强。考虑到家里常住人口主要是业主夫妻两人,所以本案设计多考虑空间整合与功能强化,给业主打造出最佳的居住体验: 其一,厨房“让位”增加入户玄关。 其二:次卧改成茶室。 其三:客卧改成衣帽间,并入主卧套房。

玄关

原始户型玄关过小,入户门正对客厅,开门就会一览无遗,缺乏隐私性。 所以设计师将原本狭小的过道隔断墙拆除,用镂空的木质隔断重新圈出一方玄关天地,使玄关与客厅形成似离而合的状态。在保证了隐私的前提下,又可以让阳光蔓延,入户就能感觉到宽敞、美观。 散落式铺就的灰白色六边形地砖贴,耐脏,防滑,又增加了玄关的趣味性和层次感,进一步将玄关与客厅空间分离,属于日式的立体几何感更加直观。

悬空的半墙鞋柜配上一字型收纳柜,对夫妻俩来说足够收纳,空间也不会显得拥挤。平时进出门随手放的快递、包包、钥匙等物件归置起来也很方便。

客厅

低矮、小巧、清晰的线条感,是传统日式的标准,也是客厅的主旋律。 满吊顶无主灯设计搭配奶油色背景墙,奠定了客厅简洁、淡雅的空间基调;通铺的原木地板又将空间的清冷中和,融入家的温馨。

电视机背景墙向过道延展增加小隔断,不仅是点缀,也是为搭建背后的茶室做准备。 抽屉+开放式布局的茶几比单一布局更实用;细密的十字网孔藤编是橡木茶几的点睛之笔,象征自然与手工艺的结合。

为了契合整体空间风格,我们并未选择带有转角或贵妃榻的沙发,而是通过简单的原木框架和棉麻质地的驼色坐垫组成,用素雅的框线为客厅增添宁静的味道。

餐厅

餐厅的位置在入户原过道处,新建玄关后餐厅面积缩小。如何在满足储物的前提下又不让用餐环境显得局促成为设计师思考的重点。

利用储物柜靠墙设置固定卡座,为另一侧留出更宽的过道,比起传统餐椅,卡座的活动空间更小,又不会影响用餐。

为了贴合整体的日式风格,选择实木餐桌,轻便又简约;内Z型桌腿设计感不会显得过分单调;方桌圆椅对比鲜明却又无比契合。

满墙的嵌入式储物柜,满足收纳需求,中空的置物台可以放小电器;白色柜面搭配原木色框架烘托出极简温馨的空间氛围。

厨房

厨房的部分面积被玄关征用后,为了给厨房创造更大的活动空间,将生活阳台与厨房合并,选择U字型布局,既能最大限度增加空间利用率,也能缩短下厨时的操作距离。 白色的石英石台面和墙砖让厨房显得简洁又好清理;橱柜的木质纹理让橱柜将白色元素中和,统一整体的日式风格,也让厨房变得淡雅起来。将冰箱挪到厨房门外,释放了紧张的厨房空间,也不影响下厨动线。

茶室

茶室由原本的次卧改成。经过电视墙的隔断就来到了茶室,朦胧的半透隔断先一步引出茶室的静谧。 为了降低层高,凸显茶室氛围,设计师将茶室设置成榻榻米,从台阶通过樟子木门进入,看见满屋通铺木地板,入室就能感到一种雅静。

降低层高后为了不让茶室变得压抑,设计师借用落地大窗增加茶室的通透性;用百叶窗帘替代传统的布艺窗帘,以此调整茶室的光影变化,将茶室导向更深的意蕴。 半开放储物格+L型封闭储物柜不仅能用来存放茶具、茶叶,还能美化茶室,不让空间过于贫乏。

主卧

为了强调业主夫妻的居住体验,设计师把原本的客卧改成衣帽间,并入主卧套房。 睡眠区: 卧室延续了整体的无主灯满吊顶设计,显得更简洁;设计师没有选择打掉飘窗,反而利用其方正的立体线条,搭配客厅同款的奶油色墙漆和奶茶色窗帘为主卧增添静谧舒适。 实木的落地床架和床头柜相得益彰,是在迎合整体的日式风格也是对休憩生活的写意。

衣帽间: 沿墙面制作的L型衣柜拥有强大的收纳空间;原木边框搭配白色柜门和黑色拉手是简单到极致的高级感。 双抽屉+单盖板组合设计的高斜腿原木色化妆桌,翻开面板就能使用内嵌的高清镜,完全能满足女主人的日常化妆需求。

卫生间

卫生间冷硬的暗灰与日式原木的温馨形成强烈的视觉冲击,这是设计师为了给生活保留一点不一样的韵味。 挂柜式安装的黑色柜体,灵活增加储物空间;黑底岩面配上纵横交错的白色脉络带来独特的视觉效果。