
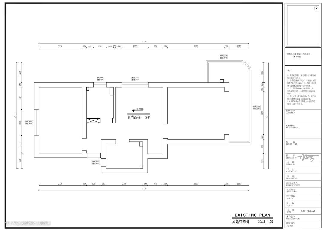
该项目是位于上海杨浦区的一套老房改造案例,由于房子已经有20多年的房龄,是典型的的预制板结构。原户型布局属于两居室,客餐厅空间较暗,厨房略显拥挤,于是我们针对厨房、客厅及卧室进行改造。将设计重点聚焦到如何提升空间储物、优化空间采光、增加家庭互动和放大空间面积等功能上。

原户型缺陷: 整体设计从平面开始,这套老房子采光真的一般,各空间独立家庭互动性不强,无舒适的就餐空间,整体利用性也不是很好。

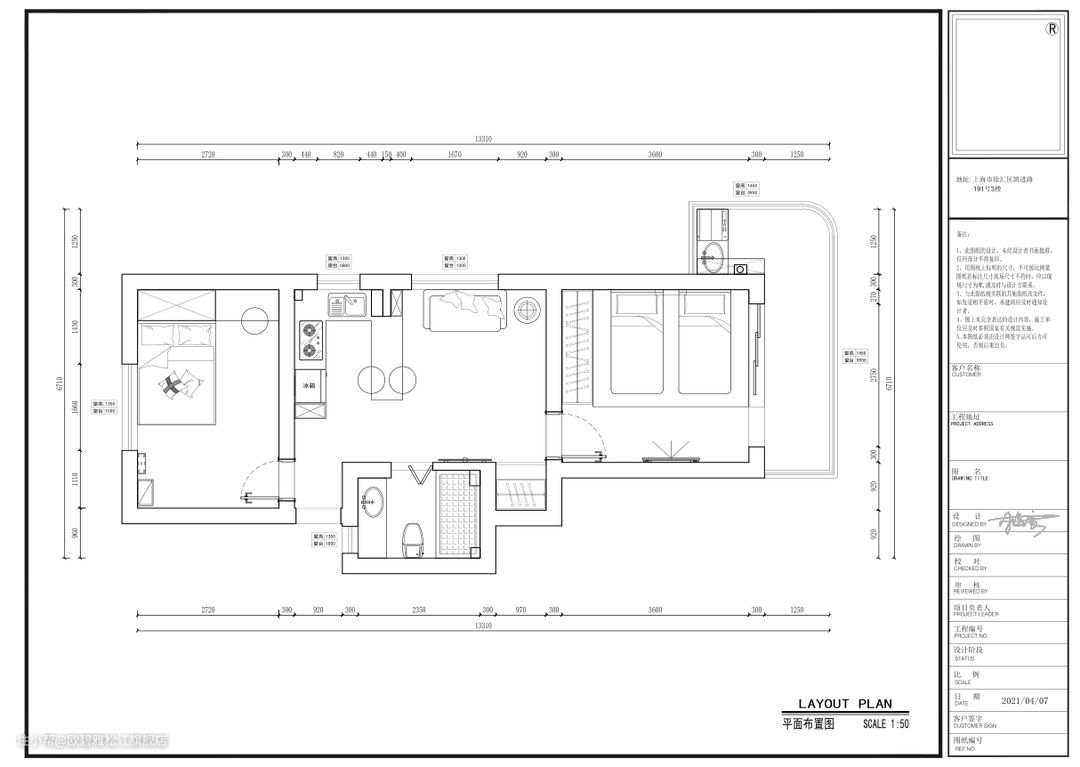
平面布置改造: 通过拆除厨房部分墙体,不仅完美解决了空间的局促感,还让日常家庭互动诉求得到解决。开放式的厨房搭配小吧台,也使烹饪、就餐、收纳等一系列功能得到完善。正所谓,到处皆诗境,随时有物华。

过道空间:考虑老房子之前都是采用少量水泥+沙+石灰膏混合而成,经过多年的使用,很多墙面会有开裂、酥松、脱落、空鼓等情况,所以拆旧时需要铲到红砖层。

儿童房改造:对于小户型来说,空间收纳与空间布局同时重要,多功能儿童房可以满足平时休息、办公、收纳等多种需求。

主卧改造:原卧室与阳台是有一面墙的,考虑其功能与采光性,设计师利用木质做隔断,保证空间私密性的同时也不影响空间采光。

厨房墙面拆除:设计师量房时,便已对户型进行了初步的设计,考虑空间的实用性和功能性,唯一的解决方案就是拆除厨房与客厅墙面(非承重墙结构),优化原始户型缺陷问题。

打通之后的客餐厨采用令人舒适的自然色调,实木多层木地板搭配灰白色六角瓷砖,加上由石英石组成的吧台餐桌,上方点缀一些局部色系的吊灯丰富空间的色彩,整个空间的质感得到了提升。

客厅一角设计半高展示架,可以随心情更换一些简单的艺术摆件,轻松打造一个业主品味的展示小角落。

小面积的原木风采用也丰富了客厅的色彩,维护深色和浅色的平衡。都说生活需要一些仪式感,一旁的咖啡机可以让自己在休闲时刻动手研磨一杯浓郁的咖啡,随风扑来的清香感静静书写生活中每一天的小确幸.....

一屋、两人、三餐、四季,这个65平米的日式小屋给你想要的平淡又温暖~

空间再小也不能委屈自己,在紧凑的小户型里这样设计既能省空间,又能拥有餐厅功能,那就是在厨房和客厅之间做一个高90公分、宽64公分、长1.5米的吧台,解决就餐的同时还可以直接衔接厨房操作台,相当于省去了专门的餐厅空间,让生活动线更方便。

为削减原始客餐厨之间突兀的梁柱,保留了原始的层高没做吊顶,简约清新的风格,没有过多华丽的装饰,进门非但不觉得装修太过简易,反而感觉格外宽敞!

狭长紧凑的原始厨房结构,通过开放式布局设计后,拥有集成灶、蒸烤箱、微波炉等电器,安置其中,并将冰箱嵌入,使得整体空间完整。带来时尚的高级感,纯粹内敛,又不失张力。

考虑到屋主的生活烹饪习惯,特别设计落差为10公分的高低台面,既满足了平时的使用需求,又能够避免损伤身体,颜值也不会受到影响!


拆除卧室与阳台之间的墙体,设计一个推拉门来隔断空间,木质肌理搭配纸质最符合日式自然清雅的韵味,从而让室内的区域划分显得更加的明显有层次感,自然而又清新,绝对能够让你看一眼就爱上!


背景墙采用珊瑚绿、浅灰色组合,搭配同色系的床品,散发骨子里的小清新!原木置物架与装饰画的点缀给人一种清新而又简约的文艺感!


应屋主需求,抬高23公分做地台,省了个买床的钱不说,还很节省空间,平时既是卧室也是休闲区,一房两用,非常符合年轻人“慵懒风”特点,两边圆形吊灯营造休闲惬意的休息氛围。


小小的卧室地台,却在简单平整中增添了多个收纳空间,各种抽屉设计,分门别类的摆放各种生活物品,条理性十足。

木饰面柜门与白色墙面十分协调,榻榻米+衣柜+书桌的组合,不管是论收纳能力还是论空间利用率,都是当之无愧的次卧或儿童房首选,1m²空间都不会浪费。


房子那么贵,边角空间也不要浪费,选用2公分的亚克力收纳展示架,高效利用立体空间, 轻松打造整洁居室,让旮旯空间不尴尬,条理清晰不拥挤。

卫生间每个功能划分明确,整体黑白灰色调,不仅符合屋主的生活习惯,并且考虑到以后宝宝的泡澡区,窗台下方选择“留空”设计,能让日常洗浴和深度清洁得到完美融合,营造精致优雅的轻松感。

卫生间门洞只有70cm宽,设计师选择「折叠门」来处理,通过巧妙的折叠门,可以让空间实现灵活的分隔与独立,小巧又方便美观。
