业主信息: 屋主是一对70后夫妻,职业为私营老板,性格大方、爽朗,讲道理,喜欢喝茶。在前期与设计师的沟通中,没有考虑过屋主夫妇已经有了孙女,但还那么洋气,设计方案比较中规中矩,保留了原始的三房。后面几次沟通下来发现屋主的审美和接受度都很高,所以大胆改成了两房的方案,没想到一拍即合,就有了这套案例的呈现~ 案例信息: 项目地址 / Address:鉴湖南院 设计施工 / Co :铭品装饰 风格 | Style:现代简约 项目面积 | Area:128㎡

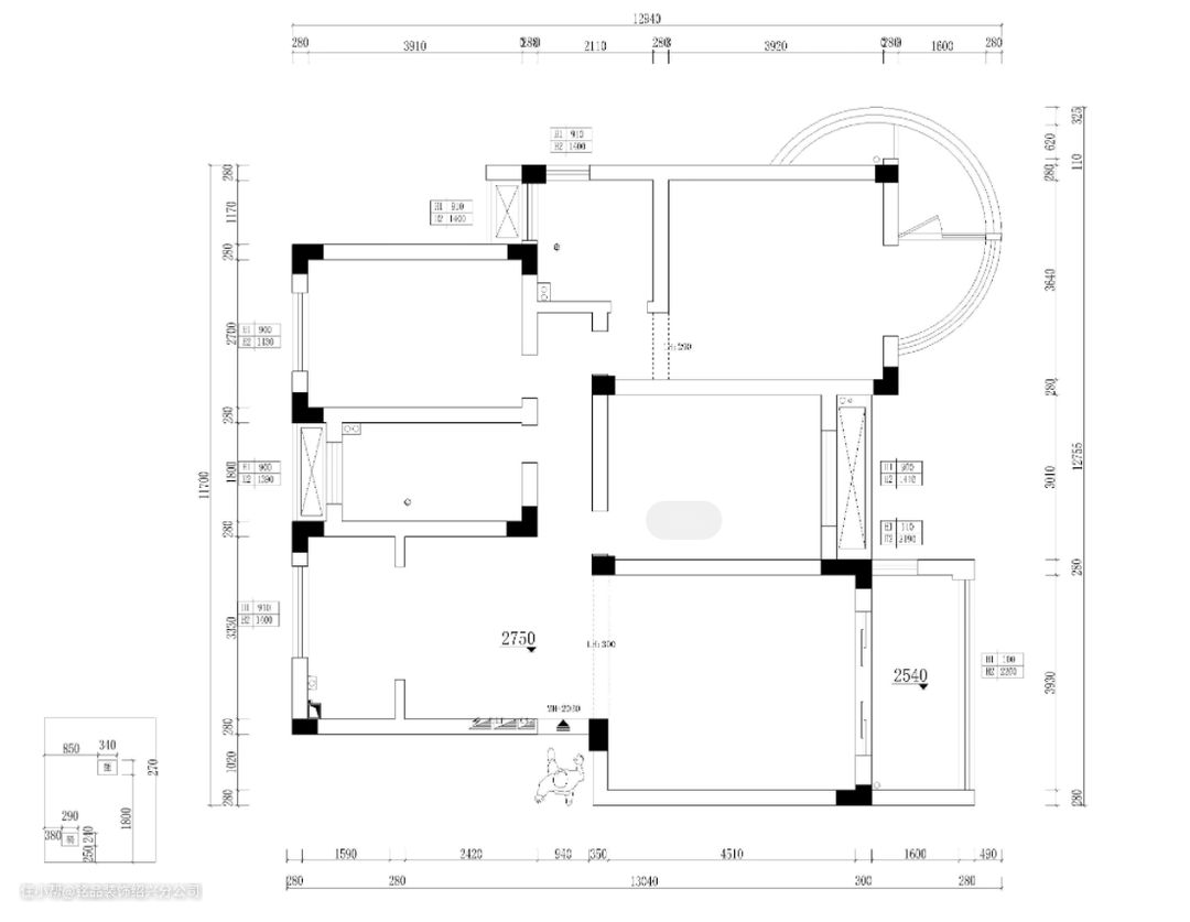
▲原始结构图 改造需求: ① 空间内隔断墙比较多,需要拆掉部分墙面,打通空间。 ② 进门就是过道,空间没有隐私。 ③ 阳台面积较大,需要合理利用空间。 ④ 解决主卧门正对过道的问题。

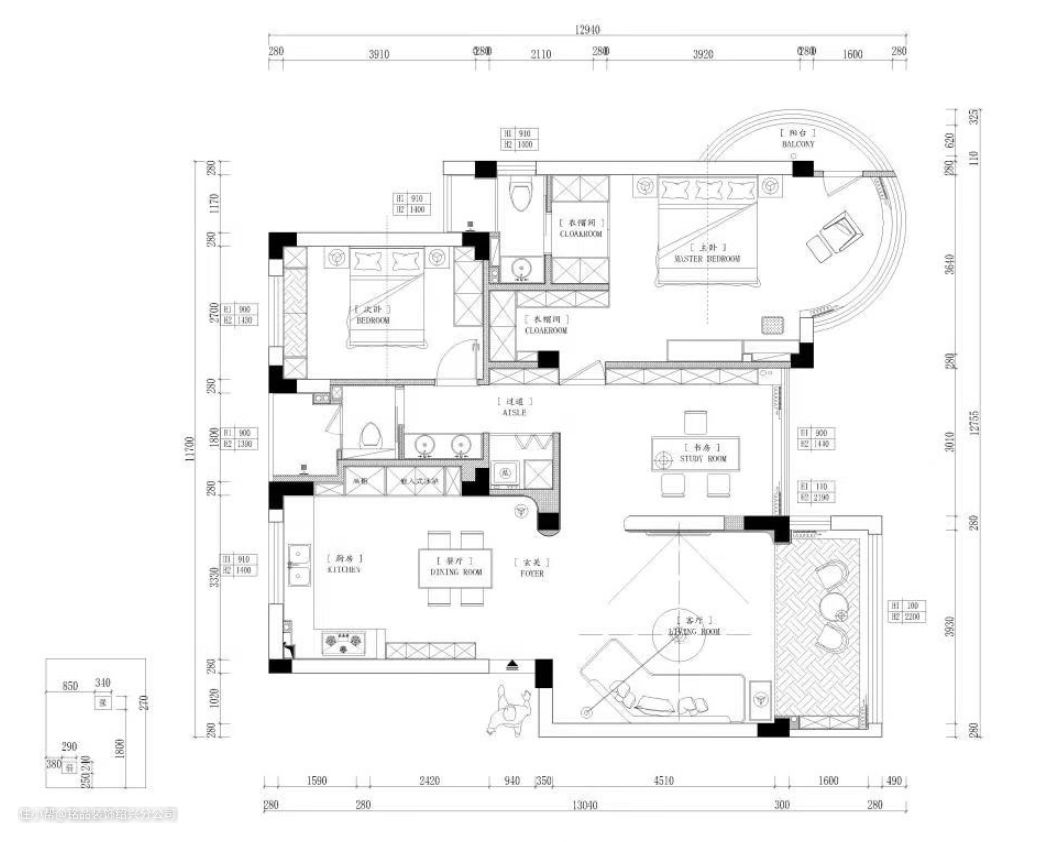
▲平面设计图 设计亮点: ① 方案上调整了进门既是过道的尴尬,过道移位,利用承重柱增加造型玄关,同时也变相拉长了原餐厅的尺寸。 ② 开放式厨房的设计也让空间更显大气。过道调整后把书房打通,跟客厅形成一个悬浮电视背景墙,从视线上增加客厅的延伸感,也让原本狭长的过道隐隐融入书房。 ③ 客厅大阳台落地窗拿来晒衣服太浪费,做成地台茶室,业主夫妇朋友可以围坐喝茶。 ④ 考虑到洗衣晒衣问题,把原过道一部分改成独立洗衣房,洗烘及简单晾晒可以完成。 ⑤ 客卫增加干湿分离和双台盆设计,提升实用性和档次。 ⑥ 为了规避主卧门正对过道尽头,把书房的书柜和储物柜以及主卧房门做成隐形门设计。 ⑦ 卧室的独立衣柜和衣帽间两套配置也满足了业主的储物需求。主卧预留小阳台保障晒衣功能。
方案上调整了进门既是过道的尴尬,过道移位,利用承重柱增加造型玄关,同时也变相拉长了原餐厅的尺寸。

过道调整后把书房打通,跟客厅形成一个悬浮电视背景墙,从视线上增加客厅的延伸感,也让原本狭长的过道隐隐融入书房。

悬浮式的电视背景墙,会让客厅更有设计感。白色墙面、黑色踢脚线和灰色地砖,构成了现代空间的基调。在材质上选择偏向于有质感的岩板、大理石等,为客厅注入高级感。电视墙右侧还做了隐形收纳,有一定的储物功能。

客厅大阳台落地窗拿来晒衣服太浪费,做成地台茶室,业主夫妇朋友可以围坐喝茶。电视背景墙后是书房区域。

沙发背景墙用艺术漆在背景墙上简单打底,是简单不容易出错的选择。外拼接深色系木饰板,做出一些立体造型。极简风的线条灯点缀墙面,带来一些氛围感。沙发呈L型摆放,确保空间的完整性,又不失大气。灰色+亚麻的质感,给人一种惬意舒适感。

餐厅选用岩板餐桌搭配皮质餐椅,浅灰色充盈其中,营造舒适质感和高级的就餐氛围。圆弧形的靠背能够舒背疲劳,久坐不累。灯具搭配了极简风一字吊灯,360°发光,无死角无暗区。

从餐厅望向客厅视角~色系的统一与开阔的空间。

墙上的手工艺术画,用不同的材质和颜料,进行调色,构成一片片大小不一的色块,在画面中呈现出质感的肌理效果。

厨房大幅度的纯白色,搭配沉稳的黑色台面,将经典展现的更为出色。百叶帘的引光效果更好,为屋主呈现的是一个舒适的厨房体验。

为了规避主卧门正对过道的尽头,把书房的书柜和储物柜以及主卧房门做成隐形门设计。主卧的独立衣柜和衣帽间两套配置也满足了业主的储物需求,还保留了小阳台的晒衣功能。

床头背景墙做了拼接的设计,以奶茶色墙面做打底,在床靠背的部分做了砖红色皮革装饰墙面,床头两侧点缀金属风吊灯,看起来更精致优雅。床及床品、窗帘也搭配了与背景墙相近的色系。

床头、床尾细节照~ 窗帘连接墙面做了搁板和置物抽屉,满足屋主实现小小梳妆台的需求。配色上以黑色+爱马仕橙,低调耐看还很有活力。和宝石蓝的座椅撞在一起也很搭。

次卧作客房使用,墙面贴了奶茶色壁纸,搭配亚麻灰的床,尽显舒适和随性。墙面上的圆形挂画,给空间带来一些缥缈的意境。

主卧内的卫生间,左侧是台盆区,右侧是独立衣柜,走廊的尽头是淋浴区,门选择了长虹玻璃,一眼望去,空间很显通透。

纯黑色玻璃质感的书桌,透亮又净洁,空间视觉的延伸不遮挡;边缘采用圆弧形设计,为居家生活提供了安全保障。爱马仕橙的座椅是空间的一抹亮色,为空间带来些许活力。

窗帘选用百叶帘,搭配无主灯+无吊顶设计,整体空间更显宽敞。当阳光照射进来时,整个家变得更温柔了。

关于收纳,书桌背后做了通顶柜,黑色封闭柜和开放格,既能收放生活用品,还能做面展示墙,实用却不压抑。

客厅阳台改造为地台茶室,这个设计推荐给阳台区域较大的小伙伴~ 整个地面抬高30cm做休闲地台,一侧设置开放式置物格,作为收纳展示区,中间区域布置休闲椅和蒲垫,设为品茶区。

从餐厅看向茶室视角,百叶帘的设计,让光线有了更多变化的美感。一侧的开放式置物架可以收纳些书籍或是装饰摆件。

