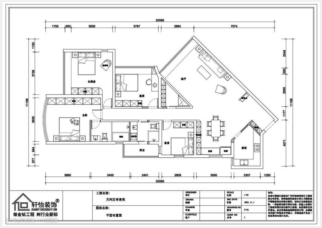
✿゚本期案例是一套170㎡的新房装修,主打现代简约风,业主对原户型的门型有多处不满意,通过重开门的方式改变户型问题,满足业主的需求,为业主打造了一个理想家的模样。

✿゚户型问题 1、原户型厨房门开在玄关,玄关没有鞋柜位,厨房去餐厅比较绕,厨房采光通风不好; 2、原户型阳台需要从客房进,客房用起来不方便; 3、原主卧内卫门对着床,需要重开门;

✿゚改造思路 1、往餐厅方向重开厨房门,优化厨房到餐厅的生活动线,以此借助客厅光源来增加厨房的采光,一举两得; 2、把公卫窗户改成门,封掉客房通往阳台的入口,让客房使用起来更方便,拥有更多的私密空间; 3、把主卧内卫门重开对着主卧衣柜,解决了卫生间门对床的问题,同时做大卫生间的使用空间,根据业主需求放下浴缸,增大公卫的使用面积。
入户舍去繁杂的玄关柜布局,巧妙的利用1.2M高的迎客松盆栽作为遮挡物,成功避免了入户则是客厅的尴尬,同时利用入户到客厅的位置,布置了一台1.5M的移动式升降舞蹈把杆,方便业主的小孩作为舞蹈兴趣的训练地,为业主打造了一个功能型空间。

一个2M宽的大飘窗设计,让整个客厅空间的光线倍增,从入户到客厅,视觉效果得到有效扩容,肉眼可见的通透,简约气质瞬间充满整个客厅。

简约温馨是整个客厅的设计调性,以白色为主配色,整面白墙没有过多繁杂的装饰品,与地上的小格子地毯形成鲜明的对比,用一张灰色长沙发和一盏灰色大罩灯作为客厅的主要软装配饰,简约不单调,再配上一张深蓝色单人沙发,层次鲜明的配色搭配,格调生活一整个拉满。


整面白色电视背景墙做成一字型设计,电视做了内嵌处理,两边留位作为小饰品摆放,简约的抽屉地柜,同时满足收纳与展示的功能,高端大气的气质一呼而出。

从电视背景墙地柜延伸到大飘窗,设计师做了地台和开放收纳格设计,与飘窗同高的三层开放收纳格,是作为家里陈列品的主要展示空间,与飘窗地台上摆放的大瓶插花相辅相成,在白色窗纱的映衬下,不经意间落落大方,让人有种此生长居于此的感觉。


从飘窗回顾到客厅,能感受到视线的延伸感,视觉上增强了空间感与通透性,减少了割裂感,也就是肉眼可见的——客厅变得更大了。

入户左侧过来则是餐厅,从餐边柜到木质餐桌椅,再到冰箱、岛台,都是以白色系为主,整体营造了一个明亮干净的用餐环境。

四人桌布局的餐厅,刚好满足日常用餐需求,搭配三盏吊灯,温馨氛围瞬间拉满。餐边柜+岛台的一体化设计,成了餐厅设计一大亮点。


整面到顶定制餐边柜的多元储物功能设计得非常丰满,中部镂空设计,作为展示空间,上下暗开门作为封闭收纳空间,从餐边柜延伸出来的岛台设计,作为小家电摆放区,下面依旧采用暗开门的方式作为封闭式收纳空间。冰箱外移餐厅后,与岛台空出的空间完美契合,体现了设计师对尺寸的精准把握。


厨房重开门后,直接出门就是餐厅,生活动线缩短,更加便捷顺畅。玻璃格子推拉门设计,方便客厅光源穿透,增加厨房采光,整体门面设计感拉满。


厨房整体设计以米黄色为主,根据厨房的户型结构,为了保证厨房空间的有效利用,设计师打造了一个“U”型操作台,洗切煮更加便利,提高了妈妈的烹饪体验感。 ♥米黄色的上下橱柜与灰白色的地砖形成鲜明的对比,简约的设计理念再次凸显,为业主打造了一个干净整洁的厨房空间。上下吊柜与餐边柜设计统一,都是暗门设计作为封闭收纳空间,让厨房看起来更加干净卫生。

嵌入式煤气炉设计与智能抽烟机的布局,再配上下地柜超贴心的燃气通风口,保证厨房重地的油烟味不至于到处流通,加上左边的玻璃门开窗,不管是采光还是通风,都是一个棒字了得。

过道整体设计规整素雅,远看普普通通,近看细节满满!

地面通铺米白色瓷砖搭配白墙的素雅,尽头以主卧门截止,深长直达4米多,大气氛围感直接拉满。白色门套的选择,让空间轻盈感得到最大化,搭配天花多点式光源设计,时尚通透。

主卧整体十分通透明亮,归功于大大的弧形落地窗。其次主卧的收纳功能也是一大设计亮点,榻榻米布局+靠背柜收纳一体化设计,对于收纳需求强烈的业主是十分友好的。

通体以纯白色为主,抽屉式床体收纳,开放格靠背柜设计,上面还能作为书桌摆放书籍,真的一柜多用,收纳功能杠杠滴!

主卧留出空间布置了按摩椅,疲惫了一天回来使用刚刚好,释放一天的疲劳只需一张按摩椅,靠近落地窗布局,在释放疲劳的同时,还能观赏窗外的风景,真是怡然自得呢!

如果主卧的收纳功能仅限于榻榻米,那真的是不值一提,当然还有定制到顶衣柜收纳啦,整面墙做了嵌入式到顶衣柜设计,避免卫生死角问题,还让整墙保持简约大气的格调,非常适合主人房的气质,收纳与颜值都非常出圈。

主卧进门则是主卫门,主卫做了常规的干湿分离设计,整体保持整屋的纯白色色调,为业主打造了一个干净舒服的卫浴空间。


采用75CM高设计的白色洗手台+镜面柜布局,再搭配墙边的小型置物架,大小物件一并收纳,让日常洗漱用品无处可逃,让干区看起来更加干净卫生。

同时安置了三个插座作为卫生间的用电使用,吹风机与理发夹的使用更加便利,提高了居家幸福感。

湿区使用长虹玻璃打造了一个大面积的淋浴房,加上铝合金开窗,有效改善了淋浴房的采光和通风。其次根据业主需求,布置了一个小型浴缸,保留淋浴花洒套装设置,让业主可根据自身需求使用淋浴房,真的贴心又便捷。


长辈房的通透和采光,得益于大飘窗的设计,保留地台设计,不仅能用作物件摆放,闲时休憩时间还能坐在上面享受窗外的风景,怎一个“爽”字了得! 除了大飘窗,长辈房在空调底下还保留了一个小天窗,采光效果再次加强,十分贴合长辈房的使用,避免昏暗环境下发生的安全问题。


左右两边的定制床头柜,分别以拉门与抽拉柜设计,收纳储物功能非常丰富,其中顶面同样可以作为摆放相框、画框等物件,展示功能再次突显。 为了方便长辈休息,在设计师的贴心安排下,布置了一台墨绿色可伸缩的休息椅,平时作用休息放松也是在适合不过了。


长辈房的设计,真的是处处彰显设计师的贴心之作,半圆弧的整面到顶衣柜设计,不仅有效避免日常磕碰的安全问题,还能避免日常卫生死角的打扫问题。开放格+暗门设计,收纳与展示功能兼备,多元储物空间设计十分贴合生活需求。

另一个次卧经过设计师改门后,作为客房和书房一体使用的多功能房间,使用更加便捷,闲时用作业主的办公区,有客人来访时还能作为客房给客人留宿用,真的一举两得呢。

多功能房的收纳空间简约却十分丰富。开放隔板打造了一个小型书柜,作为业主办公用途的读物空间,其次就是整面到顶衣柜的布局,让多功能房的收纳空间更加丰富,满足客人与主人的日常生活需求。

整屋的采光是十分和谐的,从主卧到儿童房,都是大飘窗设计,通风和通透性非常好,保留地台布局,实用与美观兼备。其次儿童床作为榻榻米设计,搭配动物图案床铺,为小朋友打造了一个童真满满的休息空间。

儿童房的收纳功能相比其他两个房间,更为丰富突出。整面到顶衣柜以白粉撞色为主,用灰色花形把手作为拉门点缀,真的很贴合女孩子的少女心呢。


再次采用粉白撞色设计的收纳柜+书桌一体化设计,实用性与高颜值兼具,开放收纳+封闭收纳组合布局,多元收纳设计满足小孩的储物需求。


公卫进来,是集洗衣功能与卫浴空间于一体的多功能卫生间,采用基本的干湿分离设计,且经过设计师重开阳台门后,穿过公卫可到达阳台,让客房释放更多空间,让公卫更加合理利用。

洗衣机在洗手台的延伸位做了嵌入式处理,让公卫的使用空间更加合理化。收纳洗手台+镜面柜的设计,收纳与日常整理妆容都非常便捷,为业主打造了一个实用整洁的卫浴空间。



