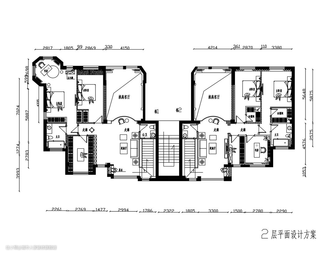
业主由一家五口的两代人组成,选择这套双拼别墅就是为了满足两代人共同居住又能保留相对独立空间的和谐愿景。该别墅分为栋1和栋2两栋楼。其中东侧栋1留给父母两口人居住,西侧栋2留给子孙三口人居住,两栋别墅仅有一墙之隔,却实现共同居住的愿景。业主虽然表达出对欧式风格的强烈喜好,但考虑两代人年龄、生活习惯存在差异,设计师分别设计两种欧式风格,既欧式古典和简欧轻奢。


原始布局: 1、考虑到老人日常生活需要照顾,要求在栋1安排一间保姆房。 2、栋1要规划摆放佛龛的房间。 3、栋2要规划2~3个衣帽间。 4、业主担心挑空客厅会不会显得空旷。 改造布局: 1、考虑老人生活需求,特别在餐厅东侧设置保姆房。 2、紧邻保姆房设置佛龛室。 3、栋2一层次卧空间里设置了衣帽间,二层主卧与次卧中也分别设置了衣帽间。 4、挑空结构可以提升自然采光效果,也会增加纵向的互动关系,针对可能会感到空荡问题也规划出解决方案。包括布局上做好动静分离,主题墙会带来更丰富的设计感。不容易产生空旷的感受。
奶白色为主色调,在进入客厅前,玄关区域形成很好的过渡作用。采用大理石拼花地砖,像漫天星光一样点缀的水晶灯,仿若穿过了光影斑驳的过道,定制多功能玄关柜,欧式造型与整体风格适配,流露出优雅奢华气息。


利用挑空结构的高度,定制四层水晶灯,发挥出水晶灯的装饰效果。颜色适中而又温润的石材使空间典雅端庄,尤其利用好线条的设计。可以将空间的氛围感展现得淋漓尽致。



选择了纯正的欧式沙发,造型刻画出细腻的层次,辅以香槟色衬托。搭配精致的装饰,柔和靓丽的水晶灯点缀。整体空间明亮通透,宽敞自如,相比主客厅色调会更加淡雅。




一层餐厅在色彩上展现出古典美与现代家居风格结合,以深木色、雅致的淡金色为基调,营造奢华的气质。优雅繁复的地砖花纹和楼梯的描金图案与餐厅的风格交相呼应,深与浅的比例恰到好处。


二层餐厅以蓝白配色为主,带来清新优雅的氛围感,定制白色餐边柜,可以摆放各种日常零食与酒具。搭配岩板材质的六人位餐桌,满足日常就餐体验。

厨房选择实用的u形设计,可以形成烹饪区与放置家电的合理格局。冰箱嵌入式设计,整体看上去没有突兀感。上下柜铺满墙面设计,不仅充分利用空间,还可以提供更大收纳容量。白色系欧式造型的橱柜让空间具有耐看不过时特点。




以深棕色配色为主,带来大气华贵的宫廷风,高级的定制墙板、家具与镶嵌金边的设计,点缀出华贵的气质。也传达出浓厚欧式文化气息。床角一侧定制罗马柱,不仅起到典雅的装饰效果,还为老人出行提供“扶手”意义。





两间次卧都选择淡雅的浅色调配色,为欧式风格带来清爽的氛围感。地板均选择“田字形”铺法,显得富有高级感。与次卧1不同,次卧2房间面积更大,宫廷风的元素更多,利用罗马柱带来奢华居住氛围感,不占太多空间,却起到很好的装饰作用。


栋1的两间古典欧式卫生间,展示出优雅大气的氛围感。通铺深大理石瓷砖,整体空间华贵优雅。卫生间的浴室柜均选择蜡化工艺的欧式实木浴室柜,表面上光泽度还能起到防腐防潮的作用的,优雅外观带给家人不尽的舒服触感。在功能上,浴缸、智能马桶,为老人带来方便实用的功能。





茶水室倾向中式风格,选择水墨风的大理石背景墙,搭配实木茶台、各类茶具、装饰,形成富有惬意轻松的氛围。茶水室整体设计大气雅致,虽然倾向中式风格,但又与整体的欧式形成自然的过渡,可以从富丽堂皇的欧式大宅中找到休憩之处。




本案设计师介绍 建极高端设计师 董与 中国建筑装饰协会注册室内建筑师,毕业于八大美院之一的鲁迅美术学院,后再法国EcoleCanondo进修室内建筑。2008年在美国B.Altman&Co公司工作2年,回国做个人设计工作室,主做酒店别墅设计工作。2013年开创全案别墅设计模式的先河,2018年加入尚美饰家集团任建极设计总监。 2006中国室内设计大赛银奖 2010荣获“中国十大室内设计师”称号 2012中国年轻百名优秀设计师 2014十二运帆船竞赛中心,将军石温泉酒店设计获亚太室内设计大奖 2015全国住宅装饰装修行业优秀设计 2016荣获第二届中国筑巢奖室内设计类金奖 2017科勒杯中国室内装饰设计金奖 2019济南章丘古建筑博物馆“天兴泰”室内设计获中国室内设计金堂奖 2021尚美饰家最佳设计师 2019~2022期间主做济南各个别墅区,济南院子、大华紫郡、琼华九璋、漫山香墅、杨柳春风、金茂逸墅、 景粼原著、紫麟台、锦绣辰园、金茂墅、九里晴川等各大别墅区作品50余套。

