该案例是来自厦门一元花园的实拍案例,该业主家的户型是一室一厅一厨一卫的小户型图。有了小朋友以后,家庭的需求发生变化。一方面是小朋友与日俱增的衣物、玩具,导致收纳需求暴涨;另一方面是考虑到小朋友的安全性和成长性,加之工作上的变动,屋主是位伟大的单亲妈妈,考虑到孩子未来的学业问题置办新家,为家庭成员换个更加舒适的场所。 对于屋主而言,家是能让人放松下来的地方,一回到这儿,身心总是温暖、自在的。丰富的旅游经历,一次次与自然的亲密接触,也让两人对自然元素多一分偏爱。

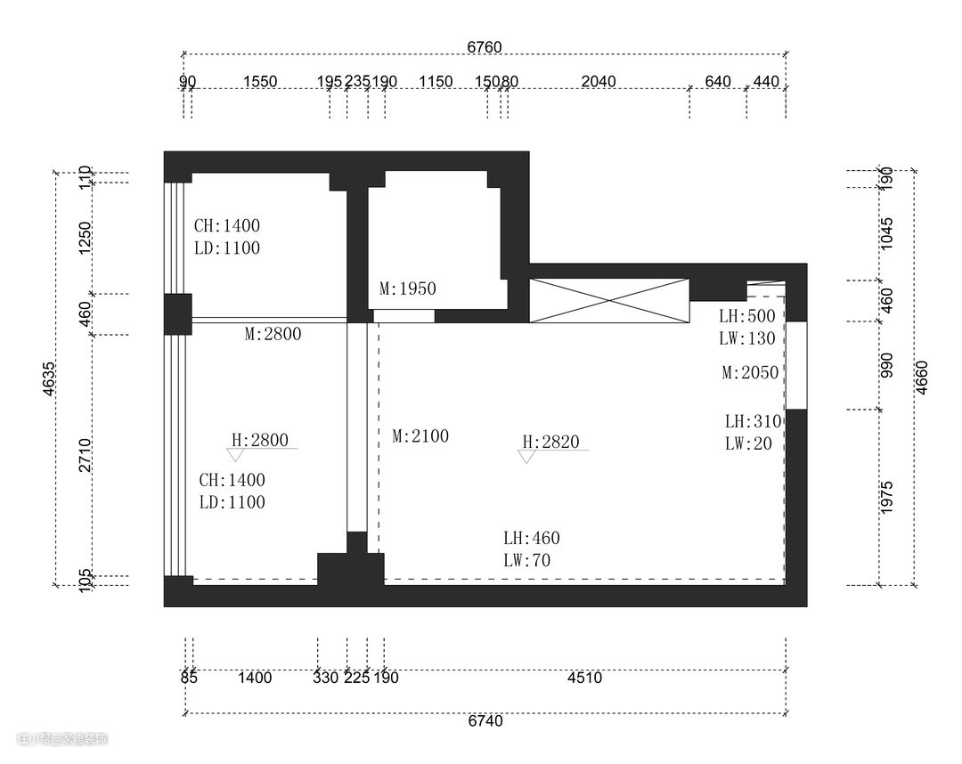
原始户型缺点 Original house type disadvantage 1、卫生间空间封闭,没采光 2、大厅空间狭窄闭塞,没有就餐区 业主需求 The owner needs 1、需要有个单独的卧室空间以及会客区、就餐区 2、卫生间实现干湿分离 3、充分利用空间,增加储物功能

户型改动 Family changes 1、将原有生活阳台改为卧室,腾出大厅空间作为客厅、餐厅 2、合理榨干每一寸空间,尽量实现空间的多功能性,同时满足家庭的需求 3、卫生间干湿分离,干区外移方便多位家庭成员使用洗手间
改造前的现场实景图

原始的户型比较小,软装比较落后。
浅灰色沙发极具造型感,较小的体量为四周留出流畅的动线。搭配白色小圆几,勾勒出一个舒适宜居的温暖空间,怡然自得享受家的休闲乐趣、轻松惬意的地方。





餐厅靠近入户,与客厅间互动性良好,连通无界,岩板原木餐桌搭配同色系的原木餐椅,打造烟火十足又雅致清新的用餐氛围。花朵隔热餐垫,不使用时可磁贴在冰箱门上,点缀家居之美功能多样,环保安全清新简约风。


打造L型橱柜及操作台,地面选用仿古地砖,防滑且更易打理,白色地柜搭配白色高柜,视觉效果让空间更显开阔明朗,将消毒柜嵌入其中,美观且整齐。


最大化的利用有限空间,将原有生活阳台改为卧室,用玻璃门做隔断,白天敞开推拉门,让室内光线得以自由流转。合理榨干每一寸空间,尽量实现空间的多功能性,同时满足家庭的需求。当然颜值和舒适度也是不能打折的!

卫生间干湿分离,干区外移方便多位家庭成员使用洗手间。浴室柜底部悬空,镜柜也可以进一步拓展收纳,面积不大的卫生间经过精心设计,也变的十分舒适。玻璃推拉门为湿区引入光线,整个卫生间都有充足得光线。墙地面都铺贴灰色瓷砖,搭配白色美缝,干净整洁也很大气!

入户左侧设计鞋柜、储物柜一体式让空间整体性更好,也解决了小空间的收纳问题。鞋柜区域在中间做了一排镂空设计后期进门放包和钥匙之类的东西,同时右侧餐边柜的颜色与鞋柜相统一,并通过白色柜门作为过渡,运用色彩将空间更好的融为一体。



