本案是半山悦的一套独栋别墅装修案例,整体设计以欧式风格为主,同时也融入了许多的现代元素,打造出贴近业主生活习惯的家居环境。

负一楼原始结构图,主要空间是车库和一个超大的花园组成,格局较为杂乱。

负一楼平面设计方案,将车库旁边的入户空间改造成了带卫生间的保姆房,挨着储物间和洗衣房,方便家政阿姨洗衣和储物,车库的另一侧做了空间的搭建,作为晾晒区。 超大的花园被一分为二,一部分做搭建变成了室内空间,将餐厅和厨房的功能规划在了此处。另一部分则作为庭院休闲使用。

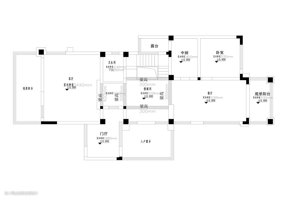
一楼原始户型结构图,原始结构中将客厅、餐厅、厨房都放置在了这一层,但遗憾的是各个空间面积都较小,不符合别墅品质生活的定位。

一楼平面设计方案,一楼的空间格局做了很大的调整,整体功能以待客会友为主: 1、把原来的客厅空间改造成了书房,保留了外侧景观阳台。 2、门厅与入户露台做了打通处理,变成了玄关收纳空间。 3、入户露台的右侧做了搭建设计,与原始格局中的餐厅合为一体,变成了一个带休闲书吧区域的超大的客厅空间,加上景观阳台,空间更加开阔。 4、原始格局中的厨房与小卧室打通,改造成了一件带衣帽间+独卫的套房,作为客房使用。

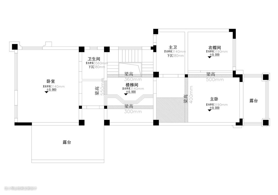
二楼原始户型结构图,原始格局与一楼一样,空间布局也需要做一个大改造。

二楼平面设计方案。二楼主要是作为家人的休息场所,在一楼搭建的基础上,二楼在同样位置也做了搭建,整体规划了3个卧室套房,两个老人房和一间儿童房,均带有独立的卫生间和衣帽间收纳,儿子房内还做了一个独立的学习区,满足家人居住的舒适度。

三楼原始户型结构图,有一个超大的露台,可塑性很强。

三楼平面设计方案。基于业主夫妻两人的要求,将主卧套房规划在了三楼。

客厅沙发一侧墙面做了一组储物柜,上半部分做成开放式的收纳格,可展示收藏品、装饰品,提升空间颜值效果。

客厅灰色与棕色的沙发组合成了围合式的格局,这样灵活的设计更加适合家人、朋友聚会和情感交流的需求。

天然大理石茶几,做了去棱角的圆弧造型设计,既不过分张扬,又能恰到好处的体现高雅气质。

客厅空间全貌

餐厅没有采用欧式常见的西式长桌,而是选择了更符合国人用餐习惯的圆桌设计,大理石桌面黑色沉稳,别具一格,搭配棕色的皮质餐椅,更显雍容华贵。玻璃瓶中的向日葵,也带来了亮丽的生机。

西厨




三楼主卧

主卧床头灯

主卧浴室

主卧书房

主卧书房

主卧衣帽间

主卧衣帽间

老人房

老人房衣帽间

儿子房卧室

儿子房学习区

儿子房全貌

儿子房衣帽间

茶室书房

茶室书房

茶室书房

茶室书房











负一楼电梯口端景

门厅

玄关


主案设计:李轲团队 级 别:墅装设计师 毕业院校:西南师范大学美术学院油画专业 从业年限:21年 设计理念:家,不是物质的简单堆砌,而是整体的和谐共鸣,盲目堆切只会使之压抑、庸俗。空间,是室内设计核心的要素,空间艺术是物质需求和精神需求的统一体。风格,是文化的延续,是业主审美情趣的再现。 擅长风格: 简欧风格、新古典主义、法式、美式乡村、新中式…… 案例作品:半山悦、锦绣花园、中海国际、蓝光雍锦园、保利两河森林、翡翠城、长滩一号、麓山国际社区、中海国际社区央墅、中海国际社区峰墅、保利198国际社区、雅居乐国际社区、牧马山国际社区样板房、蔚蓝卡地亚别墅区.....