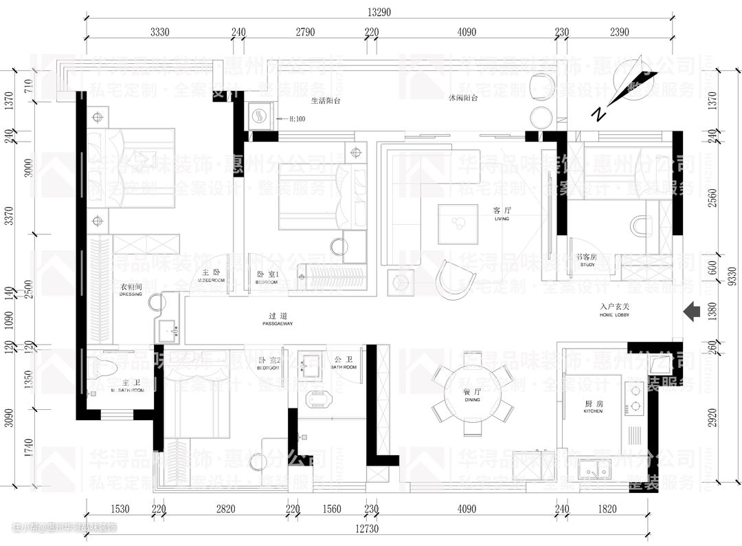
方案解析
本案是一套现代轻奢风格的四口之家,业主家有两个男孩要求小孩房必须有书柜及衣柜。还有主卧想要拥有衣帽间,同时不想卫生间门对着床。设计师从实用性出发,给予空间流畅的动线,呵护生活细节的条件下满足了业主的需求。主卧定制L型衣帽间,避免了卫生间门对着床头的尴尬。

客厅

客厅墙面少有装饰,呈现干净利落的淡色空间。低矮的沙发和茶几,让客厅显得尤为宽敞,流畅的曲线线条,透出一分随性,适合用来接待客人。




餐厅


餐厅采用展示柜+收纳柜的形式,让餐边柜拥有多种功能。皮质座椅略显厚重,给人安稳之感。
卧室

设计师为了满足业主的收纳需求,大胆的将主卫缩小后打造L型衣帽间,充分满足了收纳的同时也阻挡了卫生间对着床头的尴尬。

儿童房临窗设计了一套组合书柜与衣柜,光线良好,适合日常学习阅读,满足日常收纳,也给孩子提供休息的空间。
