方案解析
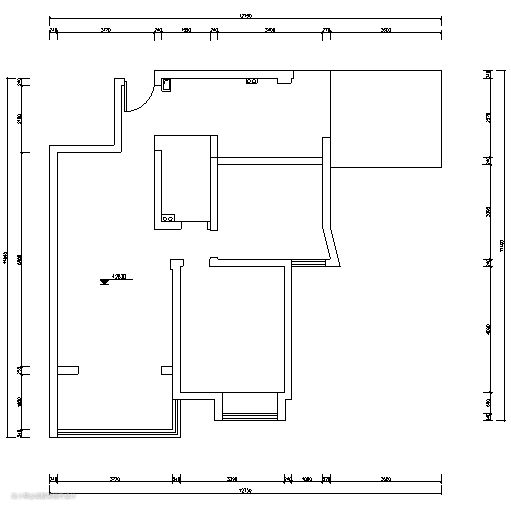
原始户型图

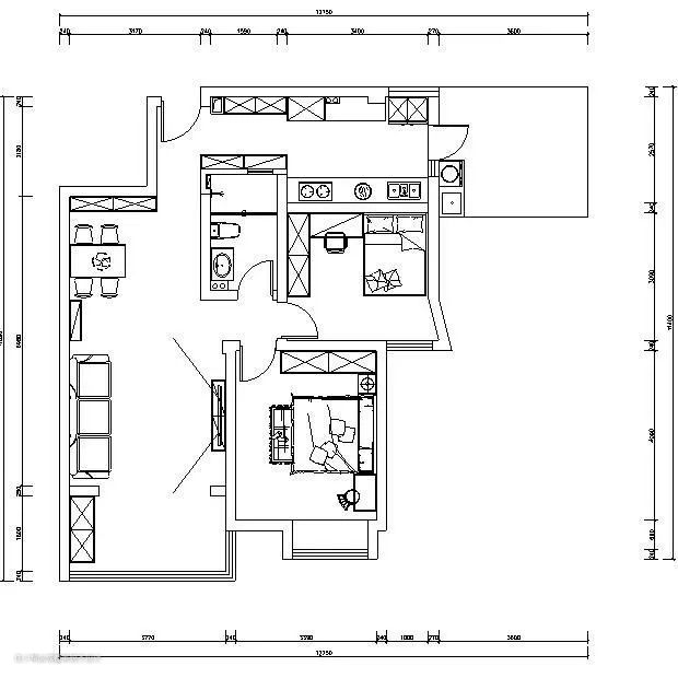
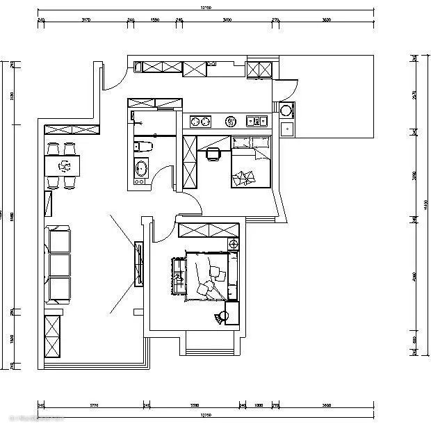
平面布置图

入户玄关

厨房
厨房和门厅联动,形成一个开放式厨房 整体厨房采用肤感膜加细线条以及金色有质感的拉手



餐厅
餐厅区域做了一个传统的餐边柜 潘朵拉可变的餐桌

客厅
客厅背景是石膏线条+墙布 电视墙是石膏线条+角花




走廊
让法式风情注入一丝现代气息,创造丰富的视觉体验

主卧
棕色墙面有了石膏线的加入增添了不少立体度 搭配低饱和度的颜色打造出不一样的视觉体验


卧室采用木纹砖进行铺贴 集于衣帽间,梳妆台,睡眠区为一体的套房

卫生间
干湿分离

设计团队


原始户型图

平面布置图


厨房和门厅联动,形成一个开放式厨房 整体厨房采用肤感膜加细线条以及金色有质感的拉手



餐厅区域做了一个传统的餐边柜 潘朵拉可变的餐桌

客厅背景是石膏线条+墙布 电视墙是石膏线条+角花




让法式风情注入一丝现代气息,创造丰富的视觉体验

棕色墙面有了石膏线的加入增添了不少立体度 搭配低饱和度的颜色打造出不一样的视觉体验


卧室采用木纹砖进行铺贴 集于衣帽间,梳妆台,睡眠区为一体的套房

干湿分离

