秉持以人为本的设计理念,追求更好的居住体验,打造可持续性住宅,让设计师们不再局限于仅仅提出功能性解决方案。 恰如歌唱者对于情感的运用,完成对自然光的植入和灯光的交叠运用,赋予空间流动感和韵律感,才能真正构筑出富有灵魂的人居空间。

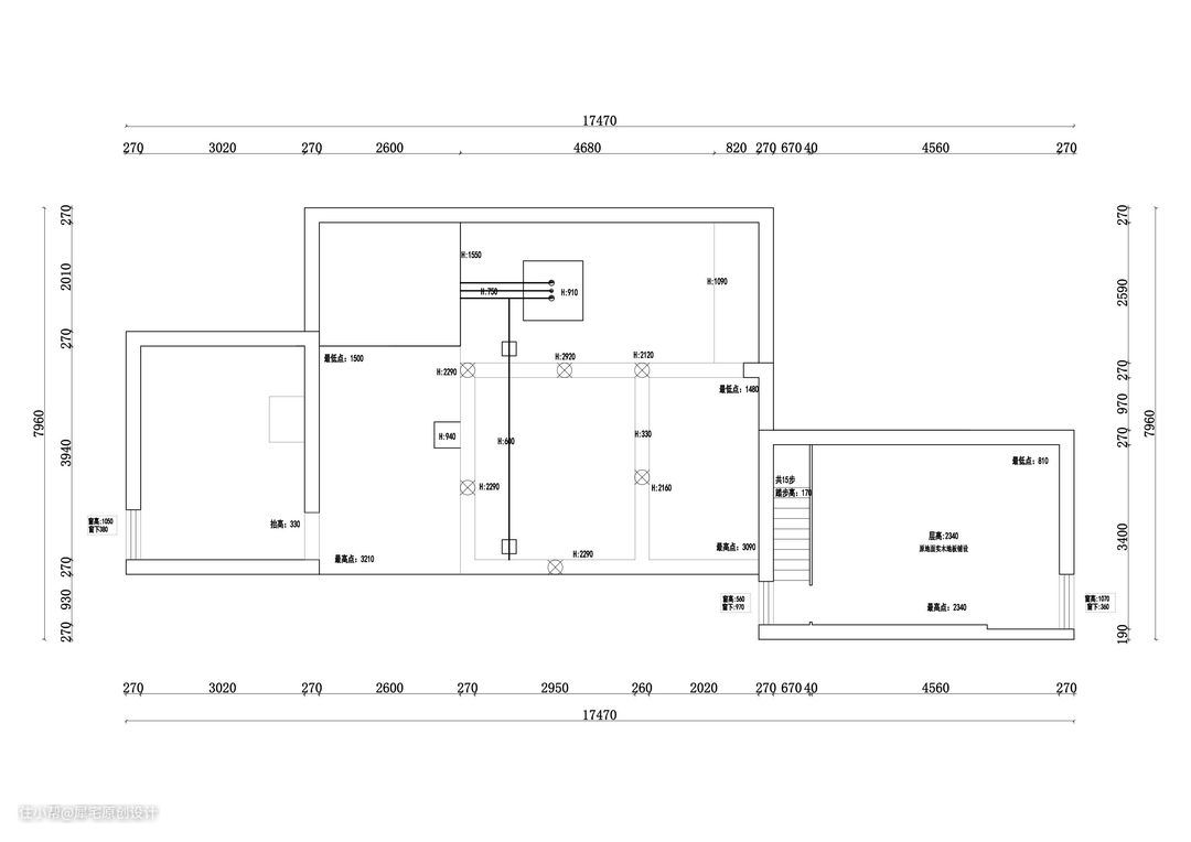
二层原始图

一层原始图 原始户型是两室一厅一厨一卫,厨卫都只有面向天井的一扇窗户,因此整个户型中部基本没有采光。 此外,只有南卧上层的部分阁楼被利用成储物间,而且楼梯位于本来就不甚宽敞的南卧内部,压缩卧室空间。

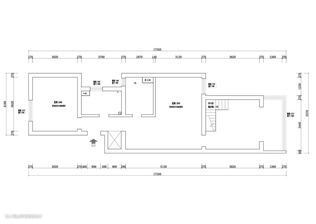
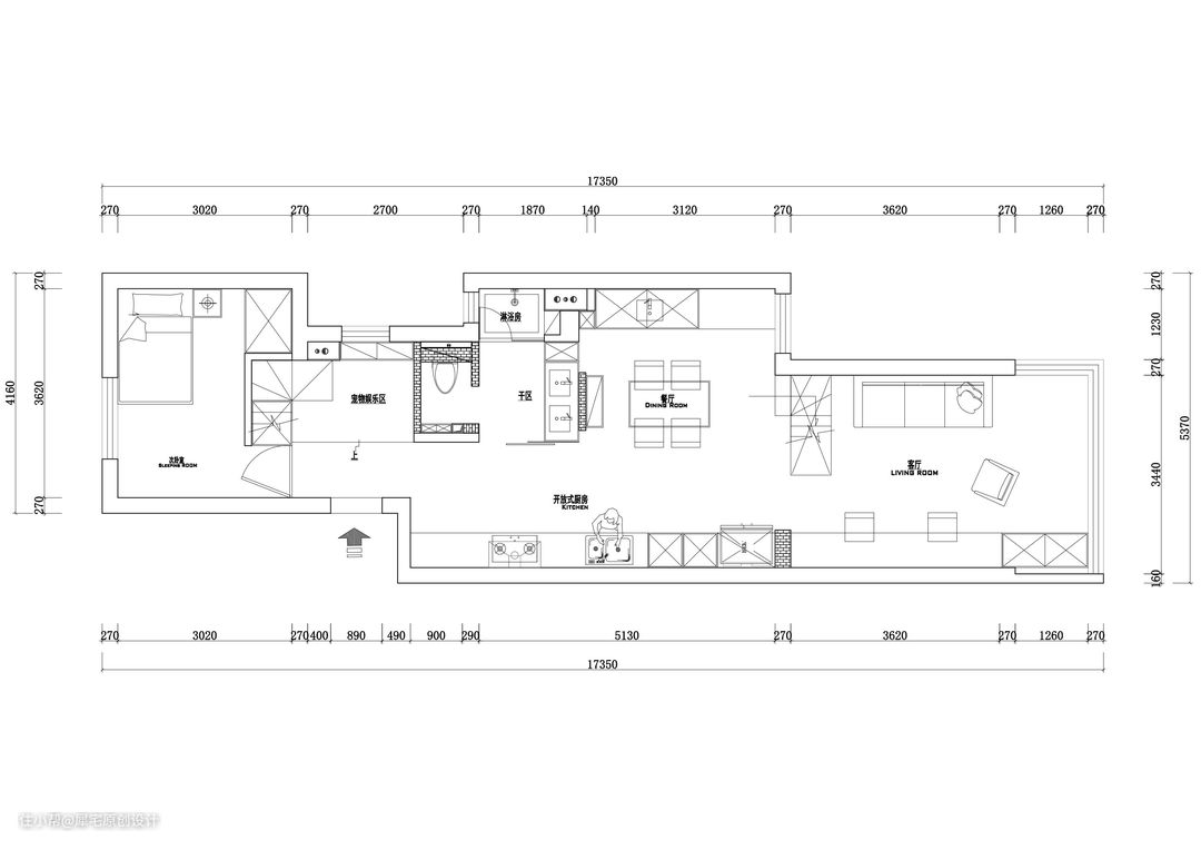
二层平面图

一层平面图 主要改造: 1、双楼梯设计,充分利用阁楼空间,增加两室一卫功能区; 2、一楼采光最佳的南卧室改成客厅,和餐厨打通,提升空间感和互动感; 3、原厨房区域和客卫重新整合,增加入户门厅,实现卫浴三分离。

公区开间不大但进深长,如何有效利用采光是设计师首要考虑的一,悬浮式楼梯伪装成有趣的空间隔断,让光线放肆穿梭其间。

电视柜也采取悬浮隔板设计,减少占地面积,让整个空间更开阔、轻盈。

阳台和客厅地砖通铺,使得整体视觉更统一。宠物也是家庭成员之一,理所当然应该有属于自己活动区,阳台就是属于他们的专属领地。


灯光永远是最好的氛围制造者


餐厅另一侧也设置了餐边柜,就近收纳餐厨用品和杂物。

窗边设置了矮柜,用来放一些小电器,也不影响采光。


人们之所以越来越喜欢开放式空间设计,大概在于其模糊了空间边界,扩大了人们身处其中时对空间维度的视觉认知,并且让家中氛围更为自由随性。 走进这个一字型空间,一条走道串联起所有功能区。随着空间递进,光线由暗及明有序铺展,一步一步点亮了这个纯粹到只有黑白灰的世界。

将厨房从封闭空间中解放出来,走道的复合利用提升了空间利用率的同时,实现了餐厨互动,更能满足屋主一家的生活习惯和居住需求。

总长六米多的灰色橱柜充分解决锅碗瓢盆和厨房电器的收纳难题,让空间整洁有序。

阁楼被天然区分成两个空间,中间无法被利用,我们特别在两端都分别设置了楼梯,缩短各自动线。

因为层高有限,采用明装筒灯,减少吊顶高度。在圆弧窗和棱角分明的墙顶结构间植入一道不规则弧形,形成有趣的渐进过渡形态,弱化两者间的冲突感。

床头壁龛代替床头柜解决收纳需求,内嵌灯带点染每晚就寝仪式感。

阁楼中心正好被设计成主卫,几道纵横的地梁的存在让这里被分割成几个角落,设计师因地制宜设计出高低错落的几个不同区域,分区布置成干区、淋浴间、泡澡区、洗衣间。


客卫只有一扇面向天井的小窗,几近相当于暗卫。内嵌长虹玻璃既引入了光线,还妆点了墙面。

卫生间面向走道一侧也采用玻璃材质,尽最大可能提升通透性。

借用一部分原厨房的空间,将卫生间改成三分离形式。

干区部分一侧是储物柜,一侧是玻璃移门,无法承重。为了达到悬浮台盆的效果,整个台面悬吊在顶面。



犀宅原创设计
