设计亮点: ①原始是四房两卫,根据客户的居家要求,改成了三房,使公共空间最大化,会客、看书、休闲于一体; ②梯形采光面让整个空间都变得宽敞透亮了起来,再搭配上墨兰迪绿的绒布窗帘,空间的高级质感扑面而来; ③内嵌餐边酒柜采用木质框架以及玻璃柜饰面组合,中间再镂空开放式装饰台,在这里摆置一些业主喜爱的艺术品,生活的个性也映照在了装修之内。

原始户型图 案例信息 项目地址 / Address:朝晖七区朝晖苑 设计施工 / Co :铭品装饰 风格 | Style:现代 风格 项目面积 | Area:120㎡

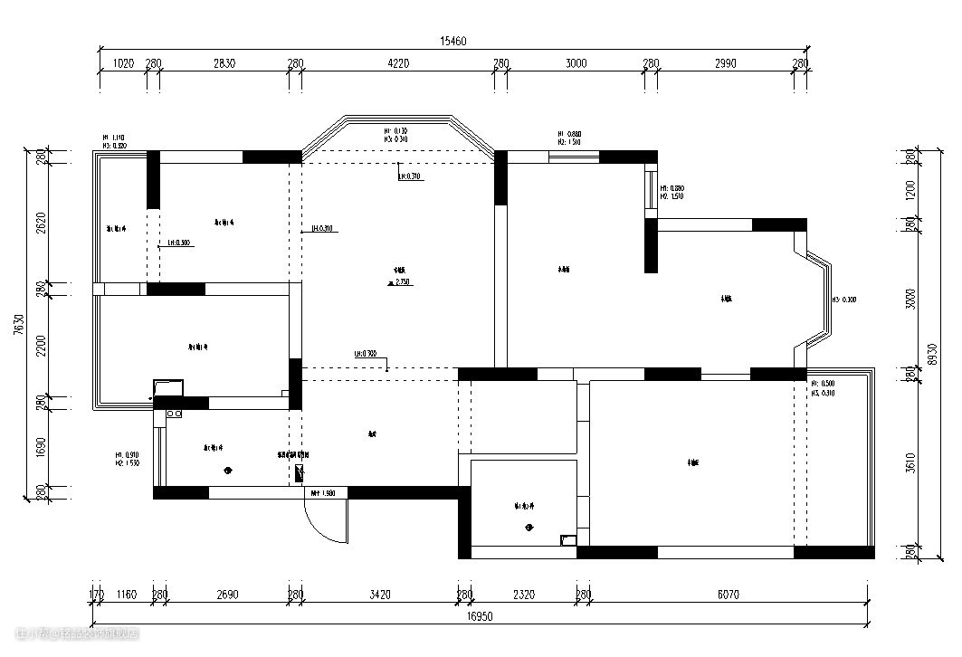
平面设计图

客厅区域将原阳台打通包进室内,让客厅区域更加开阔。利用原有的承重墙来设计沙发的背景墙,并以此作为和休闲书房区的隔断,不显得突兀。

客厅区域的吊顶和空间造型,以及选择的家具软装大多都极具现代工艺产物的特点,追求极致利落的简洁和流畅。黑色皮革材质的沙发和黑色漆面木质茶几都是方正造型,线条干净清爽,为空间注入一丝冷静的气息。

客厅的灯具采用现代工艺玻璃造型吊灯,没有传统水晶吊灯的奢华和累赘,只有符合现代风格的简洁和时尚。同时在客厅的沙发区铺有拼花色块的羊毛地毯,与略显冰冷的地砖形成成为两个质感截然不同的空间,增强了时尚感和生活的质感。

客厅和餐厅以及其他区域没有视线的阻挡,空间显得非常大气。设计师在客厅空间选用了黑、白、灰以及非常跳脱的墨绿色,以撞色来形成视觉上的冲突,时尚感极其强烈。

客厅没有选择具有贵妃位的“L”形沙,而是选择一字型的沙发,并搭配一张单人的软垫座椅,显得非常轻盈时尚。并且不需要时,可以随时折叠挪走,很方便。

承重墙不能拆除,因此设计师巧用承重墙来作为沙发的背景和隔断,同时在墙上做了置物架,用来摆放装饰物或者照片,避免了大白墙带来的单调,非常具有设计感。

客厅与餐厅一体式的设计,空间显得非常开阔。客餐厅相邻,动线非常流畅。无论是客厅沙发背景墙上的置物架,还是餐厅的餐边柜,都将空间利用到了极致。

餐桌和餐椅是黑白色的经典搭配,具有耐脏、时尚、不过时的特点。餐椅座位的设计运用到了人体工学,非常贴合腰身,且造型简洁优雅,在简单中寻求时尚。

胡桃木色的餐边柜分为上中下三个部分,上部柜是玻璃门形式的展览区域,平时主人家收藏的美酒、精致的杯盏等都可以陈列于此;中间归是开放区,摆放家人的合照、装饰画都是不错的选择,同时右侧靠墙柜体设置了插座,便于使用火锅、炖锅等需要差点的烹饪设备;下部柜子则是封闭式,用于日常的收纳或是储存都非常合适。

餐桌选用黑色岩板来作为桌面,其具有坚硬、耐高温、不易产生划痕等特点;餐桌的一侧挂了现代风格工艺抽象画,来点缀大白墙,避免显得单调,同时又极具设计感。

入户右侧摆放了1.2米的仿真落地植物红色尤加利,搭配以原色编织筐,显得清新又时尚。

餐厅的灯饰则是选择了非常简约典雅的丹麦经典PH5马卡龙创意个性飞碟灯具,小巧精致。

U字型的厨房布局可以将空间利用到最大化,拥有更多的操作平台。冰箱和蒸烤一体箱嵌入柜体,不显得突兀。

主卧分为四个功能区,在原户型的基础之上,我们打造独立阳台、主卫以及衣帽间,阳台与内室通过玻璃移门隔断,大大增强空间的采光度。此外酒红色调的帘布更是为整个布局木质元素的复古空间更加华丽与精致。

次卧也是个性十足,少女房少不了粉色系元素,比如一整面的粉色床头背景,杏粉色调的绒布帘还有粉色床饰,整个女儿房就仿佛布满了青春少女的幻想,简单的线条框架之中,却拥有更多的对精致生活的憧憬与期盼。

墙面上设置了牧郎创意拉金丝挂钩,可以满足平时偶尔穿着的大衣或围巾的放置,精致而时尚。

设计师利用客厅区域原有凸出的承重墙,点石成金,成为沙发背景墙和书桌的一部分,并把墙后空间设计为书房,自成一方天地。

书房的基础建立在榻榻米上,两边是收纳功能强大的半封闭式书柜,可以容纳主人家大量的书籍。原木榻榻米下方则全部设计成储物柜,将收纳能力做到极致的同时,丝毫不影响生活的品质和空间的美观。

从客厅可以看到看到书房的书柜,其所带来的文学气息也装饰着客厅。闲暇时坐在桌上轻轻翻阅书籍,也不失为人间至味。


台桌上摆放一个MARSHALL ACTION II BLUETOOTH马歇尔2代无线蓝牙音响,让音乐悠扬在整片空间里。
