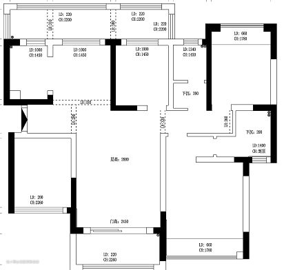
好的设计就如同遇见一个对的人,每一寸都是自己喜欢的样子。这个家便是如此。女主人是一位聪慧浪漫的女性,热爱美好的一切事物,对于家居的设计,她有着独到的审美和需求。跟设计师经过较长时间的沟通,设计师确定以简欧风格来定义家居,以温暖的米黄色定义空间的主色调,以精致的欧式风格家具和欧式线条,来丰富空间的层次,最终呈现给主人一家浪漫温柔的舒适家居。 户型分析 住宅原户型结构较为周正,无户型缺陷,只做了如下户型优化。 1、将原阳台隔断敲掉,将阳台纳入到室内空间,增加空间面积以及采光。 2、原厨房无门,优化后将厨房设计了隔断门,阻隔油烟。 3、敲掉原生活阳台的一道隔墙,将整个阳台空间连通,保持流畅的生活动线。


客厅与阳台融合 宽阔的落地大窗 为室内带来足够的采光 纱制窗帘过滤一部分光线 营造出梦幻感 墙地砖均采用莎拉米黄大理石 烘托出浪漫温暖的家居氛围

客厅空间 弥漫着米黄色的温馨氛围 同色系雕花欧式沙发 以优雅的姿势拥抱主人 精致的英式茶具 芬芳四溢的鲜花 开启悠闲的下午茶时光

公共区域目之所及都是轻柔浪漫色彩 带给生活几许甜蜜滋味 浪漫雅致的空间 阳光与清风在室内漫游 欧式家具精雕细琢 华灯初上 一室优雅风情

一家人 三餐四季 其乐融融 这就是主人梦想中的房子 理想中的生活

定制橱柜细节元素与整体风格相呼应 颜值、收纳兼具 体现对高品质生活的追求 流畅的功能动线设计 让烹饪时光变得更简单便利 厨房与生活阳台打通相连 通透的落地窗给室内更多阳光和清风 下厨的快乐油然而生

主卧温柔浪漫 宁静的氛围让心灵安放 欧式风格大床与床头柜精雕细琢 尽显女神范 牵引出居住者对优雅生活的追求

次卧室墙面铺贴淡雅的墙纸 给居室精致感 雕花大床与简洁的床品相融合 一室浪漫与温情

半开放式卫浴间的设计干湿分离 柔和的色调让人卸下疲惫 洁净明朗的卫浴空间 营造出轻松惬意的气氛

