本案例业主为独居女性,平时喜欢在家看电影、看书写作、用瑜伽垫做运动等;原老破小的装修对业主来说太过传统,较为压抑。因此业主找到我们,希望改变其传统的装修,满足自身喜爱的风格同时能有足够的收纳空间。在前期初步方案的沟通过程中,业主有较为明确向往的色调和风格,所以设计师结合业主的想法,提出有趣的可行方案并进行实施。

原建筑平面图片: 业主虽独居,但原空间的收纳面积不满足日常需求; 全屋为传统的装修,客厅整体空间感较小; 虽然卧室有窗户,但墙体限制了整体空间的通透性; 封闭的厨房空间较为压抑,卫生间也不符合干湿分离的需求。

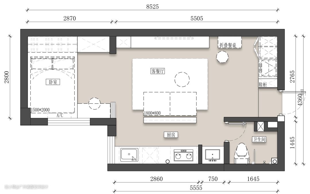
优化后的平面图: 全屋原地面瓷砖拆除,除卫生间外,其余均改为木地板; 墙体做了部分修改,卧室拆除墙体,改为玻璃推拉门,过渡卧室与客厅的联系; 利用玻璃的通透性营造假象,使得整体空间看起来更大,视野更为广阔; 原厨房墙体拆除,改为开放式厨房,加装日式pvc折叠推拉门; 客厅与厨房中间加装窄吧台,可做沙发靠背亦可做临时操作台使用; 进门右侧增加鞋柜及收纳柜,满足日常收纳同时还可放置洗衣机+烘干机; 卧室改为榻榻米床,床尾安装到顶衣柜,收纳空间翻倍。

玄关增加入户鞋柜,满足1~2人的日常收纳; #鞋柜#入户#洗衣机#阳台#收纳柜

鞋柜底部预留空间,满足日常更换需求; 雨天鞋子脏了也可在这里处理,不影响木地板。 #鞋柜

侧面加装柜体,可放置洗衣机+烘干机及冰箱; 减少冰箱的占地面积,且完美解决无阳台的烦恼。 #鞋柜#收纳柜

厨房与客厅的隔墙拆除后,中间利用窄吧台隔开厨房与客厅空间,也可作为沙发靠背使用。 利用卧室玻璃推拉门的通透性营造假象,使得整体空间看起来更大,视野更为广阔; #吧台#客厅#沙发#玻璃门

超宽的沙发可满足业主喜欢宅家躺着的需求; 窄小的空间内可利用沙发尺寸来满足完美的观影距离。 #沙发#客厅#电视柜

墙面预留孔位,电视机的连接线可全部收纳至下方,干净整洁又不影响美观。 #电视柜#电视

吧台侧面增加可移动插座,多场景使用。 #可移动插座#多功能吧台#吧台

摆放艺术的角落。

餐桌的设计非常实用,多种折叠方式,满足各场景使用; 不用的时候收起来,完全不占用空间。 #餐桌#餐厅

利用墙壁挂灯营造温馨用餐氛围。 #壁灯#温馨

卧室改日式榻榻米床,床底可收纳床褥; 在床尾加装到顶衣柜,满足日常需求; #卧室#榻榻米#衣柜

床边的书桌亦可作为床头桌使用; 窗户装香格里拉窗帘,遮阳不遮景,好看又实用。 #香格里拉窗帘#窗帘#化妆桌

利用立面加装吊灯,增强桌面的使用面积,氛围感满满! #吊顶#台灯#工作区

原厨房墙体拆除,整体改为开放式厨房; 整体橱柜和操作台面均为白色系,与全屋木饰面完美结合。 #厨房#吊柜#地柜

厨房加装日式pvc折叠推拉门,可做开放式厨房也可做封闭式厨房; #厨房推拉门#开放式厨房#厨房

推拉声音小,轨道顺滑方便操作,悬空的设计不损伤木地板。 #厨房推拉门#开放式厨房#厨房

按照业主需求,将洗漱台和镜柜布置在卫生间门外,底下可放置扫地机器人; 卫生间内整体使用白色瓷砖,显得空间更大; 最后再利用黑色花洒龙头与整体色调做搭配。 #卫生间#花洒#龙头

施工过程:安装卧室玻璃推拉门

施工过程:厨房改造 注意结合现场及图纸尺寸,提前量好灶台等尺寸,以防后期购买出错

施工过程:天花改造

改造前后对比:客厅

改造前后对比:餐厅

改造前后对比:卧室

改造前后对比:厨房

改造前后对比:卫生间
40UNDER40 中国(广州)设计杰出青年 营造家华南区中户型 TOP20 营造家奖年度全国百强推荐设计师 太平洋家居网 PChouse Award 广州城市榜 BEST10 深圳时尚家居设计展中国家居百强设计师 中国家博会(广州)设计头条城市榜年度优秀设计项目 CBDA第十三届照明應用設計大賽廣州賽區優勝獎
