时光穿过岁月,人生渐入佳境,对于本案业主来说,在拼搏数年阅遍风景后,更懂得归于生活才是人生更高阶的成就与幸福。 他们钟情于舒展、放松的空间,希望一个理想的家是链接自身品味、气质、理想的转承点。设计师与业主见面后一拍即合,很快确定了偏现代轻奢风格的定位。

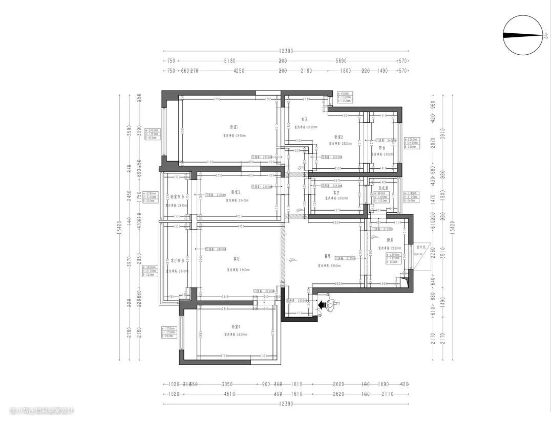
原始户型分析: 整体采光充足,视野开阔,南北通透,整体空间开阔可利用率较大; 客厅面积略小,卧室多,但面积都不够大,过道狭长;

户型改造亮点: 将紧挨客厅的卧室墙体打开,形成一个大横厅空间, 同时解决了客厅空间较小的问题; 将主卧空间进行重组,形成一个集休息+衣帽间+卫生间的小套房; 将次卧位置的阳台并入休息区形成一个较大的空间。



因为原户型客厅得面积比较小,有些设计难以呈现,基于此,设计师将阳台并入了客厅,并拆除次卧墙体,改造形成一个超大的横厅。让这个客厅空间能容纳更多的功能(起居、会友、品茶、阅读等多种生活场景。) 电视背景墙以大理石和木饰面做拼接,层次感十足,软装陈设亦强调功用,拒绝过多装饰,加以色彩、肌理的呼应,干练利落。精致而富有细节的家具,为空间的品质感加分。同时体块的比例和造型,以及材质无不与空间硬装设计交相呼应。

在沙发的后侧,是开放式的书房和独立阅读区。

设计师考虑到公区的收纳问题,在沙发背后及阳台两侧都定制了通顶柜体。玻璃柜门、镂空设计在实现不同收纳需求的情况下,也保证了整个空间的实用与美观。

餐厅兼做开放式西厨区的设计,时髦且实用。圆形的白色岩板餐桌和跳色皮质餐椅,让空间更显简约精致。这一空间,不仅可以团聚就餐,亦可作备餐、水吧台、亲子手工等使用,成为链接多样化生活的纽带。


卧室是屋主最爱的空间,延续了客厅的浅淡温柔,没有张扬的色彩,却于浅淡之中将生活的韵味悉数表达。家具单品上,设计师选择米白色真皮双人床,其靠背金属细节元素的植入,与卧室背景墙更为和谐相融。


床尾选用与客厅电视柜同系列的斗柜,成为提升主卧空间轻奢格调最关键的一笔。台面可布置花瓶、陶艺品或是摆上一幅装饰画,让藏不住的优雅质感跃然而出。 同时利用过道位置设L型衣柜,用储物柜代替墙体划分出区域形成步入式的衣帽间,私密性与储物能力MAX!

女儿房整体采用粉色元素,顶面白色与底面木地板中和了粉色的柔美,不落俗气。床的另一侧空间,设计师将其开辟成学习区和收纳区,局部开放格设计,方便小女儿放置自己喜爱的手办。

女孩儿童房

另一间次卧是属于业主大儿子的,灰白色系呈现出温暖又不失硬朗空间气质。软包的灰色床头搭配孩子喜爱的抱枕,沉稳不失活力。最吸睛的潮玩装饰,是大儿子要求置入的设计,限定款的Kaws Companion是关于自由、关于生活的态度。

卫生间为简单的干湿分离设计,超长的洗漱台及底部悬空隔板方便放置日常用品,隐藏式墙排马桶做卫生超便捷。


玄关作为整个家进门首先被看到的地方,虽然空间不大,但是我们却不想浪费任何一个小角落。选用经典的色系来装饰设计,大理石背景墙在灯光的映射下,有了明与暗的过渡,视觉上让这个空间显得更为柔和与美妙。