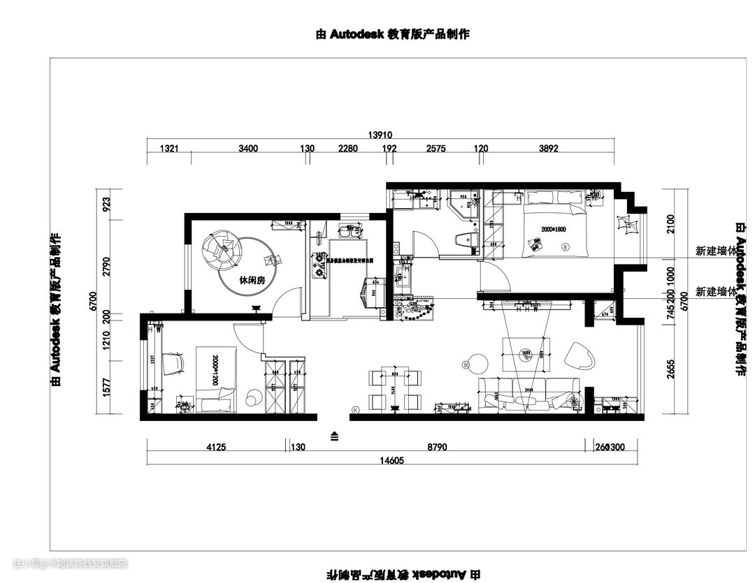
◆装修小区:西安 · 劳动公园里 · 新房装修 ◆户型面积:115㎡三室两厅一厨一卫 ◆装修风格:日式风格 ◆设计理念:实用、适用、耐用 业主想要的: ◇喜欢轻松、温馨的氛围,家里硬装软装都要简单易打理 ◇生活动线合理,特别是厨房和卫生间高频使用的空间 ◇三口之家,有一个上小学的男孩,需要儿童房 ◇空间设计和软装搭配精巧、精简,不要太拥挤 ◇因为打算长期居住,色调要耐看,风格不易过时 设计要点: ◇整体用原木色调+白色调,简单的调色做调节,整个空间温馨但是不沉闷 ◇格局做微调,卧室不改动大的格局,细节做优化 ◇卫生间做干湿分离,做双洗漱台,避免早上使用冲突


在装修的造型设计上以精简为主,顶面做一圈石膏板做装饰,增加层次感即可 不做电视墙用软装做装饰,温暖的色调也不会感觉到视觉疲劳,墙面则是怎么简单怎么来,为后期的软装搭配做了自由的空间 地面用的是600*1200的哑光砖,暖色调灯光相呼应,相互融合




餐厅与厨房之间的空间不大,距离有限,无法实现整面墙做收纳柜的想法,把储物压力转移到了门厅收纳,餐厅的墙面只做软装挂画做点缀搭配, 避免整体空间太单调,顶部做了原木吊顶增加精致感和氛围感




一个【梦中厨房】的标准就是易清洁、能储物、利操作,木格子的推拉门增加了厨房美观度,U型储物柜让操作更加便利,还能把冰箱镶嵌到里面,吊柜不用太多,增加了部分储物,还能把烟机隐藏起来,洗碗机肯定必不可少,解放双手的神器



主卧风格依然是简单、温馨舒适为主,原木色和暖色灯光的搭配能让人很神奇的安静下来,隔绝了室外嘈杂的环境,夜晚的好眠安枕,早上的对镜描眉,享受的卧室空间带来的私人平静氛围感




儿童房作为可能会陪伴着孩子成长十几年的空间,浅蓝色的色调能让孩子享受安静,可灵活变通的家具后期可以陪伴孩子成长也可以在孩子长大的过程中随时更换,通顶大衣柜和窗边的书桌增加了储物功能,收藏着孩子的梦



次卧做榻榻米和书桌的结合,平常可以作为老人房或是客房,让整个房子的储物空间增加了30%,方便实用


蓝色是充满活力和朝气的,也中和了原木色的单调感,成为了整个房子的点睛之笔,改动一卫的结构,设计为双面盆,避免了使用冲突的尴尬,卫生间内部做干湿分离,保证了使用方便和卫生条件,也是设计师的精巧心思了




