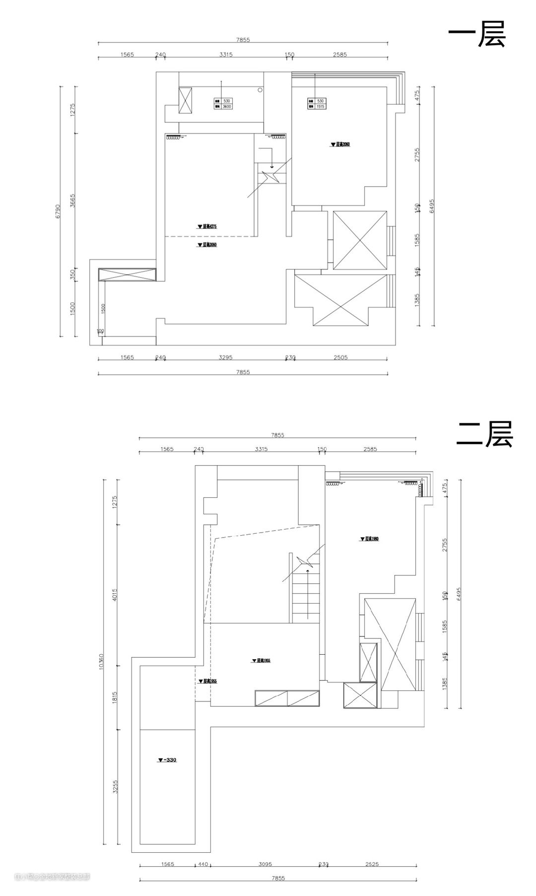
【屋主信息】 职业:美容师 年龄:60后 【前言】 女业主是一位美容师,平时很爱干净,家中有一个女儿在读大学,平时在学校居住,为了让女儿能够回家吃饭,在离女儿的学校2公里附近买了这套房子,业主想在40天内入住,希望整体风格能够统一,一定要摆脱原来“土里土气”的感觉,设计师陈老师第一次去与业主进行沟通的时候,表达了客厅以及二楼的采光比较差,loft的格局让空间显得有点局促,想让空间更加亮堂一点,业主女儿希望能有一点ins风的感觉,现场给陈老师看了很多图片,陈老师作为90后马上就能get到其想法,在后期设计图的沟通上也是非常的顺畅,施工的进度也比较紧凑,陈老师几乎是天天到工地现场去,最后呈现的效果,业主和其女儿都非常满意~ 【装修需求】 1、需要玄关,平时放鞋子包包的地方; 2、要一个舒适的客厅,可以不要阳台,改善客厅的采光; 3、卧室层高较矮,能够更加敞亮一点最好,隔音效果要保证。4、有一个暗区,能改成储藏室最好。 本套案例是Loft公寓装修设计,由设计师陈老师主案设计,在这套作品里,整个空间没有繁杂的软装,保持最朴素的生活基调,但要带来不一样的高级简约设计氛围感。因为是小户型的Loft结构,我们充分利用楼梯下的空间进行壁挂式电视放置,在减少空间局促感的同时保留基本的想法和需求,所以公寓在空间分隔上采用了玻璃元素,不仅能让光线更好的流通,视线更好的延伸,更扩大了空间感;空间装饰物的点缀,也丰富了各功能区带来的视觉效果。 ▼▼▼原始户型图

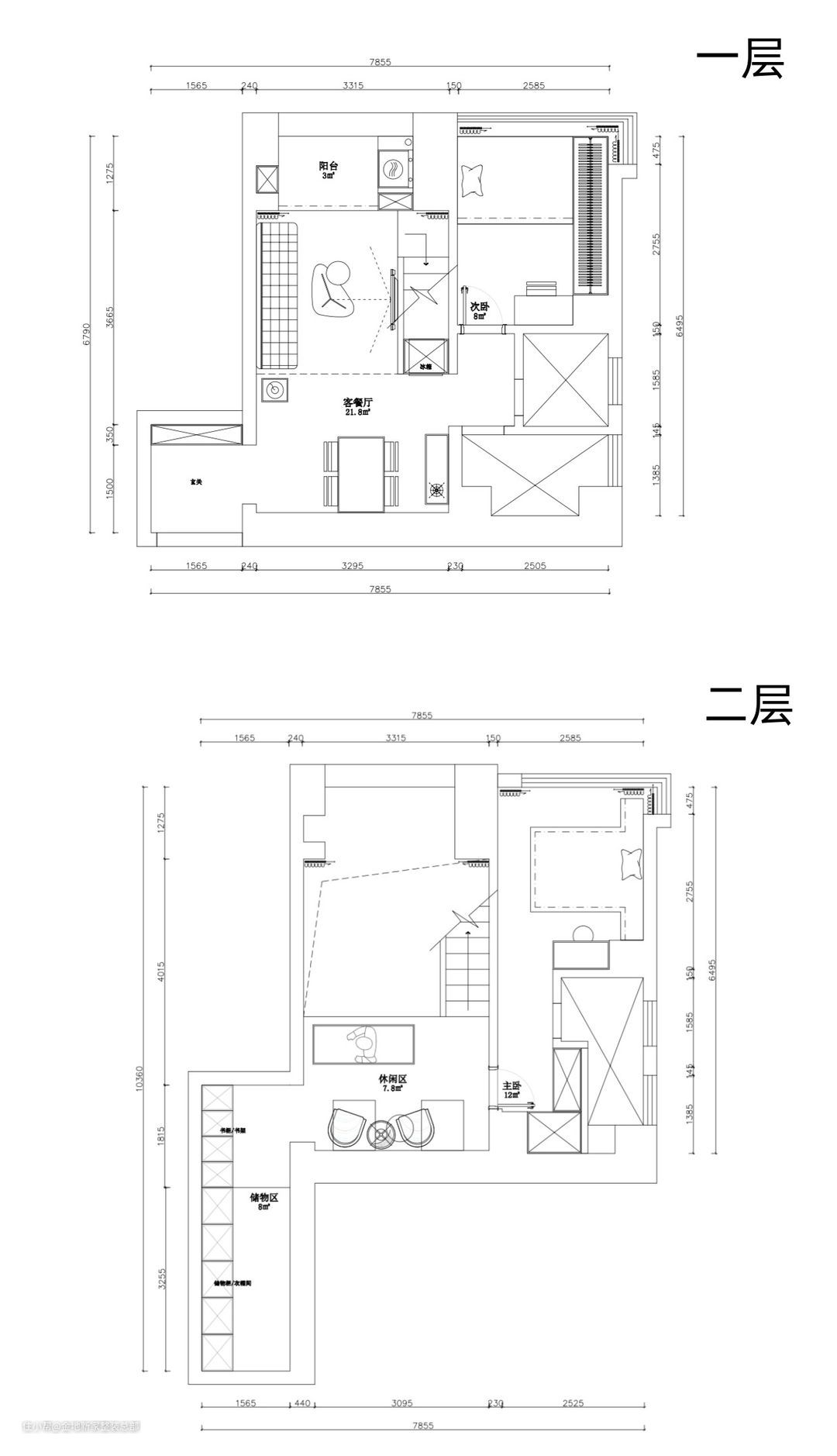
整体户型结构上,两层面积大小近似,设计上更好的通过风格对称结合的形式,统一的展示出现代简约的设计基调。 原始户型结构上是非常不错的,整体上需要改动性较小,主要在整体的软装搭配上进行了着重设计。厨房空间的改造,在于重新规划短U型橱柜,贴合业主烹饪习惯进行优化烹饪动线。 【 设计思路】 1、入户增加嵌入式通顶鞋柜,中空设计,增加隐形灯带,让入户氛围感满满; 2、客厅阳台之间的非承重墙打掉,进行封窗,左侧做洗衣机+干衣机的储存柜; 3、二楼暗格做整体的柜体收纳,将原来空置的暗格变成储藏室; 4、卫生间做了干湿分离,贴防滑砖。 5、全屋进行隔音处理,卧室门改成隔音门。


改造前的照片是第一次去量尺所拍,二楼到一楼整体变化特别大,土气感立马变身ins时尚风,看完是不是也想买一个loft的房子呀?

量尺的时候叶女士说,层高太矮,灯太刺眼了,稍微暗一点,又显得特别压抑,怎么办?这可难不倒陈老师,在后期的设计过程中,不改变层高的情况下,增加筒灯设计,一下就变亮了有没有?

原来二楼是作为一个开放式书房,从下往上看特别乱,叶女士表示之后没有书房的需求,倒是朋友来家里,可以喝喝茶更好,且往下看我们陈老师的改造~

原来阳台比较小,用处不大,如果能够解决晾晒衣物的问题,可以不要阳台,设计师提出封窗的想法,并把自己正在使用的非常好用的干衣机推荐给业主,业主立马采用了这个想法👌,现在呈现出来的效果也非常好👍
门就是一道玄关,玄关用木格栅将客厅分隔开来,颜色上与木地板深浅呼应,增加一定的高级感。木格栅背后对门是做了一个墙面的立柜去收纳鞋物、悬挂衣物等,因为空间暗区特别多,设计师采用无主灯的设计,增加暗区的光线,原本压抑的空间一下就明亮起来啦~


楼梯的护栏是单层玻璃做的隔断,室内变得敞亮又通透。陈老师针对空间进行连贯打通,将原本阳台的门体拆除,优化出新的格局,极好的增加了空间的采光,视野敞亮舒适,用台阶面将两个空间区分开来,木地板的铺设营造出休闲阳台的气息,给铺满地毯面的客厅带来透气的感觉,一点也不会觉得压抑,反倒更有种度假的愉悦气氛,同时也让空间显得简雅时尚。

客厅的软装搭配是灰色皮质沙发,结合黑白色岩板茶几,地面铺上灰色地毯,加入—盏落地吊灯设计,使得空间充满时尚优雅而端庄的氛围感。突显出现代风格的精致优雅感和loft公寓的清新感加持。沙发的背景墙就没有做多余的装饰,适当的留自也是最好的搭配。 客厅最主要的照明是来自于吊灯,不过为了加强照明,简灯和落地灯还是必须要有的。

看到这个落地灯,你能想到什么?帽子?不倒翁?还是🎣鱼竿? 没错啦!设计师在协助业主选择软装的时候,推荐了这款氛围感满满的钓鱼灯,这款钓鱼灯的底座是一个陀螺的形状,展现出一个倾斜的钓鱼状态,落地灯散发出的暖黄灯源和科技布艺沙发、软绵绵的地毯相互搭配,再配上窗外飘进的微风。将居家的舒适慵懒感发挥到最大化。

沙发背后的挂画是要挂在墙上的哦~暂时还没来得及挂,就先放在沙发背后,很多业主朋友对于沙发背景墙不知道怎么设计好看,最省钱的做法就是挂画,全屋采用的是ppg大师漆的纯白色,不会有甲醛的味道,也比较经久耐用。

落地灯+挂画+质感沙发,这个氛围感,很难不心动吧?


虽然说窗外没有绿植,也有高楼,楼层间隙也比较大,楼下是马路,封窗还有一个好处就是隔音,隔尘,这下没有任何的后顾之忧啦~

在选择沙发的颜色上,业主表示不要白色,不要米色,反正就是要耐脏,因为平时工作很累了呀,回家能直接休息就好,设计师马上get这个想法,给业主推荐深灰色,业主表示灰色会不会很土呀,设计师在选择沙发的时候直接考虑了科技布,同时也为业主选用同色系的地毯,你看这样搭配是不是很绝?

餐厅与客厅布置格局,让屋主的动线得以连贯的走动,餐厅的墙面做了弧形的线条和拼接色的处理,后方餐边柜的墙体和柜体下沿的踢脚线与餐桌椅的灰调一致,餐厅和厨房客厅三者之间互借空间,这样的布局方法缓解了空间的局促感,反而是带来更多的明亮和开阔。

台面选用了大理石岩板并贴上了防滑膜,软皮质的座椅带来舒适性的同时也增添了高级感。 墙面装饰画与沙发背景墙是同一系列,将空间的连贯性巧妙地衔接在一起,让空间更加的统一而不会显得拥挤杂乱。

设计师是氛围感高手了,餐桌上随便摆放的水果,也很有感觉!!

厨房没有较大的改动,因为面积是相对狭小的,针对厨房的空间结构,进行了烹饪动线的优化,且将原本狭小的空间进行全方面利用,定制化的橱柜和吊柜是最出色的收纳能力提升,原本没有利用起来的上层部分,也增加了吊柜。

白天的房间,采光非常好了,窗帘做了内嵌吊灯切角的设计。卧室以浅灰白色的墙面空间为主基调,搭配暖色灯光设计,在床板下方加入了暖色灯带的设计,可以当做夜灯和氛围灯使用,给屋主带来一个可以好好睡觉放松的温馨卧室。床头板做了加长的设计,并特意选择了与床头板一致颜色的床头柜,起到一定的扩容视觉效果。

设计师考虑到业主有起夜的习惯,增加了床底的感应灯,夜晚轻触地面就会有亮灯~

这是亮灯的效果,夜晚起来的时候就不会觉得特别暗,1分钟后会自动熄灯,设计师在设计的过程中真正的考虑了业主的使用需求,我们在拍摄的过程中也非常贴心的介绍各种功能,对设计师更是赞不绝口!

卧室的挂饰是一个人在船上钓鱼,有一种孤舟蓑笠翁,独钓寒江雪的味道(下图会更清晰,细细品味中....)

在水电定位的时候,设计师会与业主进行插座点位的确定,床头的插座是非常重要的,平时在床上休息可以随时关灯熄灯,也可以马上给手机充电哦~


次卧住要是给女儿居住,次卧整体延续主卧相同的设计,同时添加了封预式柜体设计,有效贴合空间结构,增加收纳空间,女儿需要一个较大的收纳空间,设计师在有限的空间中,建议采用榻榻米的形式,增加收纳,同时也保证一定私密的学习空间。


二楼的暗格有一个承重的横梁挡着,层高非常矮,一直没有利用起来,设计师在整个房屋的设计中考虑到了实用性,建议采用全柜体的设计,这样业主在平时的时候可以将不常用的东西放到这里就可以啦~

卫生间面积相对适中,考虑到母女二人平时的使用习惯,进行干湿分离的设计,有效提升卫浴空间的整洁和日常卫生打扫的便捷。洗面台最大程度做到舒适便捷,减少洗漱中喷溅出的水滴。


休闲区位于二楼,原来这里是作为一个开放式书房来使用的,设计师别出心裁,选择了与雾霾蓝色的艺术涂料,提升整个空间的质感,选择白色的单人沙发椅,这样业主平时也可以在这里喝喝茶,聊聊天,看看书,非常惬意,沙发的正对面是可以看到落地窗外的全部景色~

在设计过程中运用了较多的主辅材,整理了一份清单给大家参考~

🎤【设计师访谈小环节】 Q1: 装修过程花了多长时间? A1: 装修的过程在40天左右,从第一次量房到最终落地,是整整的40天,这是最快的一个工地了,几乎天天都跑到工地里去,有时候晚上不能施工,就和工人工长对好设计图,整体工期进展顺利流畅。 Q2: 你对这套作品最满意的地方在哪里,为什么? A2: 全都很满意哈哈哈,业主是超级开明配合的,也非常信任我,在选择材料和软装的时候给予的建议基本上都采纳了,还好最后呈现出来的效果真的很好。 Q3: 对平面布局做了哪些优化改动,为什么? A3: 整体的布局没有很大的改动,业主说效果超乎她的想象,对比之前的拍摄的图片来看,变化确实很大,这就说明全屋翻新的重要性啦~ Q4: 为了满足客户的个性化需求,你在设计过程中做了哪些事情? A4 : 玄关、卧室、客厅都有许多小细节,更多的是考虑业主的使用需求,我们在整体的设计中主要解决采光的问题,所以增加了很多无主灯、隐形灯带的设计,在后期使用过程中也不会有很大的问题。
