访问APP
客厅
餐厅
主卧
次卧
厨房
卫生间
方案解析

100㎡新中式小两居,低成本改造整面衣帽间!

轩怡家装丨深圳总店
关注
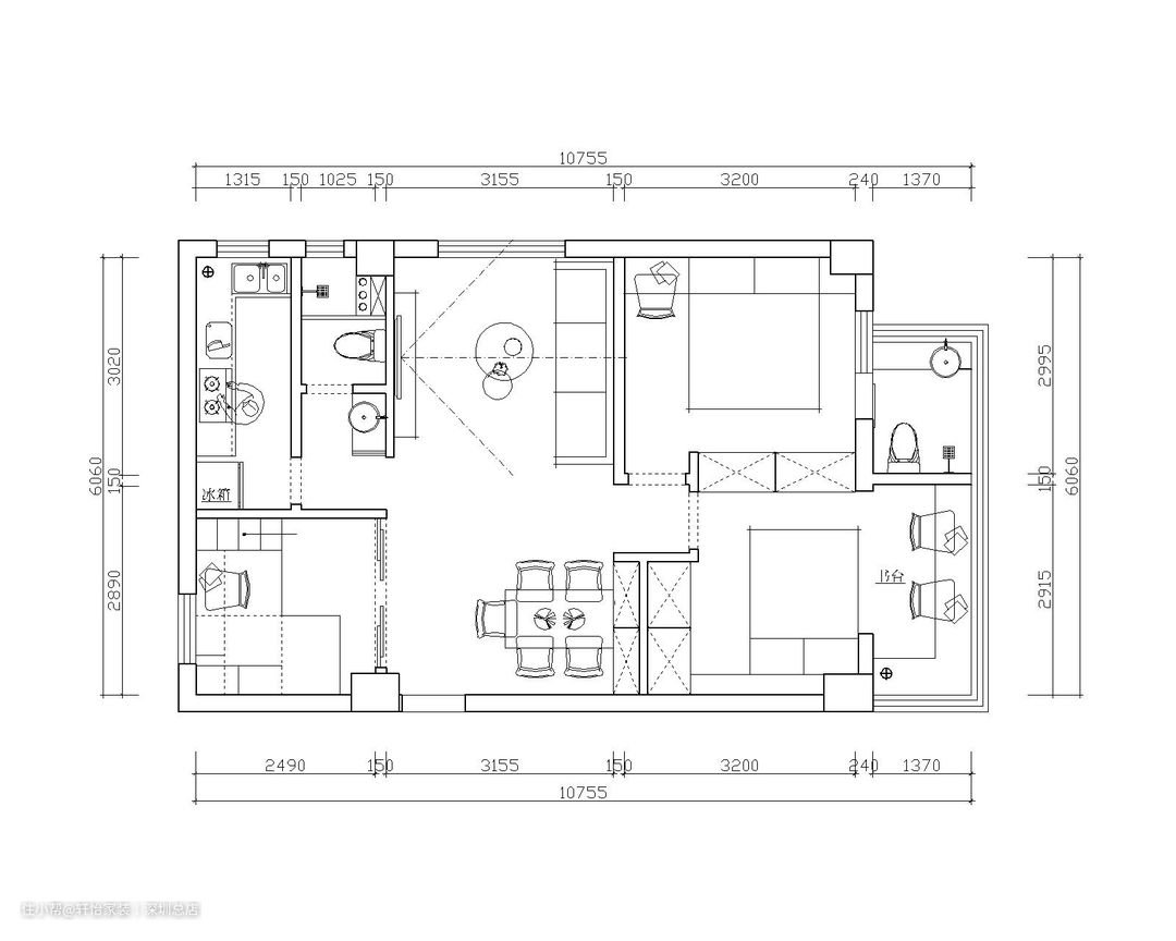
户型
二居
风格
中式风
面积
100㎡
位置
广州市
方式
半包
预算
11万
方案解析

🏠本期案例是一套100㎡的旧房改造,这是给业主给父母准备的养老房,业主很喜欢中式文化,同时又想把现代装修的流行元素融入其中,从而打造出充满自然韵味的新中式风格,通过环境氛围的塑造,将业主内心追求的生活意境升华出来,既是对都市质感生活的追求,也是对古色生香生活的一种向往。

效果对比

🏠改造思路 1、根据业主的装修需求,设计师吧靠近主卧的生活阳台打通,利用一横墙的位置,打造了一个一字排开的衣帽间,以复古绿配色为主,搭配茶歇色玻璃做成半开放式的衣帽间,提高衣物存取的便捷性和实用性。 2、次卧利用大飘窗的采光条件,在窗边打造了一个办公区,考虑到办公和阅读的需求,设计师还预留了床位,累了困了还能一并在书房休息,闲时也能作为客房来招待朋友,真是一举两得呢! 3、根据业主对灯饰的喜好,设计师利用餐客厅的天花,各自做了天花设计来搭配一盏双层玻璃水晶吊灯,凸显空间的大气和格调。

客厅

这套房子的客厅空间是属于比较空阔的,因为设计师专门做了凹形天花搭配一盏双层水晶吊灯,作为客厅空间的软装主力军,不仅能降低双层吊灯带来的压抑感,还起到了装饰美化客厅空间的作用。

一套灰色皮质沙发,呈围合式布局,再用两三抱枕点缀,舒适又充满个性搭,为闲时家庭娱乐留出了充足的空间,配一个拼接色实木矮脚茶几,一下又把中式禅意拉回来,让现代流行元素与中式元素相互融合,把新中式的设计精髓完美呈现。

新中式布局当然少不了对称设计的精髓,在电视布局这里就诠释得非常到位,一张对称抽拉的矮脚收纳柜作为电视机的摆台,两边对称布局一盆1.2M高的金钱树,把新中式的对称设计发挥到极致~

同时电视背景墙采用壁龛的形式,打造了两列对称布局的开放收纳格,再一次把新中式的对称设计理念完美升华,完完全全的为业主打造一套新中式的家庭住宅。

餐厅

餐厅是整个房子采光条件做得最好的空间,得益于与阳台开门贯通,其次圆形天花设计搭配双层玻璃吊灯,辅助内嵌白光灯带,让整个空间的采光十分充足,且加入天花的设计,让空间更具层次感,烘托出低调轻奢的生活格调。

设计师利用餐厅的墙体结构,同时配合冰箱的尺寸,打造了一个L形的嵌入式木制餐边柜,不仅不占用位置,还方便入住后的卫生清洁。置入玻璃元素,让存取收纳更加便捷可见,中间留空打造收纳台,把饮水机、咖啡机等小家电都收纳其中,真的不要太合适了~

厨房

为了凸显更多现代元素,设计师从配色上做了功夫,以雾霾蓝的磨砂质感橱柜打造了一个L形布局的厨房,营造出厨房非凡的空间气质。同时,保留铝合开窗设计,加强厨房的采光和通风系统的建造,可谓贴心又实用。

厨房的设计搭配可谓是整屋的高颜值空间,为什么这么说呢?全靠这套雾霾蓝的磨砂质感橱柜,通过与嵌入式家电搭配设计和金属元素点缀,营造了一个沉稳大气的用厨空间,尤其是上吊柜加入长虹玻璃元素设计后,魅力更上一个档次,无形中提高了厨房的使用率和用厨体验感。

主卧

经设计师把临近的生活阳台打拆后,主卧的可使用空间倍增。整体以简约设计为主,无过多的繁杂装修,突出素雅舒适的空阔感,搭配通铺的木地板,整体空间感更强,营造出简约大气的休息空间。

一床浅绿色的床褥,搭配一个简约软包靠背,再布局两个对称设计的米白色皮质床头柜,简约却不单调,同时再配套布局一张高脚化妆台+软垫凳子,满足日常梳妆打扮的需求,同时可作为台灯、香薰等小物件的摆台哦!

白灰撞色设计的整面背景墙是整个主卧空间既简又精的设计C位,纯白色木饰面搭配花纹灰色木饰面,搭配一排射灯点缀,营造出一种低调轻奢的质感,把中式和现代元素融合推向了最高峰。

主卧和生活阳台打通后,空出一整墙的位置出来,设计师则巧妙的利用一横墙的空间,打造了一个一字排开的衣帽间,以复古绿配色为主,搭配茶歇色玻璃做成半开放式的衣帽间,提高衣物存取的便捷性和实用性;同时再次展现了新中式设计的对称设计,以茶歇色玻璃打造的衣柜作为中间点,两边对称布局了两个收纳柜,中部留空作为常穿衣物的悬挂收纳处,呈现出一个多元收纳的大空间。

次卧

次卧除了使用空间比主卧相对较少外,其自然采光条件是整屋最好的空间,得益于半墙开窗设计,把次卧的采光和通风都做得相当好,非常适合书房的打造,再也不用担心阅读办公对光线的需求了。

依托半墙开窗的户型优势,设计师打造了一个5㎡的小小办公区,整体以白色系为主,悬空设计了两个开放式收纳格子,用作收纳和绿植摆放,都是非常适合的呢,在绿植和窗户景观的熏陶下,阅读和办公都显得不那么累了!

卫生间

卫生间整体设计与整体风格非常契合,以高级灰搭配灰蓝色,利用多盏筒灯设计成就整个卫生间空间的氛围烘托,打造一个卫生干净、轻松舒适的卫生间环境。

其中,卫生间的收纳空间也是做得非常优秀的,双开门镜面柜设计搭配加宽洗手台设计,给卫生间打造了一个多元收纳空间,集展示、收纳和装扮功能于一身,实用性拉满!